ISTRIEN, PREMANTURA – Maisonette-Wohnung mit 2 Schlafzimmern und 1 Badezimmer und privatem Garten in der Nähe von Stränden und Kamenjak
| Registrationsnummer | DN-40176 |
| Art des Angebots | Verkauf |
| Kategorie | Appartements |
| Bezirk | Istarska |
| Gemeindeteil | Medulin |
| Preis | 340 000 € |
| Gesamtfläche | 80 m² |
| Wohnfläche (Wohnung) | 80 m² |
| Bebaute Fläche und Hof | 30 m² |
| Gesamt bebaut fläche | 30 m² |
| Entfernung vom meer | 500 m |
| Strom | |
| Wasser | |
| Abfall | |
| Klimaanlage | |
| Energieintensität | B - wirtschaftlich |
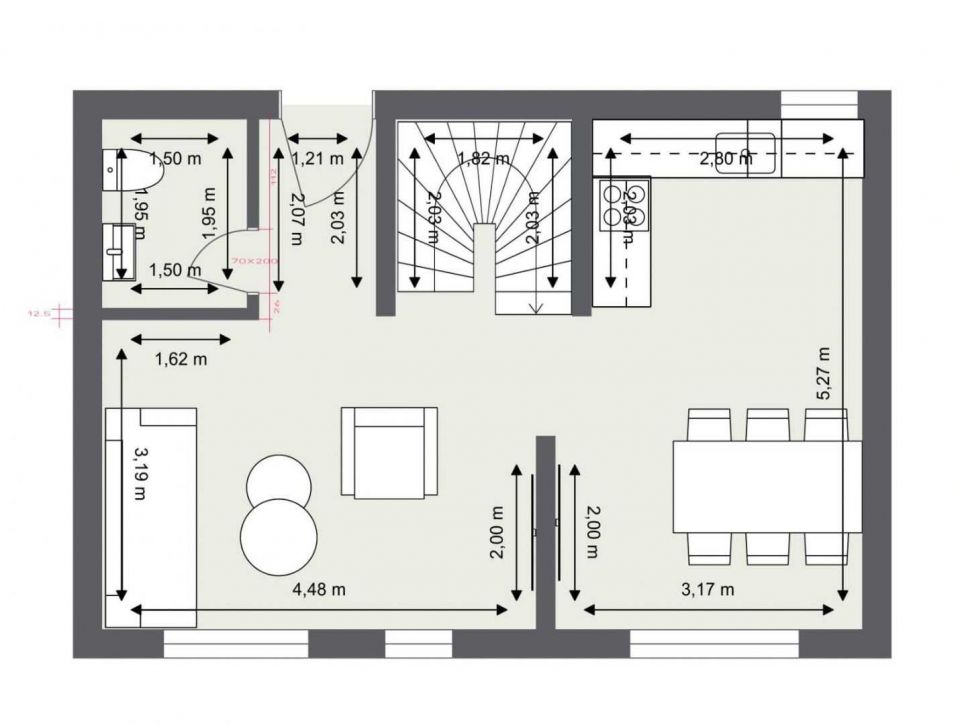
ISTRIEN, PREMANTURA – Maisonette-Wohnung mit privatem Garten in einem neuen Gebäude in ruhiger Lage, nur 500 m von Naturstränden entfern In einem ruhigen Teil von Premantura, nur wenige Gehminuten vom Eingang zum geschützten Naturpark Rt Kamenjak und den ersten Naturstränden entfernt, befindet sich diese moderne Maisonette-Wohnung – eine Immobilie, die modernen Komfort, hochwertige Bauweise und intimen Außenbereich vereint. Es ist ein kleineres Gebäude mit nur sechs Wohneinheiten, das von einem bewährten Investor gebaut wurde, was Ruhe, Sicherheit und langfristigen Investitionswert garantiert. Nutzen Sie diese Gelegenheit und werden Sie stolzer Besitzer einer Wohnung, die die perfekte Kombination aus modernem Design, Funktionalität und Nähe zur Natur darstellt. WOHNUNGSBESCHREIBUNG: Die Wohnung befindet sich im Erdgeschoss des Gebäudes und erstreckt sich über zwei Etagen, Erdgeschoss und ersten Stock, mit einer Gesamtfläche von 80 m² und verfügt außerdem über einen privaten Garten von ca. 30 m². Im Untergeschoss der Wohnung befindet sich eine Eingangshalle mit einem ausgewiesenen Platz für eine Garderobe. Von dort gelangt man in das helle Wohnzimmer mit direktem Zugang zum privaten Garten und zur Terrasse – ein idealer Ort zum Entspannen, Essen im Freien oder für geselliges Beisammensein. Der Wohnbereich bildet mit Küche und Esszimmer eine Einheit (offener Raum). Im Erdgeschoss befinden sich außerdem eine Gästetoilette und ein zusätzlicher Abstellraum unter der Innentreppe. Im Obergeschoss befinden sich zwei komfortable Schlafzimmer und zwei modern ausgestattete Badezimmer, die die Privatsphäre jedes Haushaltsmitglieds oder Gastes gewährleisten. TECHNISCHE MERKMALE, AUSSTATTUNG UND ZUSÄTZLICHE INFORMATIONEN - Das Gebäude wird mit Schwerpunkt auf langfristige Qualität und Ästhetik gebaut: * Dreischichtige PVC-Tischlerei in Anthrazitfarbe mit großen Hebe-Schiebe-Wänden * Elektrische Aluminium-Rollläden * Sicherheits-Eingangstür * Elektrische Fußbodenheizung (außer in den Schlafzimmern) * Klimaanlage in allen Zimmern (insgesamt 3 Einheiten) * Moderner elektrischer Kamin im Wohnzimmer * Bodenbeläge: hochwertige Keramik (120x120 cm) und Parkett in den Schlafzimmern * 10 cm Steinwolle-Fassadendämmung. * Der Käufer kann derzeit die Verarbeitung und das Design der Böden nach seinen eigenen Wünschen wählen * Zur Wohnung gehören zwei private Parkplätze, die zusätzlich zum alltäglichen Komfort beitragen. * Die Wohnungen sind in Privatbesitz. * Geplanter Einzugstermin ist Anfang 2026. LAGE: Das Gebäude liegt nur 500 Meter vom Eingang zum Naturpark Rt Kamenjak entfernt, einem der beliebtesten Naturgebiete Istriens. In unmittelbarer Nähe befinden sich zahlreiche Strände, Rad- und Wanderwege, Restaurants, Geschäfte, eine Schule, ein Kindergarten und alle Annehmlichkeiten für ein angenehmes Leben das ganze Jahr über – oder als perfekter Ort für einen Sommerurlaub und eine Investition. FÜR WEN IST DIESE IMMOBILIE GEEIGNET? Dieser Neubau in Premantura ist ideal für alle, die eine moderne und funktionale, aber gleichzeitig ruhige Umgebung in der Nähe von Meer und Natur suchen. Ob Familienimmobilie, Rückzugsort vom Stadtleben oder Zweitwohnsitz für die Ferien – diese Immobilie bietet alles, was Sie brauchen, und noch mehr. FÜR INVESTOREN: Dank ihrer Mikrolage, der Nähe zum Naturpark und den Stränden, des privaten Gartens und der hochwertigen Verarbeitung bietet diese Wohnung außergewöhnliches Potenzial für die ganzjährige touristische Vermietung. Das zweistöckige Konzept und die funktionale Raumaufteilung ermöglichen eine hohe Auslastung und Flexibilität im Geschäftsmodell – entweder als klassische Mietwohnung, Boutique-Apartment oder personalisiertes Ferienhaus, das von luxuriöseren Agenturen angeboten wird. Bei weiteren Fragen, für weitere Informationen oder um einen Besichtigungstermin zu vereinbaren, kontaktieren Sie uns bitte.
Bei allen unseren Angeboten sind die Preise identisch mit dem Direktkauf bei der Agentur/dem Entwickler in Kroatien, da wir der offizielle Vertreter dieser Agenturen auf dem tschechischen, slowakischen, deutschen und österreichischen Markt sind. Dies gilt ohne zusätzliche Zuschläge für deutschsprachige Dienstleistungen.
Sehr geehrte Kunden, die Besichtigung von Immobilien, die Mitteilung der Lage und andere detaillierte Informationen sind nur mit einem unterzeichneten Vermittlungsvertrag möglich, der die Grundlage für weitere Aktionen wie den Kauf einer Immobilie bildet. Alles steht im Einklang mit dem Gesetz über die Vermittlung beim Kauf von Immobilien. Der Käufer zahlt eine gesetzliche Vermittlungsprovision in Höhe von 3% (+ MwSt.) des vereinbarten Preises, und zwar nur im Falle des Kaufs der Immobilie. Sollte der Kauf nicht zustande kommen, ist der Vertrag für Sie nicht bindend und wird annulliert. Wenn Sie ernsthaft an der Immobilie interessiert sind, senden wir Ihnen den Vertrag auf Anfrage zu.
Wir werden Ihnen innerhalb von 24 Stunden antworten.
Wir bieten nur geprüfte Immobilien an.
Wir garantieren eine hohe Servicequalität.
Wir können Ihnen bei der Vermittlung von Unterkünften während der Besichtigungen helfen.
- Ich habe eine Immobilie aus dem Angebot ausgewählt
- Ich kontaktiere den Makler
- Ich unterschreibe einen Vertretungsvertrag - Details hier! (die Unterzeichnung des Vertrags ist gesetzlich vorgeschrieben)
- Ich richte eine OIB ein - Details hier (die Einrichtung ist gesetzlich vorgeschrieben)
- Besichtigungen vor Ort
- Unterzeichnung der Reservierung, des Kaufvertrags