DIE INSEL KRK, TRIBULJE – Projekt einer Doppelhaushälfte, jedes mit eigenem Pool
| Registrationsnummer | DN-26491 |
| Art des Angebots | Verkauf |
| Kategorie | Häuser |
| Bezirk | Primorsko-goranska |
| Gemeindeteil | Dobrinj |
| Gesamtfläche | 365 m² |
| Bebaute Fläche und Hof | 200 m² |
| Gesamt bebaut fläche | 200 m² |
| Entfernung vom meer | 3 000 m |
| Strom | |
| Wasser | |
| Abfall | |
| Energieintensität | A - extrem wirtschaftlich |
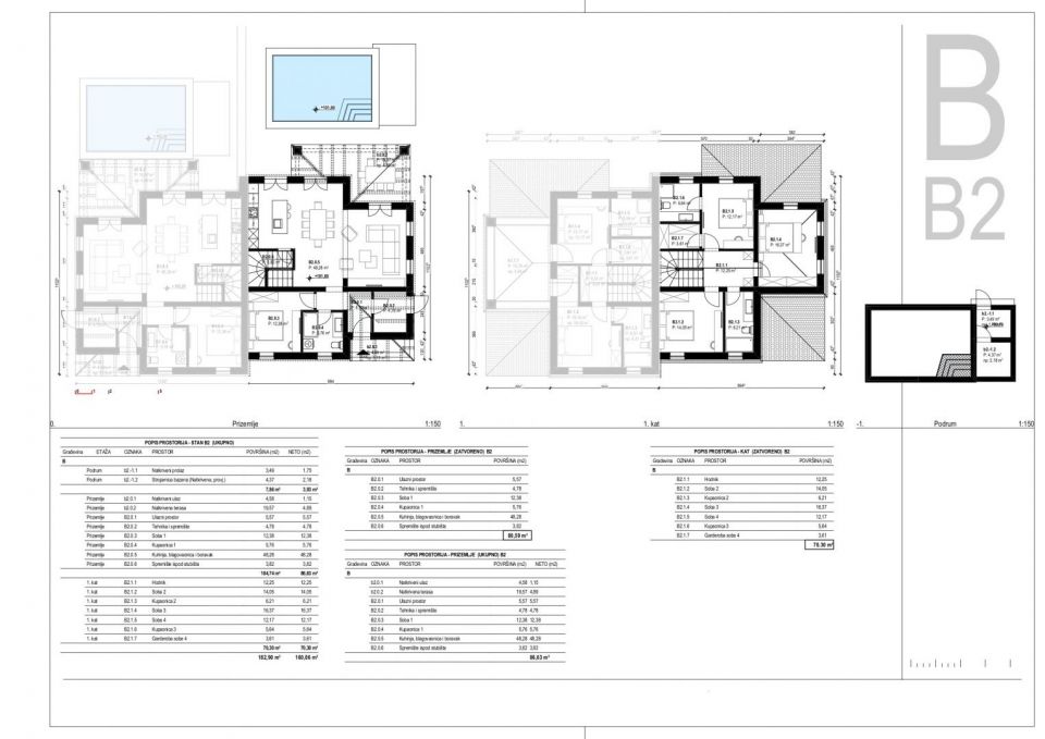
INSEL KRK, TRIBULJE - Projekt Doppelhaushälfte „B1“ und „B2“, jeweils mit eigenem Pool. Zum Verkauf steht das Projekt einer Doppelhaushälfte „B“ mit jeweils eigenem Pool, Garten und Parkplatz für je zwei Autos, die in ein Erdgeschoss und ein Obergeschoss aufgeteilt ist. Im Erdgeschoss des Hauses „B1“ finden wir einen offenen Wohnbereich mit Küche und Esszimmer mit Zugang zu einer überdachten Terrasse, einem Garten und einem Swimmingpool, sowie ein Schlafzimmer und ein Badezimmer. Im ersten Stock des Hauses verfügen wir über zwei weitere Schlafzimmer mit jeweils eigenem Bad und Kleiderschrank, wobei sich beide Zimmer eine überdachte Terrasse teilen. Die Gesamtfläche jedes Hauses beträgt 180 m2. Zu jedem Haus gehören zwei Parkplätze im Hof. Das Projekt wird mit Baugenehmigung, Preis auf Anfrage und der Möglichkeit einer Vereinbarung mit dem Verkäufer über den Bau und Verkauf in der schlüsselfertigen Phase verkauft.
Bei allen unseren Angeboten sind die Preise identisch mit dem Direktkauf bei der Agentur/dem Entwickler in Kroatien, da wir der offizielle Vertreter dieser Agenturen auf dem tschechischen, slowakischen, deutschen und österreichischen Markt sind. Dies gilt ohne zusätzliche Zuschläge für deutschsprachige Dienstleistungen.
Sehr geehrte Kunden, die Besichtigung von Immobilien, die Mitteilung der Lage und andere detaillierte Informationen sind nur mit einem unterzeichneten Vermittlungsvertrag möglich, der die Grundlage für weitere Aktionen wie den Kauf einer Immobilie bildet. Alles steht im Einklang mit dem Gesetz über die Vermittlung beim Kauf von Immobilien. Der Käufer zahlt eine gesetzliche Vermittlungsprovision in Höhe von 3% (+ MwSt.) des vereinbarten Preises, und zwar nur im Falle des Kaufs der Immobilie. Sollte der Kauf nicht zustande kommen, ist der Vertrag für Sie nicht bindend und wird annulliert. Wenn Sie ernsthaft an der Immobilie interessiert sind, senden wir Ihnen den Vertrag auf Anfrage zu.
Wir werden Ihnen innerhalb von 24 Stunden antworten.
Wir bieten nur geprüfte Immobilien an.
Wir garantieren eine hohe Servicequalität.
Wir können Ihnen bei der Vermittlung von Unterkünften während der Besichtigungen helfen.
- Ich habe eine Immobilie aus dem Angebot ausgewählt
- Ich kontaktiere den Makler
- Ich unterschreibe einen Vertretungsvertrag - Details hier! (die Unterzeichnung des Vertrags ist gesetzlich vorgeschrieben)
- Ich richte eine OIB ein - Details hier (die Einrichtung ist gesetzlich vorgeschrieben)
- Besichtigungen vor Ort
- Unterzeichnung der Reservierung, des Kaufvertrags