IČIĆI, POLJANE - zwei begonnene Bauprojekte 900 m² mit Panoramablick aufs Meer + Umgebung 1960 m²
| Registrationsnummer | DN-46174 |
| Art des Angebots | Verkauf |
| Kategorie | Häuser |
| Bezirk | Primorsko-goranska |
| Gemeindeteil | Opatija - Okolica |
| Preis | 1 550 000 € |
| Gesamtfläche | 900 m² |
| Bebaute Fläche und Hof | 1 960 m² |
| Gesamt bebaut fläche | 1 960 m² |
| Entfernung vom meer | 1 200 m |
| Strom | |
| Wasser |
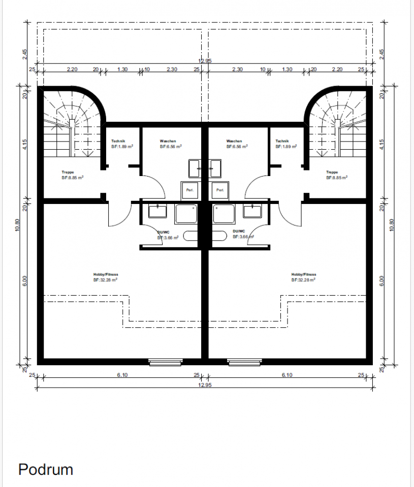
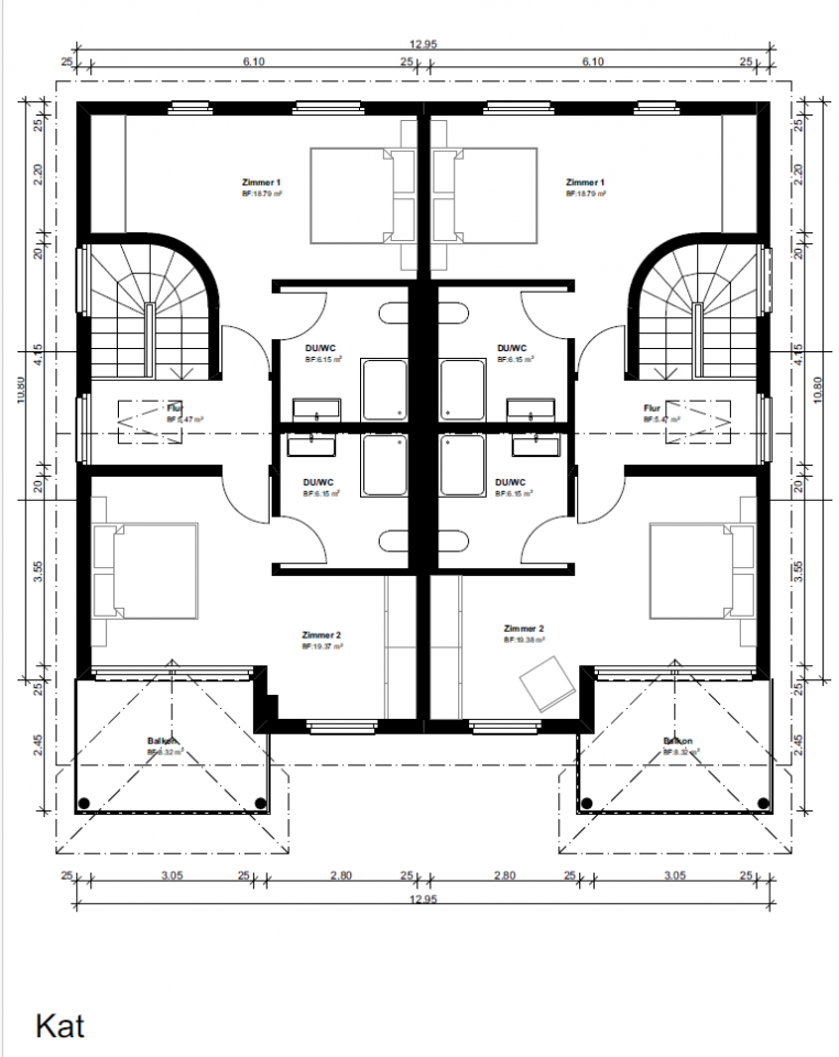
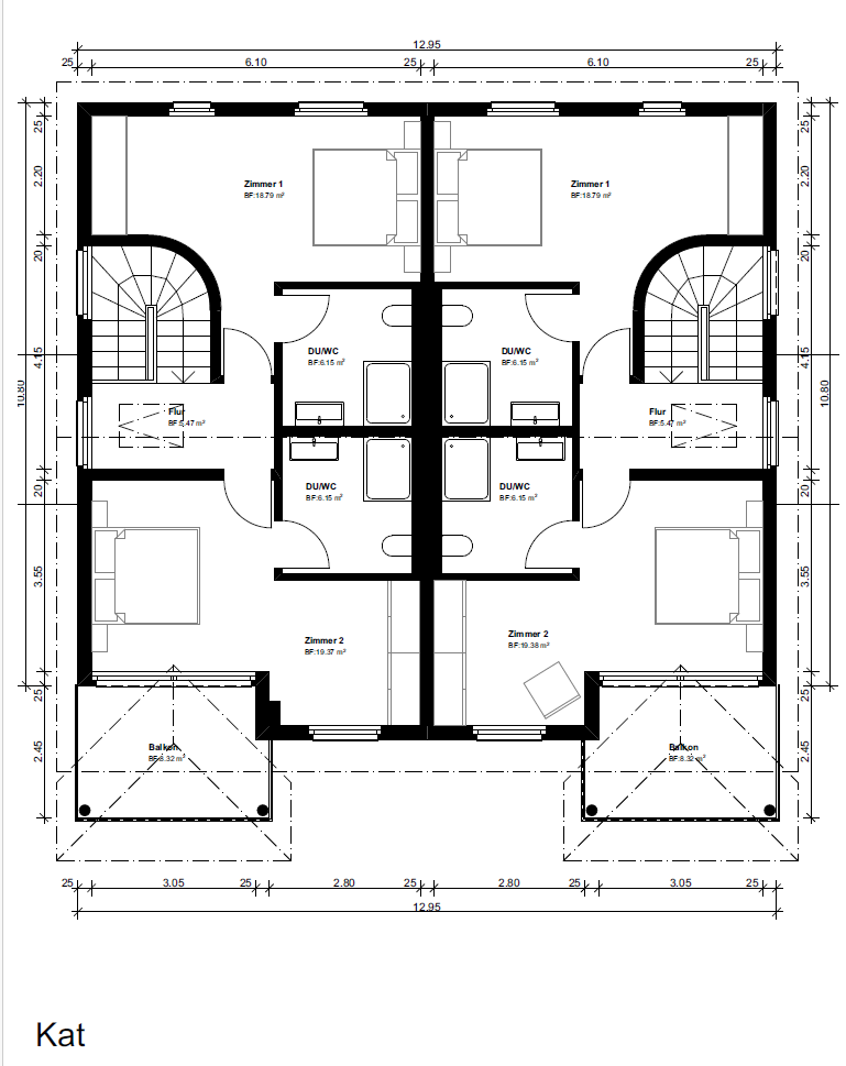
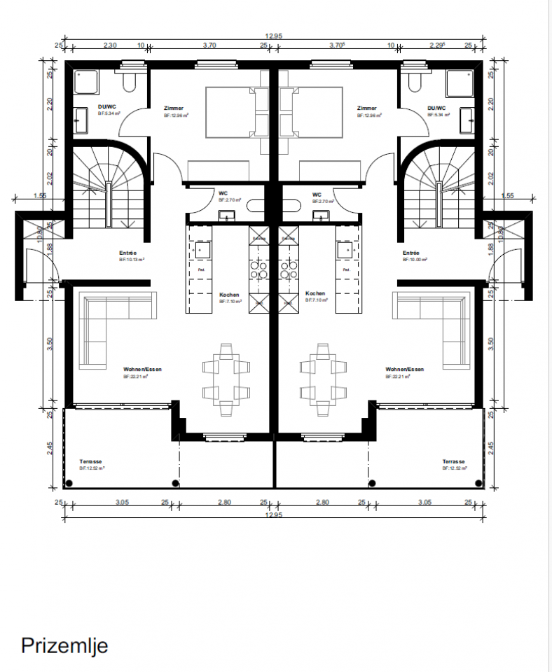
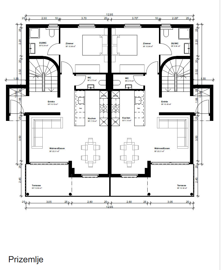
IČIĆI, POLJANE – Zwei begonnene Bauvorhaben: 900 m² Wohnfläche mit Panoramablick aufs Meer + 1960 m² Grundstück Das Baugrundstück liegt 1,2 km Luftlinie vom Meer entfernt, bietet einen freien Panoramablick aufs Meer und ist nach Süden ausgerichtet. Für die beiden Gebäude liegen zwei Baugenehmigungen vor: – Ein Haus mit 450 m² (Baugenehmigung) und Swimmingpool – alle Nebenkosten (Wasser, Strom, Telefon) sind bezahlt. – Keller und Bodenplatte sind fertiggestellt, der Hausbau kann sofort fortgesetzt werden! – Ein zweites Haus mit 450 m² (Baugenehmigung) und Swimmingpool – auch hier sind alle Nebenkosten (Wasser, Strom, Telefon) bezahlt. Dieses Haus besteht eigentlich aus zwei Doppelhaushälften (oder zwei dreigeschossigen Wohnungen), jeweils mit Keller, Erdgeschoss, erstem Obergeschoss und Dachgeschoss, die durch eine Innentreppe verbunden sind: Keller: Er besteht aus einem Heizraum, einem großen Badezimmer, einer Waschküche und einem großen Raum, der als Wellnessbereich, Fitnessraum, Kinderspielzimmer o. Ä. genutzt werden kann. Erdgeschoss: Es besteht aus Eingangsbereich, Wohnzimmer, Esszimmer, Küche, Gäste-WC, Schlafzimmer, Ankleidezimmer, Badezimmer und überdachter Terrasse. Erster Obergeschoss: Es besteht aus Flur, zwei Schlafzimmern, zwei Badezimmern, Ankleidezimmer und überdachter Terrasse. Dachgeschoss: Es besteht aus einem großen Raum, der nach den Wünschen des zukünftigen Eigentümers gestaltet werden kann. Dieses Haus wird in der hochwertigen Bauausführung angeboten: - Alle Fenster (inkl. elektrischer Jalousien) und Außentüren sind eingebaut. - Die Fassade ist 10 cm dick und fertiggestellt. - Fußbodenheizung – alle Installationen sind abgeschlossen, inklusive Außengerät und Warmwasserbereiter. - Die Wände sind komplett geglättet – Sie müssen nur noch die gewünschte Farbe auswählen und streichen. - Alle notwendigen Elektro-, Wasser- und Abwasserinstallationen in Böden und Wänden sind installiert (Fußbodenheizung, Klimaanlage, Wasser- und Abwasserleitungen, Koch- und Sanitäranlagen, Steckdosen etc.). - Alle Böden, Untergründe innen und außen sowie die Abdichtung sind fertig. Sie müssen nur noch die Fliesen und das Parkett auswählen und verlegen. Das Haus befindet sich im Bau und liegt in ruhiger Lage direkt an der Straße. Alle Anschlüsse sind vorhanden. Das Grundstück ist sauber und gepflegt. Zukünftige Gebäude auf diesem Grundstück bieten einen atemberaubenden Panoramablick auf das Meer, die gesamte Kvarner Bucht und die Inseln – sogar vom Erdgeschoss aus! Dieses Anwesen liegt 1,2 km Luftlinie vom Meer entfernt, mit dem Auto sind es ca. 3,4 km (ca. 7 Minuten). Eine hervorragende Gelegenheit für Investoren, die Ferienwohnungen oder Häuser zur Vermietung mit Pool bauen möchten, aber auch für alle, die ein Familienhaus in ruhiger, friedlicher Umgebung errichten wollen. IMMOBILIE IN AUSGEZEICHNETER UND EINZIGARTIGER LAGE MIT GROSSEM POTENZIAL!!! IČIĆI: Ičići ist ein kleiner Touristenort mit ca. 800 Einwohnern an der nördlichen Adria in der Kvarner-Bucht. Der Ort liegt 5 km von Opatija und 15 km von Rijeka entfernt. Er befindet sich am Fuße des 1401 m hohen Učka-Gebirges. Die Umgebung wurde aufgrund ihrer Einzigartigkeit und natürlichen Schönheit zum Naturpark erklärt. Die Bevölkerung lebt hauptsächlich vom Tourismus und Gastgewerbe. Dank seiner günstigen Lage hat sich Ičići im Laufe der Jahre zu einem beliebten Touristenziel mit vielfältigen Angeboten entwickelt. Neben einem reichhaltigen gastronomischen Angebot bietet der Ort zahlreiche Möglichkeiten für verschiedene Sportarten, Ausflüge und ein abwechslungsreiches Nachtleben. Von Ičići aus hat man einen wunderschönen Blick auf die beiden größten kroatischen Inseln Krk und Cres, die man auch mit dem Boot erreichen kann. Der Ort ist besonders für seinen hervorragend ausgestatteten ACI-Yachthafen bekannt. Dank der vielfältigen Unterkünfte (Hotels, Apartments, Campingplätze) und Sport- und Freizeitmöglichkeiten (Tennisplätze, Wassersport, Segeln usw.) hat sich der Wassertourismus hier bestens entwickelt. Auf dem Weg von Ičići nach Učka passiert man das kleine mittelalterliche Städtchen Veprinac, das über eigene Gesetze verfügt und dessen Geschichte bis ins Jahr 1500 zurückreicht. Ganz in der Nähe befindet sich der Campingplatz Ičići, der strandnah und unweit der Tennisplätze liegt. Die Hauptattraktion von Ičići ist zweifellos der Strand. Der Strand liegt mitten im Ort und besteht aus einem betonierten und einem sandigen Abschnitt. Jedes Jahr wird in die Verbesserung des Strandes investiert, weshalb er Jahr für Jahr mit der Blauen Flagge ausgezeichnet wird. Der Eintritt ist frei. Der Strand grenzt an einer Seite an die ACI Marina, während sich auf der anderen Seite ein kleiner Hafen befindet, der seit der Gründung von Ičići existiert und sich parallel zum Ort entwickelt hat. Dieser Hafen bietet Platz für kleinere Boote und erinnert daran, dass Ičići ein Küstenort ist. Besonders hervorzuheben ist, dass die berühmte Lungomare, eine 1885 von Kaiser Franz Joseph I. erbaute Küstenpromenade, durch Ičići führt. Diese wunderschön gestaltete Promenade ist 12 km lang und erstreckt sich von Volosko bis Lovran, wobei Ičići fast auf halber Strecke liegt. Sie ist abends dezent beleuchtet und lädt zu romantischen Spaziergängen ein. Die Stadt Ičići ist durch Überland- und Stadtbusse mit anderen Städten verbunden. Die sogenannten Fischerfeste sind besonders in Küstenstädten bekannt und finden in den Sommermonaten statt. Auch Ičići hat seine eigenen Feste, über die Einheimische und Touristen mehrere Tage im Voraus durch zahlreiche Plakate informiert werden. OPATIJA: Opatija, eine wunderschöne Küstenstadt an der Adria, ist ein beliebtes Reiseziel für Touristen aus aller Welt. Die Stadt liegt am Fuße des Učka-Gebirges, umgeben von herrlicher Natur. Immobilien in Opatija bieten einen unvergleichlichen Blick auf das Meer und die umliegenden Inseln Krk und Cres. Opatija ist von charmanten kleinen Städten mit alten Häusern in engen, geschichtsträchtigen Gassen umgeben. Die Straßen von Opatija sind geprägt von Immobilien mit besonderer Architektur und Villen aus der Habsburgerzeit. Eine große Auswahl an Stränden, kristallklares Meer und vielfältige touristische Angebote machen Opatija zu einem perfekten Reiseziel, das auch von den Nachbarländern als hervorragende Investitionsmöglichkeit anerkannt wird. Die Immobilienpreise in dieser Region steigen, die Vermietungsquote ist ausgezeichnet, was zu einer Rendite von 5 % bis 10 % geführt und ausländische Investoren angezogen hat. Sehr geehrte potenzielle Käufer, Mieter und Pächter, die Besichtigung der Immobilie, die Sie interessiert, ist ausschließlich nach Unterzeichnung eines Maklervertrags möglich. Dies dient dem Schutz des Eigentümers vor unbefugten Besuchen und entspricht dem Datenschutzgesetz und dem Maklergesetz. Bei der Besichtigung jeder Immobilie ist der potenzielle Käufer/Mieter/Pächter verpflichtet, einen Maklervertrag auszufüllen und zu unterzeichnen, der Folgendes regelt: - Grundlegende Informationen zum potenziellen Käufer/Mieter/Pächter - Grundlegende Informationen zum Maklerbüro - Höhe der Maklerprovision Die Maklerprovision für den Käufer beträgt 3 % (+ 25 % MwSt.) des vereinbarten Kaufpreises. Die Maklerprovision für den Pächter beträgt eine Monatsmiete (+ 25 % MwSt.).
Bei allen unseren Angeboten sind die Preise identisch mit dem Direktkauf bei der Agentur/dem Entwickler in Kroatien, da wir der offizielle Vertreter dieser Agenturen auf dem tschechischen, slowakischen, deutschen und österreichischen Markt sind. Dies gilt ohne zusätzliche Zuschläge für deutschsprachige Dienstleistungen.
Sehr geehrte Kunden, die Besichtigung von Immobilien, die Mitteilung der Lage und andere detaillierte Informationen sind nur mit einem unterzeichneten Vermittlungsvertrag möglich, der die Grundlage für weitere Aktionen wie den Kauf einer Immobilie bildet. Alles steht im Einklang mit dem Gesetz über die Vermittlung beim Kauf von Immobilien. Der Käufer zahlt eine gesetzliche Vermittlungsprovision in Höhe von 3% (+ MwSt.) des vereinbarten Preises, und zwar nur im Falle des Kaufs der Immobilie. Sollte der Kauf nicht zustande kommen, ist der Vertrag für Sie nicht bindend und wird annulliert. Wenn Sie ernsthaft an der Immobilie interessiert sind, senden wir Ihnen den Vertrag auf Anfrage zu.
Wir werden Ihnen innerhalb von 24 Stunden antworten.
Wir bieten nur geprüfte Immobilien an.
Wir garantieren eine hohe Servicequalität.
Wir können Ihnen bei der Vermittlung von Unterkünften während der Besichtigungen helfen.
- Ich habe eine Immobilie aus dem Angebot ausgewählt
- Ich kontaktiere den Makler
- Ich unterschreibe einen Vertretungsvertrag - Details hier! (die Unterzeichnung des Vertrags ist gesetzlich vorgeschrieben)
- Ich richte eine OIB ein - Details hier (die Einrichtung ist gesetzlich vorgeschrieben)
- Besichtigungen vor Ort
- Unterzeichnung der Reservierung, des Kaufvertrags