INSEL KRK, Inselinneres - Einfamilienhaus
| Registrationsnummer | DN-31635 |
| Art des Angebots | Verkauf |
| Kategorie | Häuser |
| Bezirk | Primorsko-goranska |
| Gemeindeteil | Dobrinj |
| Preis | 421 000 € |
| Gesamtfläche | 150 m² |
| Bebaute Fläche und Hof | 580 m² |
| Gesamt bebaut fläche | 580 m² |
| Entfernung vom meer | 1 500 m |
| Strom | |
| Wasser | |
| Gas | |
| Klimaanlage | |
| Preis (original) | 435 000 € |
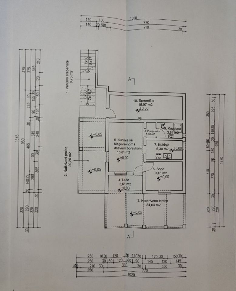
INSEL KRK, Inselinneres - Freistehendes Haus mit zwei Wohnungen Freistehendes Haus 150 m2, besteht aus Keller und Erdgeschoss, jede Etage hat einen eigenen Eingang. Das Erdgeschoss besteht aus einem offenen Raum, in dem sich ein Wohnzimmer und eine Küche mit Essbereich, zwei Schlafzimmer, ein Badezimmer und ein Abstellraum befinden, der in einen weiteren Raum umgewandelt werden kann. Das Wohnzimmer führt zu einer überdachten und gepflasterten Terrasse, die Platz für geselliges Beisammensein und Entspannen bietet. Im Anbau gibt es eine Sommerküche und einen Grill sowie einen großen, geräumigen Garten für Outdoor-Aktivitäten. Im Untergeschoss befinden sich ein Wohnzimmer mit Küche und Esszimmer, ein Schlafzimmer, ein Badezimmer, ein Abstellraum und eine großzügige Terrasse mit Blick auf den angelegten Garten. Das Haus ist komplett ausgestattet und möbliert, es verfügt über PVC-Tischlerei, elektrische Heizkörper und einen Holzofen, der im Winter für eine besondere Atmosphäre sorgt. Es liegt an einem ruhigen Ort, nur 1500 m vom Meer entfernt. Es eignet sich sowohl für einen ganzjährigen Aufenthalt als auch als hervorragende Investition in den Tourismus. Auf der Ostseite der Insel Krk liegt die Gemeinde Dobrinj mit dem gleichnamigen Zentrum. Dobrinj liegt auf einem etwa 200 Meter hohen Hügel und ist eine der mittelalterlichen Burgen, die in der Vergangenheit Zentren der Alphabetisierung waren. Dobrinjština war jahrhundertelang eine äußerst landwirtschaftlich geprägte Region. Auch Tierhaltung und Olivenanbau sowie die Ausbeutung der Waldressourcen waren vertreten. Der Ort ist auch für seine farbenfrohen Trachten, Folkloreveranstaltungen, die Sopela-Schule (Krks Blasinstrument) und die traditionelle lokale Küche bekannt. In diesem Inselzentrum dominieren autochthone Steinhäuser und enge Steingassen, die an die Vergangenheit erinnern. Nicht weit von Dobrinje entfernt befindet sich die Höhle Biserujka, die durch ihre Schönheit und interessante Felsformen begeistert. Es ist die einzige Höhle auf der Insel, von der es mehr als 50 gibt, die für den Empfang von Besuchern konzipiert ist. Der Legende nach wurde die Höhle nach dem darin gefundenen Schatz, der einheimischen Piraten gehörte, Biserujka (Perle) genannt.
Bei allen unseren Angeboten sind die Preise identisch mit dem Direktkauf bei der Agentur/dem Entwickler in Kroatien, da wir der offizielle Vertreter dieser Agenturen auf dem tschechischen, slowakischen, deutschen und österreichischen Markt sind. Dies gilt ohne zusätzliche Zuschläge für deutschsprachige Dienstleistungen.
Sehr geehrte Kunden, die Besichtigung von Immobilien, die Mitteilung der Lage und andere detaillierte Informationen sind nur mit einem unterzeichneten Vermittlungsvertrag möglich, der die Grundlage für weitere Aktionen wie den Kauf einer Immobilie bildet. Alles steht im Einklang mit dem Gesetz über die Vermittlung beim Kauf von Immobilien. Der Käufer zahlt eine gesetzliche Vermittlungsprovision in Höhe von 3% (+ MwSt.) des vereinbarten Preises, und zwar nur im Falle des Kaufs der Immobilie. Sollte der Kauf nicht zustande kommen, ist der Vertrag für Sie nicht bindend und wird annulliert. Wenn Sie ernsthaft an der Immobilie interessiert sind, senden wir Ihnen den Vertrag auf Anfrage zu.
Wir werden Ihnen innerhalb von 24 Stunden antworten.
Wir bieten nur geprüfte Immobilien an.
Wir garantieren eine hohe Servicequalität.
Wir können Ihnen bei der Vermittlung von Unterkünften während der Besichtigungen helfen.
- Ich habe eine Immobilie aus dem Angebot ausgewählt
- Ich kontaktiere den Makler
- Ich unterschreibe einen Vertretungsvertrag - Details hier! (die Unterzeichnung des Vertrags ist gesetzlich vorgeschrieben)
- Ich richte eine OIB ein - Details hier (die Einrichtung ist gesetzlich vorgeschrieben)
- Besichtigungen vor Ort
- Unterzeichnung der Reservierung, des Kaufvertrags