INSEL KRK, TRIBULJE - Baugrundstück mit Projekt
| Registrationsnummer | DN-30175 |
| Art des Angebots | Verkauf |
| Kategorie | Bauland |
| Bezirk | Primorsko-goranska |
| Gemeindeteil | Dobrinj |
| Preis | 269 000 € |
| Preis pro m2 | 311 €/m² |
| Gesamtfläche | 863 m² |
| Bebaute Fläche und Hof | 100 m² |
| Gesamt bebaut fläche | 100 m² |
| Entfernung vom meer | 3 000 m |
| Strom | |
| Wasser | |
| Abfall |
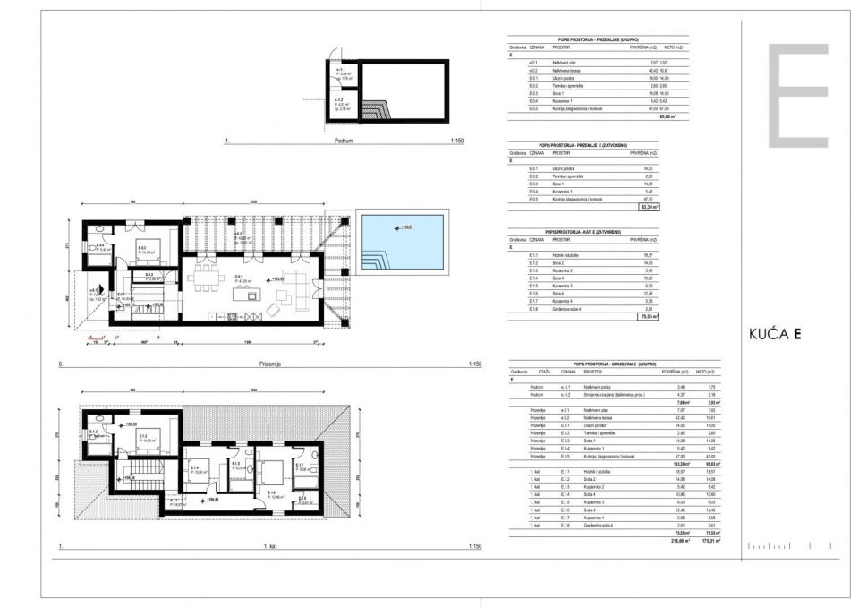
INSEL KRK, TRIBULJE - Projekt eines Einfamilienhauses mit Schwimmbad und Nebengebäude. Zum Verkauf steht das Projekt eines Einfamilienhauses „E“ mit Swimmingpool, Garten und Nebengebäude, das in Erdgeschoss und Obergeschoss aufgeteilt ist. Im Erdgeschoss des Hauses gibt es einen offenen Wohnbereich mit Küche und Esszimmer mit Zugang zu einer überdachten Terrasse, Garten und Swimmingpool sowie ein Schlafzimmer mit eigenem Bad. Im ersten Stock des Hauses haben wir drei weitere Schlafzimmer, jeweils mit eigenem Bad. Die Gesamtfläche des Hauses beträgt 216,80 m2. Das Haus verfügt über zwei Parkplätze im Hof. Das Projekt wird mit Baugenehmigung verkauft, Preis auf Anfrage, die Möglichkeit einer Vereinbarung mit dem Verkäufer über den Bau und Verkauf in der schlüsselfertigen Phase.
Bei allen unseren Angeboten sind die Preise identisch mit dem Direktkauf bei der Agentur/dem Entwickler in Kroatien, da wir der offizielle Vertreter dieser Agenturen auf dem tschechischen, slowakischen, deutschen und österreichischen Markt sind. Dies gilt ohne zusätzliche Zuschläge für deutschsprachige Dienstleistungen.
Sehr geehrte Kunden, die Besichtigung von Immobilien, die Mitteilung der Lage und andere detaillierte Informationen sind nur mit einem unterzeichneten Vermittlungsvertrag möglich, der die Grundlage für weitere Aktionen wie den Kauf einer Immobilie bildet. Alles steht im Einklang mit dem Gesetz über die Vermittlung beim Kauf von Immobilien. Der Käufer zahlt eine gesetzliche Vermittlungsprovision in Höhe von 3% (+ MwSt.) des vereinbarten Preises, und zwar nur im Falle des Kaufs der Immobilie. Sollte der Kauf nicht zustande kommen, ist der Vertrag für Sie nicht bindend und wird annulliert. Wenn Sie ernsthaft an der Immobilie interessiert sind, senden wir Ihnen den Vertrag auf Anfrage zu.
Wir werden Ihnen innerhalb von 24 Stunden antworten.
Wir bieten nur geprüfte Immobilien an.
Wir garantieren eine hohe Servicequalität.
Wir können Ihnen bei der Vermittlung von Unterkünften während der Besichtigungen helfen.
- Ich habe eine Immobilie aus dem Angebot ausgewählt
- Ich kontaktiere den Makler
- Ich unterschreibe einen Vertretungsvertrag - Details hier! (die Unterzeichnung des Vertrags ist gesetzlich vorgeschrieben)
- Ich richte eine OIB ein - Details hier (die Einrichtung ist gesetzlich vorgeschrieben)
- Besichtigungen vor Ort
- Unterzeichnung der Reservierung, des Kaufvertrags