INSEL RAB, BARBAT – Letzte Wohnung in TOP-Lage – 50m vom Meer entfernt!
| Registrationsnummer | DN-36777 |
| Art des Angebots | Verkauf |
| Kategorie | Appartements |
| Bezirk | Primorsko-goranska |
| Gemeindeteil | Rab |
| Preis | 501 000 € |
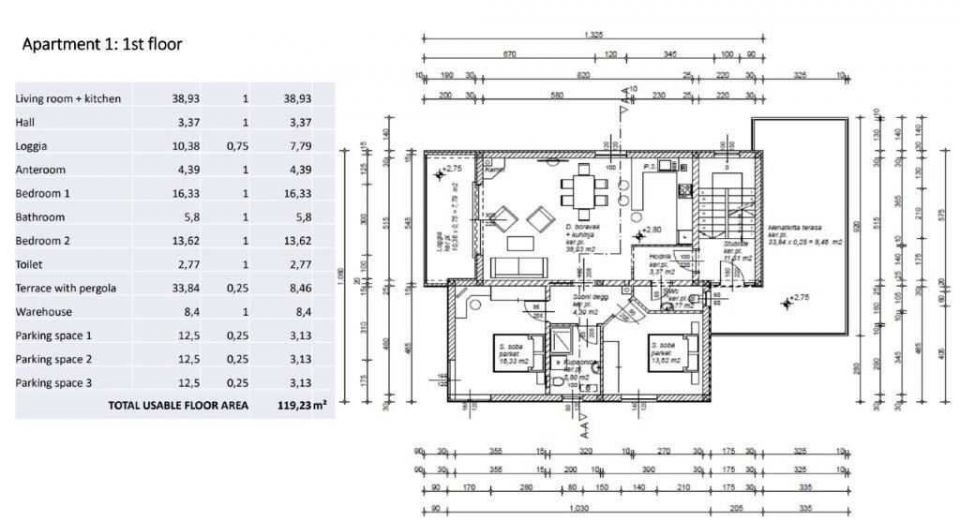
| Gesamtfläche | 119 m² |
| Wohnfläche (Wohnung) | 119 m² |
| Entfernung vom meer | 50 m |
| Strom | |
| Wasser | |
| Klimaanlage | |
| Heizung | ano |
| Energieintensität | X - Nicht ausgestellt |
INSEL RAB, BARBAT – Letzte Wohnung in TOP-Lage – 50m vom Meer entfernt! Zum Verkauf steht eine Einfamilienhauswohnung im 1. Obergeschoss eines Neubauwohnhauses. In einem modernen Neubau mit nur drei Luxuswohnungen steht eine großzügige Wohnung zum Verkauf, die mit hochwertigen Materialien gebaut und von einem Designer gestaltet wurde. Der Grundriss ist funktional gestaltet und lichtdurchflutet – eine „Open-Space“-Küche mit Essbereich und Wohnbereich mit Glaswand und Zugang zu einer 10,38 m2 großen Loggia. Darüber hinaus verfügt die Wohnung über zwei Schlafzimmer, ein Badezimmer und ein Gäste-WC. Im Hintergrund befindet sich eine großzügige Terrasse mit Pergola. Die Fertigstellung der Arbeiten ist für das Frühjahr 2025 geplant. Beim Bau wurden zertifizierte Materialien verwendet: Porotherm-Ziegel d=25cm, Ytong-Trennwände 10cm, TORBAN-Putz, Baumit-Fassade, Kömmerling-PVC-Tischlerei (Dreischichtglas, Moskitonetze, Rollläden), Sicherheitstüren. Der Bodenbelag besteht aus Vinylboden und italienischer/spanischer Keramik. Für die Beheizung und Kühlung der Räume sorgt eine Klimaanlage, darüber hinaus wurden jedoch auch zwei Schiedel-Kamine vorgesehen, die die Möglichkeit bieten, nachträglich einen Kamin oder Ofen einzubauen. Luxusanwesen in Toplage, in der Nähe wunderschöner Strände! Eine Immobilie, die Aufmerksamkeit verdient! Kontaktieren Sie uns noch heute und verpassen Sie nicht Ihre letzte Chance auf dieses Qualitätsgebäude! ***
Bei allen unseren Angeboten sind die Preise identisch mit dem Direktkauf bei der Agentur/dem Entwickler in Kroatien, da wir der offizielle Vertreter dieser Agenturen auf dem tschechischen, slowakischen, deutschen und österreichischen Markt sind. Dies gilt ohne zusätzliche Zuschläge für deutschsprachige Dienstleistungen.
Sehr geehrte Kunden, die Besichtigung von Immobilien, die Mitteilung der Lage und andere detaillierte Informationen sind nur mit einem unterzeichneten Vermittlungsvertrag möglich, der die Grundlage für weitere Aktionen wie den Kauf einer Immobilie bildet. Alles steht im Einklang mit dem Gesetz über die Vermittlung beim Kauf von Immobilien. Der Käufer zahlt eine gesetzliche Vermittlungsprovision in Höhe von 3% (+ MwSt.) des vereinbarten Preises, und zwar nur im Falle des Kaufs der Immobilie. Sollte der Kauf nicht zustande kommen, ist der Vertrag für Sie nicht bindend und wird annulliert. Wenn Sie ernsthaft an der Immobilie interessiert sind, senden wir Ihnen den Vertrag auf Anfrage zu.
Wir werden Ihnen innerhalb von 24 Stunden antworten.
Wir bieten nur geprüfte Immobilien an.
Wir garantieren eine hohe Servicequalität.
Wir können Ihnen bei der Vermittlung von Unterkünften während der Besichtigungen helfen.
- Ich habe eine Immobilie aus dem Angebot ausgewählt
- Ich kontaktiere den Makler
- Ich unterschreibe einen Vertretungsvertrag - Details hier! (die Unterzeichnung des Vertrags ist gesetzlich vorgeschrieben)
- Ich richte eine OIB ein - Details hier (die Einrichtung ist gesetzlich vorgeschrieben)
- Besichtigungen vor Ort
- Unterzeichnung der Reservierung, des Kaufvertrags