ISTRIA, KRŠAN - Modernes, eingeschossiges Haus mit Außenpool 111 m²
| Registrationsnummer | DN-47366 |
| Art des Angebots | Verkauf |
| Kategorie | Häuser |
| Bezirk | Istarska |
| Gemeindeteil | Kršan |
| Preis | 359 500 € |
| Gesamtfläche | 111 m² |
| Bebaute Fläche und Hof | 1 316 m² |
| Gesamt bebaut fläche | 1 316 m² |
| Entfernung vom meer | 7 400 m |
| Strom | |
| Klimaanlage | |
| Heizung | ano |
| Energieintensität | X - Nicht ausgestellt |
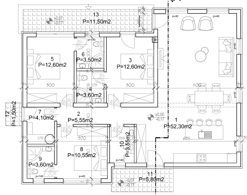
ISTRIEN, KRŠAN – Modernes Bungalow mit Pool im Grünen (111 m²) Dieses wunderschöne, moderne Bungalow liegt im Herzen Istriens. Es ist ideal für alle, die einen ruhigen Ort zum Entspannen und Genießen des mediterranen Klimas inmitten herrlicher Natur suchen. Nicht weit vom Meer und den ersten Stränden entfernt, aber dennoch fernab vom sommerlichen Trubel. Das Bungalow befindet sich auf einem 1453 m² großen Grundstück. Es verfügt über drei Schlafzimmer, jeweils mit eigenem Bad, einen offenen Wohn-/Essbereich mit Küche, einen Flur, ein Gäste-WC, einen Abstell-/Waschraum und eine Terrasse, die in den 111 m² großen Garten führt. Der Poolbereich umfasst ein Wohnzimmer mit Küche und zwei Schlafzimmer. Neben dem Pool (8 x 3,75 m) befinden sich eine 20 m² große Sommerküche, eine Sonnenterrasse und ein Garten. Das Objekt wird unmöbliert verkauft. Zwei sichere Parkplätze befinden sich im großzügigen Hof. Klimaanlage und Fußbodenheizung in den Badezimmern sind vorhanden. Das sonnige Haus ist bezugsfertig und wartet auf einen neuen Eigentümer, der die Innenausstattung nach seinen Wünschen und seinem Geschmack gestalten kann. Fertigstellung der Arbeiten im Oktober 2023.
Bei allen unseren Angeboten sind die Preise identisch mit dem Direktkauf bei der Agentur/dem Entwickler in Kroatien, da wir der offizielle Vertreter dieser Agenturen auf dem tschechischen, slowakischen, deutschen und österreichischen Markt sind. Dies gilt ohne zusätzliche Zuschläge für deutschsprachige Dienstleistungen.
Sehr geehrte Kunden, die Besichtigung von Immobilien, die Mitteilung der Lage und andere detaillierte Informationen sind nur mit einem unterzeichneten Vermittlungsvertrag möglich, der die Grundlage für weitere Aktionen wie den Kauf einer Immobilie bildet. Alles steht im Einklang mit dem Gesetz über die Vermittlung beim Kauf von Immobilien. Der Käufer zahlt eine gesetzliche Vermittlungsprovision in Höhe von 3% (+ MwSt.) des vereinbarten Preises, und zwar nur im Falle des Kaufs der Immobilie. Sollte der Kauf nicht zustande kommen, ist der Vertrag für Sie nicht bindend und wird annulliert. Wenn Sie ernsthaft an der Immobilie interessiert sind, senden wir Ihnen den Vertrag auf Anfrage zu.
Wir werden Ihnen innerhalb von 24 Stunden antworten.
Wir bieten nur geprüfte Immobilien an.
Wir garantieren eine hohe Servicequalität.
Wir können Ihnen bei der Vermittlung von Unterkünften während der Besichtigungen helfen.
- Ich habe eine Immobilie aus dem Angebot ausgewählt
- Ich kontaktiere den Makler
- Ich unterschreibe einen Vertretungsvertrag - Details hier! (die Unterzeichnung des Vertrags ist gesetzlich vorgeschrieben)
- Ich richte eine OIB ein - Details hier (die Einrichtung ist gesetzlich vorgeschrieben)
- Besichtigungen vor Ort
- Unterzeichnung der Reservierung, des Kaufvertrags