ISTRIA, MOTOVUN – Grundstück mit Baugenehmigung und attraktivem Projekt
| Registrationsnummer | DN-43596 |
| Art des Angebots | Verkauf |
| Kategorie | Bauland |
| Bezirk | Istarska |
| Gemeindeteil | Motovun |
| Preis | 150 000 € |
| Preis pro m2 | 137 €/m² |
| Gesamtfläche | 1 089 m² |
| Entfernung vom meer | 20 000 m |
| Strom |
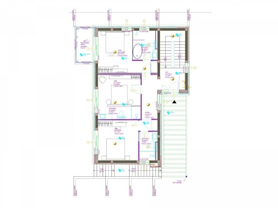
ISTRIEN, MOTOVUN – Baugrundstück mit Baugenehmigung und attraktivem Projekt Motovun ist ein beliebtes Reiseziel und gilt heute als Anziehungspunkt für Genießer aus aller Welt. Die antike istrische Akropolisstadt, die auf einem 277 Meter hohen Hügel über dem Tal der Mirna thront, zählt zu den schönsten Altstädten des Mittelmeerraums. Sie ist über die längste istrische Treppe mit 1052 Stufen erreichbar. Motovun ist ein Stadtdenkmal und gehört zum UNESCO-Welterbe. Was Motovun und seine Gemeinde mit einer Fläche von 33,58 km² auszeichnet, sind ihre Biodiversität, die reiche Flora und das besondere Mikroklima. Dank seiner spezifischen geomorphologischen Merkmale mit zahlreichen Hügeln besticht die Region durch ihre natürliche Schönheit und unvergessliche Panoramablicke. Unweit dieser malerischen istrischen Mittelalterstadt steht ein Baugrundstück mit Baugenehmigung und einem attraktiven Projekt zum Verkauf. Die Mikrolage am Rande der Siedlung und der Baustelle bietet ein authentisches Erlebnis einer kleinen istrischen Stadt: Ruhe und Abgeschiedenheit, Erholung vom Alltag und Ruhe, und gleichzeitig die Nähe zu den dynamischen istrischen Städten mit ihren vielfältigen Annehmlichkeiten. Das Katastergrundstück hat eine regelmäßige rechteckige Form, das Gelände ist eben und sauber, und die Strom- und Wasserversorgung ist bereits vorhanden. Für das Grundstück liegt eine gültige Baugenehmigung für ein Wohnhaus vor, dessen harmonische Architektur die Umgebung nicht beeinträchtigt, sondern eine gelungene Verbindung von Natur, traditioneller istrischer Architektur und modernem Design schafft. Nebengebäude und ein Swimmingpool sind ebenfalls geplant. Es handelt sich um ein komfortables Einfamilienhaus mit einer Wohneinheit auf zwei Etagen. Dank seiner Mikrolage, der optimalen Raumaufteilung, der klaren Eigentumsverhältnisse und der vollständigen Dokumentation bietet dieses Grundstück eine hervorragende Gelegenheit für den Bau eines Familienhauses oder Ferienhauses. Der Bau kann sofort beginnen. Die Nebenkosten sind bezahlt.
Bei allen unseren Angeboten sind die Preise identisch mit dem Direktkauf bei der Agentur/dem Entwickler in Kroatien, da wir der offizielle Vertreter dieser Agenturen auf dem tschechischen, slowakischen, deutschen und österreichischen Markt sind. Dies gilt ohne zusätzliche Zuschläge für deutschsprachige Dienstleistungen.
Sehr geehrte Kunden, die Besichtigung von Immobilien, die Mitteilung der Lage und andere detaillierte Informationen sind nur mit einem unterzeichneten Vermittlungsvertrag möglich, der die Grundlage für weitere Aktionen wie den Kauf einer Immobilie bildet. Alles steht im Einklang mit dem Gesetz über die Vermittlung beim Kauf von Immobilien. Der Käufer zahlt eine gesetzliche Vermittlungsprovision in Höhe von 3% (+ MwSt.) des vereinbarten Preises, und zwar nur im Falle des Kaufs der Immobilie. Sollte der Kauf nicht zustande kommen, ist der Vertrag für Sie nicht bindend und wird annulliert. Wenn Sie ernsthaft an der Immobilie interessiert sind, senden wir Ihnen den Vertrag auf Anfrage zu.
Wir werden Ihnen innerhalb von 24 Stunden antworten.
Wir bieten nur geprüfte Immobilien an.
Wir garantieren eine hohe Servicequalität.
Wir können Ihnen bei der Vermittlung von Unterkünften während der Besichtigungen helfen.
- Ich habe eine Immobilie aus dem Angebot ausgewählt
- Ich kontaktiere den Makler
- Ich unterschreibe einen Vertretungsvertrag - Details hier! (die Unterzeichnung des Vertrags ist gesetzlich vorgeschrieben)
- Ich richte eine OIB ein - Details hier (die Einrichtung ist gesetzlich vorgeschrieben)
- Besichtigungen vor Ort
- Unterzeichnung der Reservierung, des Kaufvertrags