ISTRIA, SVETVINČENAT – Building Plot with Building Permit in an Idyllic Location
| Registrationsnummer | DN-28512 |
| Art des Angebots | Verkauf |
| Kategorie | Bauland |
| Bezirk | Istarska |
| Gemeindeteil | Svetvinčenat |
| Preis | 90 000 € |
| Preis pro m2 | 183 €/m² |
| Gesamtfläche | 490 m² |
| Entfernung vom meer | 15 000 m |
| Strom |
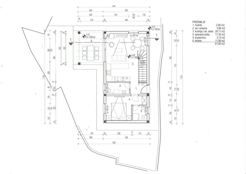
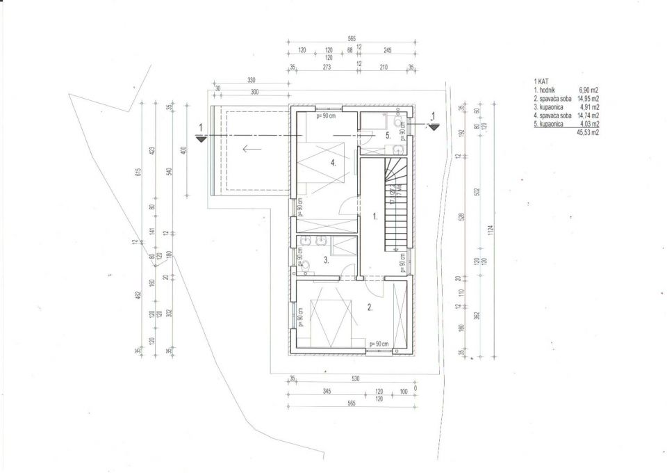
ISTRIEN, SVETVINČENAT – Baugrundstück mit Projekt in idyllischer Lage Die Renaissancestadt Svetvinčenat ist eines der Juwelen Istriens mit einem reichen touristischen Angebot und zahlreichen Veranstaltungen, die in den attraktiven Räumen dieser Stadt stattfinden. Svetvinčenta ist mit einem Renaissanceplatz mit einer Burg geschmückt, die das Symbol des Ortes selbst ist. Diese besondere, traditionsreiche Stadt lockt mit ihren interessanten und abwechslungsreichen Programmen, zu denen vor allem das Mittelalterfest, das Käsefest und das Tanz- und Nonverbale-Theater-Festival zählen, jedes Jahr zahlreiche Besucher an. Baugrundstück von 490 m2 zu verkaufen. Alle Genehmigungen für den Bau einer Villa mit Swimmingpool liegen vor. Der Baugenehmigungsantrag wurde eingereicht. Auch die geodätischen Untersuchungen wurden gelöst. Die Villa wird aus einem Erdgeschoss und einem Obergeschoss sowie einer Liegewiese und einem 4x7 m2 großen Swimmingpool bestehen. Am Pool wird es eine Terrasse und ein Haus mit Kamin zum Leben im Freien geben. Die Villa wird über drei Schlafzimmer, zwei Badezimmer, ein großes Wohnzimmer mit Küche und Esszimmer verfügen. Wasser und Strom sind in der Nähe, der Zugang erfolgt über eine asphaltierte Straße. Der halbe Betrag für den Stromanschluss wurde bezahlt. Auf dem Feld wurde eine große Klärgrube errichtet und um das Grundstück herum wurden Zäune errichtet. Im Preis inbegriffen sind der Bau einer Klärgrube und ein Teil des Zauns rund um das Grundstück. Im Laufe der Arbeiten wird der Preis angepasst. Derzeit gibt es auf dem Grundstück ein 3x8 m2 großes Mobilheim, komplett ausgestattet und mit einer nicht septischen Tank verbunden, das gegen Aufpreis zusätzlich erworben werden kann. Kaufmöglichkeiten: 1. Grundstück mit eingereichter Baugenehmigung, errichtetes Wirtschaftshaus mit Kamin mit abgeschlossener Schreinerei und Toilette, Zaunmauern, Klärgrube. Die Hälfte des Stromanschlusses wird bezahlt. Der Preis beträgt 110.000 Euro. 2. Grundstück mit einem gebauten Haus in der Roh-Bau-Phase, d. h. einem Haus unter dem Dach, außen verputzt, Außenschreinereiarbeiten und einem ausgegrabenen Pool, einer funktionierenden Klärgrube, einem Außenhaus mit Kamin und Zaunmauern. Der Preis beträgt 250.000 Euro. 3. Es besteht auch die Möglichkeit, ein fertiges Haus zu kaufen, wobei der Käufer mehrere Zahlungsphasen durchläuft, bis der Bau schlüsselfertig fertiggestellt ist. Der Preis beträgt 350.000 Euro. Etwa 100 Meter entfernt befindet sich neben der asphaltierten Straße ein weiteres kleineres Baugrundstück von 330 m2, das zusammen mit diesem Grundstück erworben werden kann. Die Zaunmauern und die Klärgrube befinden sich derzeit im Bau. Vodnjan und Svetvinčenat sind 10 km, Fažana 14 km und Pula 19 km entfernt. Schönes Grundstück zum Bau eines Ferienhauses oder eines Einfamilienhauses.
Bei allen unseren Angeboten sind die Preise identisch mit dem Direktkauf bei der Agentur/dem Entwickler in Kroatien, da wir der offizielle Vertreter dieser Agenturen auf dem tschechischen, slowakischen, deutschen und österreichischen Markt sind. Dies gilt ohne zusätzliche Zuschläge für deutschsprachige Dienstleistungen.
Sehr geehrte Kunden, die Besichtigung von Immobilien, die Mitteilung der Lage und andere detaillierte Informationen sind nur mit einem unterzeichneten Vermittlungsvertrag möglich, der die Grundlage für weitere Aktionen wie den Kauf einer Immobilie bildet. Alles steht im Einklang mit dem Gesetz über die Vermittlung beim Kauf von Immobilien. Der Käufer zahlt eine gesetzliche Vermittlungsprovision in Höhe von 3% (+ MwSt.) des vereinbarten Preises, und zwar nur im Falle des Kaufs der Immobilie. Sollte der Kauf nicht zustande kommen, ist der Vertrag für Sie nicht bindend und wird annulliert. Wenn Sie ernsthaft an der Immobilie interessiert sind, senden wir Ihnen den Vertrag auf Anfrage zu.
Wir werden Ihnen innerhalb von 24 Stunden antworten.
Wir bieten nur geprüfte Immobilien an.
Wir garantieren eine hohe Servicequalität.
Wir können Ihnen bei der Vermittlung von Unterkünften während der Besichtigungen helfen.
- Ich habe eine Immobilie aus dem Angebot ausgewählt
- Ich kontaktiere den Makler
- Ich unterschreibe einen Vertretungsvertrag - Details hier! (die Unterzeichnung des Vertrags ist gesetzlich vorgeschrieben)
- Ich richte eine OIB ein - Details hier (die Einrichtung ist gesetzlich vorgeschrieben)
- Besichtigungen vor Ort
- Unterzeichnung der Reservierung, des Kaufvertrags