ISTRIEN, BARBAN - Baugrundstück mit eingereichter Anfrage für den Bau einer modernen Villa
| Registrationsnummer | DN-32183 |
| Art des Angebots | Verkauf |
| Kategorie | Bauland |
| Bezirk | Istarska |
| Gemeindeteil | Barban |
| Preis | 106 000 € |
| Preis pro m2 | 138 €/m² |
| Gesamtfläche | 763 m² |
| Strom | |
| Wasser | |
| Heizung | ano |
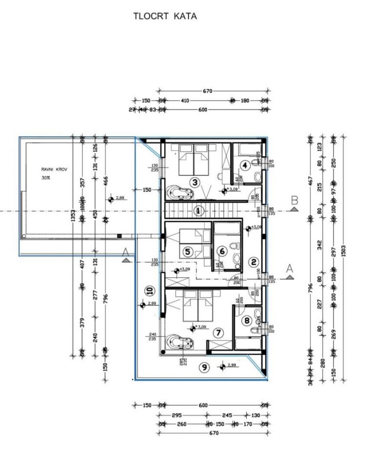
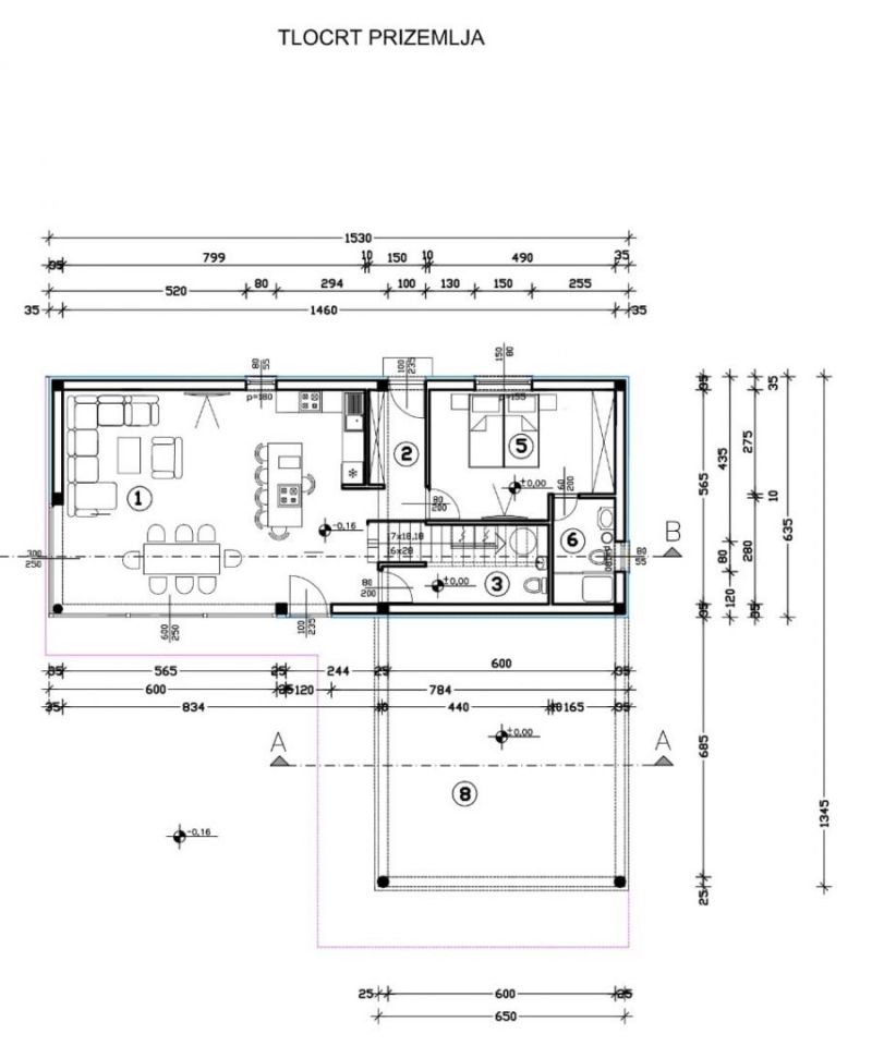
ISTRIEN, BARBAN - Baugrundstück in ruhiger Lage, auf dem ein Baugenehmigungsantrag für den Bau einer freistehenden modernen und luxuriösen Villa eingereicht wurde. Mit Stolz präsentieren wir diese hervorragende Gelegenheit für alle, die auf der Suche nach Grundstücken für den Bau eines Einfamilienhauses oder einer Immobilie sind, mit denen sie sich eine Rendite ihrer Investition in Form von Tourismus oder späterem Weiterverkauf sichern möchten. Es handelt sich um ein hochwertiges Baugrundstück, das insgesamt 763m2 groß ist. Es hat eine rechteckige Form und ist daher maximal nutzbar. Die Grundstückseigentümer haben derzeit einen Antrag für den Bau einer freistehenden, modernen und äußerst luxuriösen Villa mit einer Nettofläche von ca. 280 m² eingereicht, die in zwei Etagen, Erdgeschoss und erste Etage, unterteilt ist. Das Erdgeschoss der Villa soll aus einem „Open Space“-Wohnbereich mit Wohnzimmer, Küche und Esszimmer bestehen. Dann würde sich im Erdgeschoss das erste Schlafzimmer mit eigenem Bad und Gäste-WC sowie ein Vorraum mit Garderobenbereich befinden. Eine Innentreppe führt in die erste Etage der Villa, wo sich drei weitere Schlafzimmer befinden, von denen eines das Hauptschlafzimmer ist. Jedes Schlafzimmer hätte ein eigenes Badezimmer, sowie Zugang zu einer teilweise überdachten Terrasse mit herrlichem Blick auf die Hügellandschaft. Selbstverständlich gehört zur Villa auch ein Swimmingpool mit den Maßen 4,30m x 11,25m, mit einer größeren überdachten Terrasse, auf der Sitz- und Unterhaltungsmöglichkeiten vorgesehen sind. Grundstücksabmessungen: * Breite: 24,21 m * Länge: 37,61 m ZUSÄTZLICHE INFORMATIONEN: * Das Eigentum ist ordentlich, 1/1 Eigentümer, keine Belastungen. * Möglichkeit zum Bau einer Ferienvilla oder eines Familienhauses. * Der Abstand zwischen dem Gebäude und der Grundstücksgrenze muss 4 m betragen. * Bebaubarkeit 30 %. * Es ist ein Schrägdach erforderlich. * Infrastruktur auf dem Land. * Es besteht die Möglichkeit, weitere 3 Grundstücke + ein weiteres Grundstück zu kaufen, auf dem ein Antrag für den Bau einer identischen Villa gestellt wurde. Für weitere Fragen, notwendige Informationen oder den Wunsch, einen Termin zur Grundstücksbesichtigung, Einsichtnahme in die Dokumentation und Besichtigung des Standortes zu vereinbaren, können Sie sich gerne an uns wenden!
Bei allen unseren Angeboten sind die Preise identisch mit dem Direktkauf bei der Agentur/dem Entwickler in Kroatien, da wir der offizielle Vertreter dieser Agenturen auf dem tschechischen, slowakischen, deutschen und österreichischen Markt sind. Dies gilt ohne zusätzliche Zuschläge für deutschsprachige Dienstleistungen.
Sehr geehrte Kunden, die Besichtigung von Immobilien, die Mitteilung der Lage und andere detaillierte Informationen sind nur mit einem unterzeichneten Vermittlungsvertrag möglich, der die Grundlage für weitere Aktionen wie den Kauf einer Immobilie bildet. Alles steht im Einklang mit dem Gesetz über die Vermittlung beim Kauf von Immobilien. Der Käufer zahlt eine gesetzliche Vermittlungsprovision in Höhe von 3% (+ MwSt.) des vereinbarten Preises, und zwar nur im Falle des Kaufs der Immobilie. Sollte der Kauf nicht zustande kommen, ist der Vertrag für Sie nicht bindend und wird annulliert. Wenn Sie ernsthaft an der Immobilie interessiert sind, senden wir Ihnen den Vertrag auf Anfrage zu.
Wir werden Ihnen innerhalb von 24 Stunden antworten.
Wir bieten nur geprüfte Immobilien an.
Wir garantieren eine hohe Servicequalität.
Wir können Ihnen bei der Vermittlung von Unterkünften während der Besichtigungen helfen.
- Ich habe eine Immobilie aus dem Angebot ausgewählt
- Ich kontaktiere den Makler
- Ich unterschreibe einen Vertretungsvertrag - Details hier! (die Unterzeichnung des Vertrags ist gesetzlich vorgeschrieben)
- Ich richte eine OIB ein - Details hier (die Einrichtung ist gesetzlich vorgeschrieben)
- Besichtigungen vor Ort
- Unterzeichnung der Reservierung, des Kaufvertrags