ISTRIEN, BARBAN - Komplex von Baugrundstücken mit eingereichter Anfrage für den Bau freistehender moderner Villen
| Registrationsnummer | DN-32185 |
| Art des Angebots | Verkauf |
| Kategorie | Bauland |
| Bezirk | Istarska |
| Gemeindeteil | Barban |
| Preis | 200 000 € |
| Preis pro m2 | 98 €/m² |
| Gesamtfläche | 2 036 m² |
| Strom | |
| Wasser | |
| Heizung | ano |
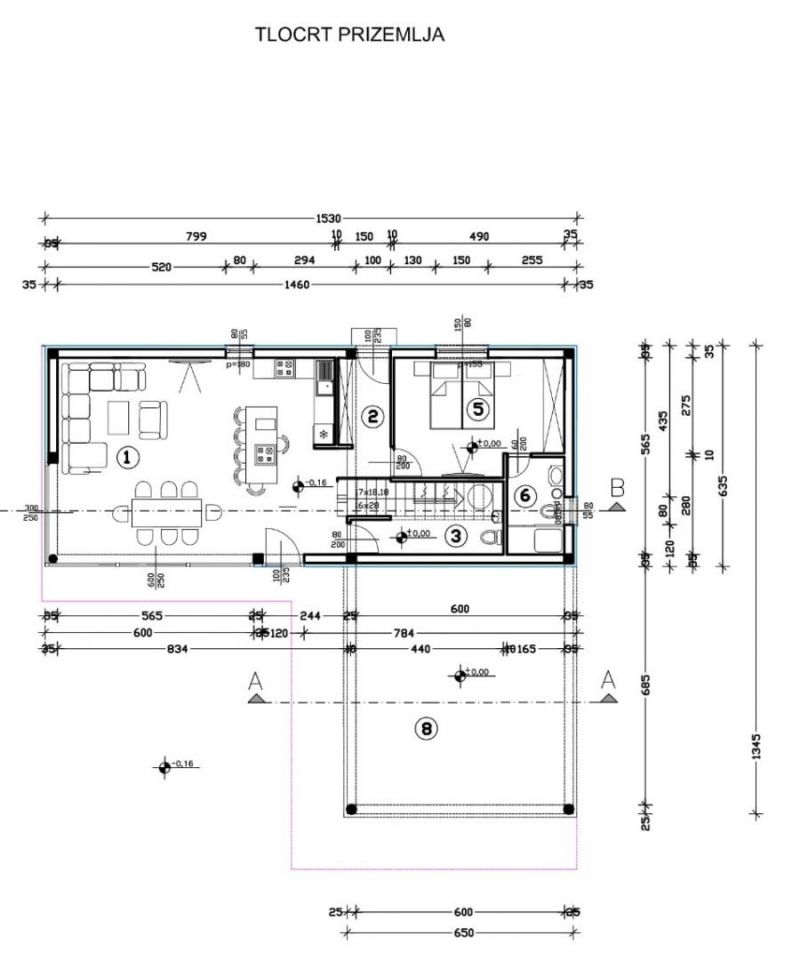
ISTRIEN, BARBAN - Ein Komplex von Baugrundstücken in ruhiger Lage nebeneinander. Für zwei Grundstücke wurde bereits ein Baugenehmigungsantrag für den Bau freistehender moderner und luxuriöser Villen eingereicht. Wir sind stolz, diese hervorragende Gelegenheit für alle zu präsentieren, die auf der Suche nach einem Grundstück für den Bau eines modernen Villenkomplexes mit sicherer Kapitalrendite sind. BESCHREIBUNG DES GRUNDSTÜCKS: Es handelt sich um einen Komplex aus 5 Baugrundstücken mit einer Gesamtfläche von 3890 m2. Jedes Grundstück einzeln: * Grundstück 1: 517 m – Breite: 21,25 m, Länge: 24,80 m * Grundstück 2: 539 m2 – Breite: 19,48 m, Länge: 26,98 m * Grundstück 3: 747 m2 – Breite: 26,80 m, Länge: 29,29 m * Grundstück 4: 763 m2 – Breite: 24,21 m, Länge: 37,61 m * Grundstück 5: 526 m2 – Breite: 20,65 m, Länge: 27,32 m. Wir müssen darauf hinweisen, dass die Eigentümer für Grundstück 3 und Grundstück 4 einen Antrag für den Bau gestellt haben freistehende, moderne und äußerst luxuriöse Villen mit einer Nettofläche von ca. 280 m², die in zwei Etagen unterteilt sind: Erdgeschoss und erste Etage. BESCHREIBUNG DER ZUKÜNFTIGEN VILLEN: Das Erdgeschoss der Villen soll aus einem „Open Space“-Wohnbereich mit Wohnzimmer, Küche und Esszimmer bestehen. Dann würde sich im Erdgeschoss das erste Schlafzimmer mit eigenem Bad und Gäste-WC sowie ein Vorraum mit Garderobenbereich befinden. Eine Innentreppe führt in die erste Etage der Villa, wo sich drei weitere Schlafzimmer befinden, von denen eines das Hauptschlafzimmer ist. Jedes Schlafzimmer auf dieser Etage hätte ein eigenes Badezimmer sowie Zugang zu einer teilweise überdachten Terrasse mit herrlichem Blick auf die Hügellandschaft. Selbstverständlich verfügt jede der Villen über einen eigenen Swimmingpool im Garten, der 4,30 x 11,25 m groß ist, mit einer größeren überdachten Terrasse, auf der Sitz- und Unterhaltungsmöglichkeiten vorgesehen sind. ZUSÄTZLICHE INFORMATIONEN: * Der Besitz des Grundstücks ist in Ordnung, ohne Belastungen. * Möglichkeit des Baus von Ferienvillen oder Familienhäusern. * Der vorgeschriebene Abstand zwischen Gebäuden und der Grundstücksgrenze beträgt 4 m. * Bebaubarkeit 30 % auf jedem Grundstück. *Pflicht eines Schrägdaches. * Es besteht auch die Möglichkeit des Kaufs; - einzeln die Grundstücke 3 und 4, - die Grundstücke 3 und 4 zusammen, - oder die Grundstücke 1, 2 und 5 zusammen. Für weitere Fragen, notwendige Informationen oder den Wunsch, einen Termin zur Grundstücksbesichtigung, Einsichtnahme in die Dokumentation und Besichtigung des Standortes zu vereinbaren, fühlen Sie sich frei uns zu kontaktieren!
Bei allen unseren Angeboten sind die Preise identisch mit dem Direktkauf bei der Agentur/dem Entwickler in Kroatien, da wir der offizielle Vertreter dieser Agenturen auf dem tschechischen, slowakischen, deutschen und österreichischen Markt sind. Dies gilt ohne zusätzliche Zuschläge für deutschsprachige Dienstleistungen.
Sehr geehrte Kunden, die Besichtigung von Immobilien, die Mitteilung der Lage und andere detaillierte Informationen sind nur mit einem unterzeichneten Vermittlungsvertrag möglich, der die Grundlage für weitere Aktionen wie den Kauf einer Immobilie bildet. Alles steht im Einklang mit dem Gesetz über die Vermittlung beim Kauf von Immobilien. Der Käufer zahlt eine gesetzliche Vermittlungsprovision in Höhe von 3% (+ MwSt.) des vereinbarten Preises, und zwar nur im Falle des Kaufs der Immobilie. Sollte der Kauf nicht zustande kommen, ist der Vertrag für Sie nicht bindend und wird annulliert. Wenn Sie ernsthaft an der Immobilie interessiert sind, senden wir Ihnen den Vertrag auf Anfrage zu.
Wir werden Ihnen innerhalb von 24 Stunden antworten.
Wir bieten nur geprüfte Immobilien an.
Wir garantieren eine hohe Servicequalität.
Wir können Ihnen bei der Vermittlung von Unterkünften während der Besichtigungen helfen.
- Ich habe eine Immobilie aus dem Angebot ausgewählt
- Ich kontaktiere den Makler
- Ich unterschreibe einen Vertretungsvertrag - Details hier! (die Unterzeichnung des Vertrags ist gesetzlich vorgeschrieben)
- Ich richte eine OIB ein - Details hier (die Einrichtung ist gesetzlich vorgeschrieben)
- Besichtigungen vor Ort
- Unterzeichnung der Reservierung, des Kaufvertrags