ISTRIEN, BRTONIGLA – Grundstück mit Baugenehmigung
| Registrationsnummer | DN-36749 |
| Art des Angebots | Verkauf |
| Kategorie | Bauland |
| Bezirk | Istarska |
| Gemeindeteil | Brtonigla |
| Preis | 150 000 € |
| Preis pro m2 | 173 €/m² |
| Gesamtfläche | 863 m² |
| Entfernung vom meer | 4 300 m |
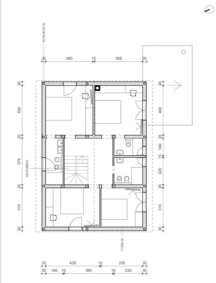
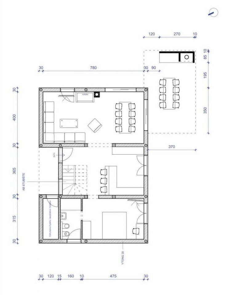
STRA, BRTONIGLA – Grundstück mit Baugenehmigung Brtonigla ist eine Gemeinde reich an natürlichen Ressourcen und stolz auf ihre unberührte Natur. Es umfasst die Meeresküste und das im Landesinneren gelegene, grüne Istrien. In der Gemeinde herrscht ein mildes, mediterranes Klima, das das ganze Jahr über einen angenehmen Aufenthalt ermöglicht. Der Großteil der erwerbstätigen Bevölkerung der Gemeinde ist in der Landwirtschaft tätig und die wichtigsten Qualitätsprodukte sind Wein, Oliven und Olivenöl, Käse, Fisch, Trüffel, Fleisch, istrischer Schinken, Gemüse und einzigartige duftende und aromatische Kräuter. Der zweite große Wirtschaftszweig der Gemeinde ist der Tourismus. Dort befindet sich auch der zweitbeste Aquapark Europas. In der Nähe von Brtonigla steht ein 863 m2 großes Baugrundstück mit Masterprojekt, Baugenehmigung und bezahlten Versorgungsbeiträgen zum Verkauf. Dem Projekt zufolge ist der Bau eines Ferienhauses mit Swimmingpool geplant. Die Nettofläche des Gebäudes beträgt ca. 170 m2. Das Grundstück ist eben, mit Zufahrtsstraße, am Ortsrand gelegen und eignet sich hervorragend für den Bau eines Ferienhauses oder eines Einfamilienhauses. Wasser- und Stromanschlüsse befinden sich in unmittelbarer Nähe. Sofort baufertig! Ausgezeichnete Lage, nur 4 km vom Meer entfernt. Die Immobilie ist Eigentum einer umsatzsteuerpflichtigen juristischen Person und der Käufer unterliegt nicht der Grunderwerbsteuer.
Bei allen unseren Angeboten sind die Preise identisch mit dem Direktkauf bei der Agentur/dem Entwickler in Kroatien, da wir der offizielle Vertreter dieser Agenturen auf dem tschechischen, slowakischen, deutschen und österreichischen Markt sind. Dies gilt ohne zusätzliche Zuschläge für deutschsprachige Dienstleistungen.
Sehr geehrte Kunden, die Besichtigung von Immobilien, die Mitteilung der Lage und andere detaillierte Informationen sind nur mit einem unterzeichneten Vermittlungsvertrag möglich, der die Grundlage für weitere Aktionen wie den Kauf einer Immobilie bildet. Alles steht im Einklang mit dem Gesetz über die Vermittlung beim Kauf von Immobilien. Der Käufer zahlt eine gesetzliche Vermittlungsprovision in Höhe von 3% (+ MwSt.) des vereinbarten Preises, und zwar nur im Falle des Kaufs der Immobilie. Sollte der Kauf nicht zustande kommen, ist der Vertrag für Sie nicht bindend und wird annulliert. Wenn Sie ernsthaft an der Immobilie interessiert sind, senden wir Ihnen den Vertrag auf Anfrage zu.
Wir werden Ihnen innerhalb von 24 Stunden antworten.
Wir bieten nur geprüfte Immobilien an.
Wir garantieren eine hohe Servicequalität.
Wir können Ihnen bei der Vermittlung von Unterkünften während der Besichtigungen helfen.
- Ich habe eine Immobilie aus dem Angebot ausgewählt
- Ich kontaktiere den Makler
- Ich unterschreibe einen Vertretungsvertrag - Details hier! (die Unterzeichnung des Vertrags ist gesetzlich vorgeschrieben)
- Ich richte eine OIB ein - Details hier (die Einrichtung ist gesetzlich vorgeschrieben)
- Besichtigungen vor Ort
- Unterzeichnung der Reservierung, des Kaufvertrags