ISTRIEN, GRAČIŠĆE – Der Bau eines attraktiven einstöckigen Hauses hat begonnen
| Registrationsnummer | DN-28446 |
| Art des Angebots | Verkauf |
| Kategorie | Bauland |
| Bezirk | Istarska |
| Gemeindeteil | Gračišće |
| Preis | 260 000 € |
| Preis pro m2 | 130 €/m² |
| Gesamtfläche | 2 000 m² |
| Bebaute Fläche und Hof | 2 000 m² |
| Gesamt bebaut fläche | 2 000 m² |
| Entfernung vom meer | 27 000 m |
| Strom |
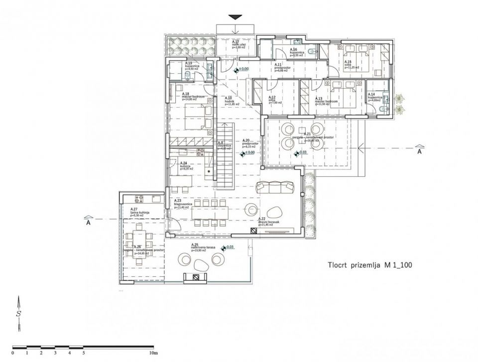
ISTRIEN, GRAČIŠĆE – Der Bau eines attraktiven Einfamilienhauses hat begonnen. Gračišće ist eine kleine Stadt mit sehr markanter Architektur und einer spannenden Geschichte. Aufgrund der erhaltenen mittelalterlichen Stadtstruktur und zahlreichen kulturgeschichtlichen Denkmälern unterliegt die Stadt selbst in ihrer Gesamtheit dem Rechtsschutz. Es liegt auf einer Klippe oberhalb von Čepićko polje, einem ehemaligen See, von wo aus man einen wunderschönen Panoramablick auf die umliegenden Hügel, Učka, die Julischen Alpen und die Dolomiten hat. Es liegt etwa 8 Kilometer östlich von Pazin, an der Straße Pazin-Kršan-Vozilići. Gračišće ist von üppigem Grün und einem reichen architektonischen und natürlichen Erbe umgeben und ist heute das Zentrum der gleichnamigen Gemeinde, die etwa 60 Quadratkilometer umfasst. Am Rande einer sanften Siedlung liegt ein weitläufiges Grundstück mit relativ regelmäßiger Form, das über eine asphaltierte Straße erreichbar ist. Auf dem Grundstück wurde laut Baugenehmigung mit dem Bau eines Wohngebäudes mit einer Nettofläche von 267,35 m² und eines Nebengebäudes begonnen; Schwimmbad von 35 m². Konzipiert wurde es als zweigeschossiges Haus in modernem, zeitlosem Design mit einer Wohneinheit, die sich über das Unter- und Erdgeschoss erstreckt und einen hohen Wohnstandard verspricht. Bisher wurden ein Keller von 73,62 m², eine Klärgrube und ein Großteil des Steinzauns gebaut. Im bebauten Teil des Gebäudes wurden Strom und Wasser sowie die Hauptabwasser- und Regenwasserkanäle abgeschaltet. Der Stromschrank und der Wasserschacht befinden sich auf dem Feld. Auf der freien Grünfläche wurde ein Obstgarten angelegt. Dieses großzügige Grundstück, das Privatsphäre und Ruhe bietet, ist eine ideale Gelegenheit für den Bau eines Einfamilienhauses oder Ferienhauses.
Bei allen unseren Angeboten sind die Preise identisch mit dem Direktkauf bei der Agentur/dem Entwickler in Kroatien, da wir der offizielle Vertreter dieser Agenturen auf dem tschechischen, slowakischen, deutschen und österreichischen Markt sind. Dies gilt ohne zusätzliche Zuschläge für deutschsprachige Dienstleistungen.
Sehr geehrte Kunden, die Besichtigung von Immobilien, die Mitteilung der Lage und andere detaillierte Informationen sind nur mit einem unterzeichneten Vermittlungsvertrag möglich, der die Grundlage für weitere Aktionen wie den Kauf einer Immobilie bildet. Alles steht im Einklang mit dem Gesetz über die Vermittlung beim Kauf von Immobilien. Der Käufer zahlt eine gesetzliche Vermittlungsprovision in Höhe von 3% (+ MwSt.) des vereinbarten Preises, und zwar nur im Falle des Kaufs der Immobilie. Sollte der Kauf nicht zustande kommen, ist der Vertrag für Sie nicht bindend und wird annulliert. Wenn Sie ernsthaft an der Immobilie interessiert sind, senden wir Ihnen den Vertrag auf Anfrage zu.
Wir werden Ihnen innerhalb von 24 Stunden antworten.
Wir bieten nur geprüfte Immobilien an.
Wir garantieren eine hohe Servicequalität.
Wir können Ihnen bei der Vermittlung von Unterkünften während der Besichtigungen helfen.
- Ich habe eine Immobilie aus dem Angebot ausgewählt
- Ich kontaktiere den Makler
- Ich unterschreibe einen Vertretungsvertrag - Details hier! (die Unterzeichnung des Vertrags ist gesetzlich vorgeschrieben)
- Ich richte eine OIB ein - Details hier (die Einrichtung ist gesetzlich vorgeschrieben)
- Besichtigungen vor Ort
- Unterzeichnung der Reservierung, des Kaufvertrags