ISTRIEN, KRINGA – Grundstück + Genehmigung
| Registrationsnummer | DN-38752 |
| Art des Angebots | Verkauf |
| Kategorie | Bauland |
| Bezirk | Istarska |
| Gemeindeteil | Tinjan |
| Preis | 145 000 € |
| Preis pro m2 | 147 €/m² |
| Gesamtfläche | 982 m² |
| Bebaute Fläche und Hof | 943 m² |
| Gesamt bebaut fläche | 943 m² |
| Entfernung vom meer | 10 000 m |
| Strom |
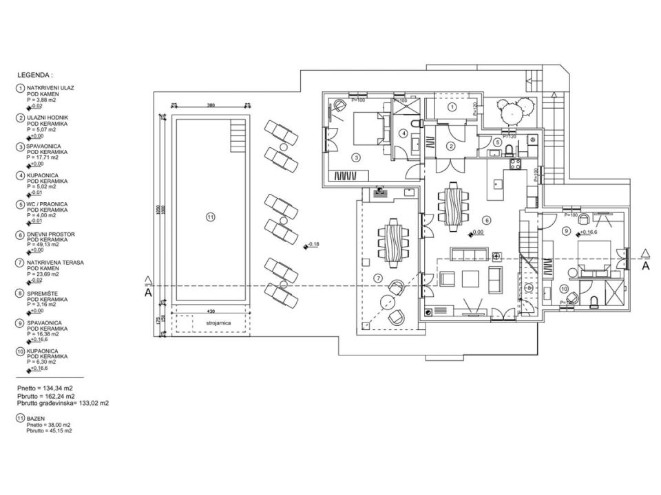
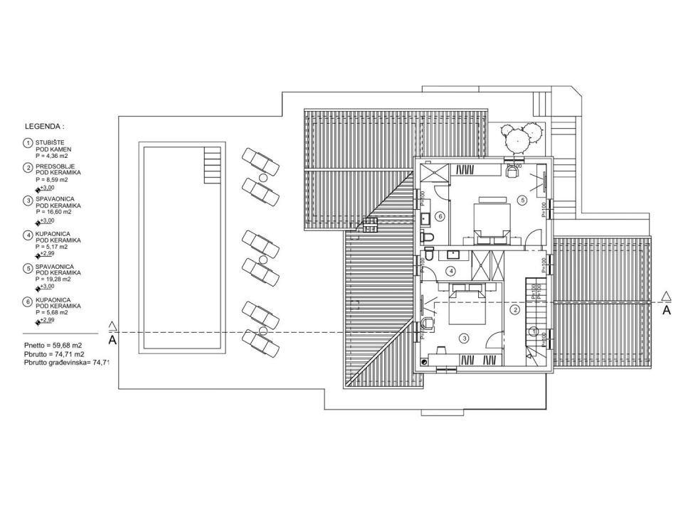
ISTRIEN, KRINGA (Umgebung) – Baugrundstück mit endgültiger Genehmigung für ein luxuriöses Familienhaus mit Swimmingpool In einem ruhigen, von Grün umgebenen istrischen Dorf bieten wir ein 982 m² großes Baugrundstück mit gültiger Baugenehmigung für den Bau einer luxuriösen rustikalen Villa an, die eine authentische mediterrane Atmosphäre mit modernem Komfort verbindet. Laut Projekt soll das künftige Gebäude über insgesamt 216,68 m² Nettowohnfläche, verteilt auf drei Etagen, sowie einen 38 m² großen Swimmingpool verfügen – ideal für das Familienleben oder als Investition in die touristische Vermietung. Der Grundriss des Hauses sieht folgendes vor: Keller (23 m²) – Technikraum/Abstellraum. Erdgeschoss (134 m²) – überdachter Eingang und Eingangshalle, Schlafzimmer mit eigenem Bad, Toilette/Waschküche, offenes Wohnzimmer mit Essbereich und Küche, zusätzliches Schlafzimmer mit Bad und überdachte Terrasse mit Außenküche. Erster Stock (59,68 m²) – zwei komfortable Schlafzimmer, beide mit eigenem Bad und Blick in die Natur. Bei der Planung des Projekts wurde besonderer Wert auf Energieeffizienz gelegt und die Lage des Grundstücks ermöglicht ein ruhiges Leben in der Nähe aller wichtigen Annehmlichkeiten – Meer, Geschäfte, Schulen und Verkehrsanbindungen. Der Zugang zum Grundstück ist gesichert und es befindet sich in Privatbesitz. Dieses Grundstück mit vollständiger Dokumentation und einem fertigen Projekt ermöglicht einen schnellen Baubeginn ohne zusätzliche Wartezeiten. Eine perfekte Gelegenheit für alle, die ihr Traumhaus bauen oder in eine Luxusimmobilie an einem besonderen Standort in Istrien investieren möchten. Für weitere Informationen und Projektdetails können Sie uns gerne kontaktieren.
Bei allen unseren Angeboten sind die Preise identisch mit dem Direktkauf bei der Agentur/dem Entwickler in Kroatien, da wir der offizielle Vertreter dieser Agenturen auf dem tschechischen, slowakischen, deutschen und österreichischen Markt sind. Dies gilt ohne zusätzliche Zuschläge für deutschsprachige Dienstleistungen.
Sehr geehrte Kunden, die Besichtigung von Immobilien, die Mitteilung der Lage und andere detaillierte Informationen sind nur mit einem unterzeichneten Vermittlungsvertrag möglich, der die Grundlage für weitere Aktionen wie den Kauf einer Immobilie bildet. Alles steht im Einklang mit dem Gesetz über die Vermittlung beim Kauf von Immobilien. Der Käufer zahlt eine gesetzliche Vermittlungsprovision in Höhe von 3% (+ MwSt.) des vereinbarten Preises, und zwar nur im Falle des Kaufs der Immobilie. Sollte der Kauf nicht zustande kommen, ist der Vertrag für Sie nicht bindend und wird annulliert. Wenn Sie ernsthaft an der Immobilie interessiert sind, senden wir Ihnen den Vertrag auf Anfrage zu.
Wir werden Ihnen innerhalb von 24 Stunden antworten.
Wir bieten nur geprüfte Immobilien an.
Wir garantieren eine hohe Servicequalität.
Wir können Ihnen bei der Vermittlung von Unterkünften während der Besichtigungen helfen.
- Ich habe eine Immobilie aus dem Angebot ausgewählt
- Ich kontaktiere den Makler
- Ich unterschreibe einen Vertretungsvertrag - Details hier! (die Unterzeichnung des Vertrags ist gesetzlich vorgeschrieben)
- Ich richte eine OIB ein - Details hier (die Einrichtung ist gesetzlich vorgeschrieben)
- Besichtigungen vor Ort
- Unterzeichnung der Reservierung, des Kaufvertrags