ISTRIEN, LABIN – Grundstück mit Baugenehmigung für ein Doppelhaus mit Swimmingpool
| Registrationsnummer | DN-38339 |
| Art des Angebots | Verkauf |
| Kategorie | Bauland |
| Bezirk | Istarska |
| Gemeindeteil | Labin |
| Preis | 124 500 € |
| Preis pro m2 | 127 €/m² |
| Gesamtfläche | 977 m² |
| Entfernung vom meer | 12 000 m |
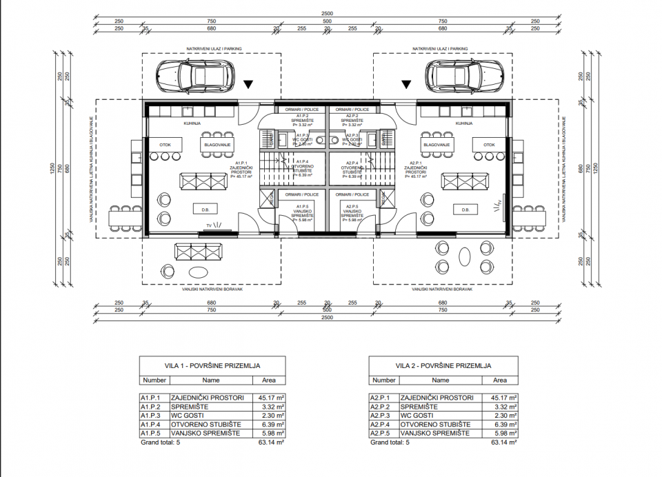
ISTRIEN, LABIN – Grundstück mit Baugenehmigung für ein Doppelhaus mit Swimmingpool Zum Verkauf steht ein 977 m² großes Baugrundstück mit Baugenehmigung für den Bau einer modernen Doppelhaushälfte mit Swimmingpool. Das Grundstück befindet sich in ruhiger Lage in der Nähe von Labin, umgeben von viel Grün und unberührter Natur und bietet Privatsphäre und ein entspanntes Ambiente. Das Projekt sieht eine Gesamthausfläche von 320 m² vor, wobei jede Wohneinheit über 140 m² Innenfläche und zusätzlich 20 m² Terrassen verfügt, die sich ideal zum Genießen der Natur eignen. Die Häuser sind in einem zeitgenössischen Architekturstil gestaltet, wobei der Schwerpunkt auf Funktionalität und Komfort liegt, während die Außenbereiche einen begrünten Innenhof und einen privaten Swimmingpool umfassen. Dieses Anwesen stellt eine hervorragende Gelegenheit dar, ein luxuriöses Familienhaus oder eine hochwertige Touristenanlage zu bauen. Für weitere Informationen und zur Vereinbarung einer Tour kontaktieren Sie uns bitte!
Bei allen unseren Angeboten sind die Preise identisch mit dem Direktkauf bei der Agentur/dem Entwickler in Kroatien, da wir der offizielle Vertreter dieser Agenturen auf dem tschechischen, slowakischen, deutschen und österreichischen Markt sind. Dies gilt ohne zusätzliche Zuschläge für deutschsprachige Dienstleistungen.
Sehr geehrte Kunden, die Besichtigung von Immobilien, die Mitteilung der Lage und andere detaillierte Informationen sind nur mit einem unterzeichneten Vermittlungsvertrag möglich, der die Grundlage für weitere Aktionen wie den Kauf einer Immobilie bildet. Alles steht im Einklang mit dem Gesetz über die Vermittlung beim Kauf von Immobilien. Der Käufer zahlt eine gesetzliche Vermittlungsprovision in Höhe von 3% (+ MwSt.) des vereinbarten Preises, und zwar nur im Falle des Kaufs der Immobilie. Sollte der Kauf nicht zustande kommen, ist der Vertrag für Sie nicht bindend und wird annulliert. Wenn Sie ernsthaft an der Immobilie interessiert sind, senden wir Ihnen den Vertrag auf Anfrage zu.
Wir werden Ihnen innerhalb von 24 Stunden antworten.
Wir bieten nur geprüfte Immobilien an.
Wir garantieren eine hohe Servicequalität.
Wir können Ihnen bei der Vermittlung von Unterkünften während der Besichtigungen helfen.
- Ich habe eine Immobilie aus dem Angebot ausgewählt
- Ich kontaktiere den Makler
- Ich unterschreibe einen Vertretungsvertrag - Details hier! (die Unterzeichnung des Vertrags ist gesetzlich vorgeschrieben)
- Ich richte eine OIB ein - Details hier (die Einrichtung ist gesetzlich vorgeschrieben)
- Besichtigungen vor Ort
- Unterzeichnung der Reservierung, des Kaufvertrags