ISTRIEN, LABIN - Haus mit Garage und Swimmingpool im Bau
| Registrationsnummer | DN-41583 |
| Art des Angebots | Verkauf |
| Kategorie | Häuser |
| Bezirk | Istarska |
| Gemeindeteil | Labin |
| Preis | 311 000 € |
| Gesamtfläche | 186 m² |
| Bebaute Fläche und Hof | 1 414 m² |
| Gesamt bebaut fläche | 1 414 m² |
| Entfernung vom meer | 10 000 m |
| Strom | |
| Energieintensität | X - Nicht ausgestellt |
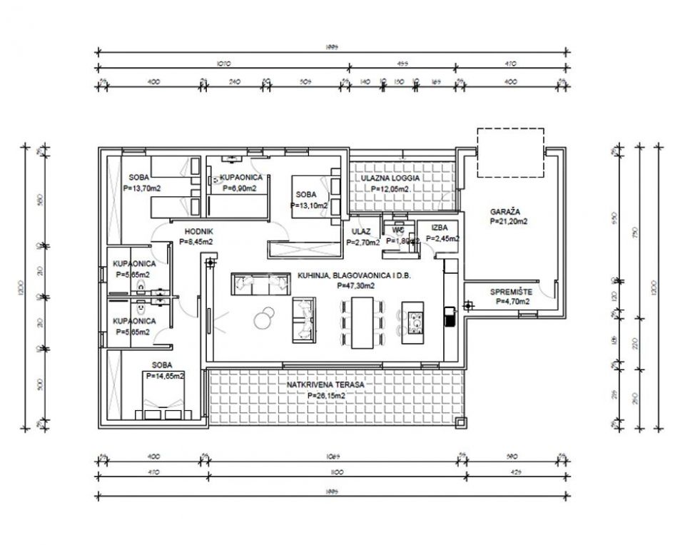
ISTRIEN, LABIN – Haus mit Garage und Swimmingpool im Bau An der Südostküste Istriens, wo grüne Hügel auf das Meer treffen, wo Natur und Kulturerbe sich vereinen, liegen zwei ähnlich große Städte mit unterschiedlichem, sich jedoch gegenseitig ergänzendem Charakter – Labin und Rabac. Das malerische Städtchen Labin erhebt sich auf einem 320 Meter hohen Hügel, nur vier Kilometer von den weißen Kieselstränden von Rabac entfernt. Verwoben mit einer reichen Geschichte und dem Bergbau, der diese Gegend prägte, ist Labin, das kurzzeitig zur unabhängigen Republik erklärt wurde, heute eine faszinierende Stadt der Widersprüche: Alt und Neu, Geschichte und Gegenwart, Tourismus und Kunst. Unweit von Labin steht ein im Bau befindliches Haus mit Garage und Swimmingpool zum Verkauf. Die Mikrolage bietet das authentische Erlebnis einer istrischen Kleinstadt, Intimität und Erholung von Hektik und Lärm und liegt gleichzeitig in der Nähe des Meeres und der städtischen Annehmlichkeiten von Labin. Das Haus fügt sich mit seiner Architektur in Form und Farbe in die Siedlung und Landschaft ein und schafft eine Synergie aus natürlicher Umgebung und modernem Design. Es handelt sich um eine einzelne Wohneinheit, deren Fläche sich über eine Etage mit funktionalem Grundriss erstreckt. Sie besteht aus einem offenen Raumkonzept, das Küche, Esszimmer und Wohnzimmer mit Zugang zu einer überdachten Terrasse vereint, drei Schlafzimmern mit eigenem Bad, einem Gäste-WC und einem Abstellraum. Der Grundriss wird durch eine Garage mit Abstellraum ergänzt. Der angegebene Preis bezieht sich auf die Rohbaukonstruktion des Wohngebäudes bis zur Rohbauphase mit eingebauten Außenschreinereiarbeiten. Der Preis beinhaltet nicht die Fertigstellungsarbeiten, die Gartengestaltung und den Bau eines Swimmingpools. Es besteht die Möglichkeit, die Immobilie in der Endphase unmöbliert mit eingebautem Swimmingpool und angelegtem Garten gegen Preisanpassung zu erwerben. Die hervorragende Lage und die räumliche Aufteilung des Innen- und Außenbereichs dieser Immobilie bieten die Möglichkeit für ein komfortables Familienleben oder eine Investition in ein touristisches Vermietungsgeschäft.
Bei allen unseren Angeboten sind die Preise identisch mit dem Direktkauf bei der Agentur/dem Entwickler in Kroatien, da wir der offizielle Vertreter dieser Agenturen auf dem tschechischen, slowakischen, deutschen und österreichischen Markt sind. Dies gilt ohne zusätzliche Zuschläge für deutschsprachige Dienstleistungen.
Sehr geehrte Kunden, die Besichtigung von Immobilien, die Mitteilung der Lage und andere detaillierte Informationen sind nur mit einem unterzeichneten Vermittlungsvertrag möglich, der die Grundlage für weitere Aktionen wie den Kauf einer Immobilie bildet. Alles steht im Einklang mit dem Gesetz über die Vermittlung beim Kauf von Immobilien. Der Käufer zahlt eine gesetzliche Vermittlungsprovision in Höhe von 3% (+ MwSt.) des vereinbarten Preises, und zwar nur im Falle des Kaufs der Immobilie. Sollte der Kauf nicht zustande kommen, ist der Vertrag für Sie nicht bindend und wird annulliert. Wenn Sie ernsthaft an der Immobilie interessiert sind, senden wir Ihnen den Vertrag auf Anfrage zu.
Wir werden Ihnen innerhalb von 24 Stunden antworten.
Wir bieten nur geprüfte Immobilien an.
Wir garantieren eine hohe Servicequalität.
Wir können Ihnen bei der Vermittlung von Unterkünften während der Besichtigungen helfen.
- Ich habe eine Immobilie aus dem Angebot ausgewählt
- Ich kontaktiere den Makler
- Ich unterschreibe einen Vertretungsvertrag - Details hier! (die Unterzeichnung des Vertrags ist gesetzlich vorgeschrieben)
- Ich richte eine OIB ein - Details hier (die Einrichtung ist gesetzlich vorgeschrieben)
- Besichtigungen vor Ort
- Unterzeichnung der Reservierung, des Kaufvertrags