ISTRIEN, MEDULIN - Fantastische Villa 300 Meter vom Meer entfernt
| Registrationsnummer | DN-13748 |
| Art des Angebots | Verkauf |
| Kategorie | Häuser |
| Bezirk | Istarska |
| Gemeindeteil | Medulin |
| Preis | 1 500 000 € |
| Gesamtfläche | 380 m² |
| Bebaute Fläche und Hof | 824 m² |
| Gesamt bebaut fläche | 824 m² |
| Entfernung vom meer | 300 m |
| Strom | |
| Abfall | |
| Klimaanlage | |
| Heizung | ano |
| Energieintensität | X - Nicht ausgestellt |
ISTRIA, MEDULIN - Große Villa 300 Meter vom Meer entfernt
Vrh oder Punta Istra, wie es im Volksmund genannt wird, gehört zu einer der touristischsten Städte der Halbinsel und zu einem der zwanzig bekanntesten Reiseziele an der Adria - Medulin. Einst ein kleines Fischerdorf, haben die reiche Kulturgeschichte, die günstige geografische Lage, der gut geschützte Hafen und das fruchtbare Hinterland zur wirtschaftlichen Entwicklung Medulins beigetragen. Zu Medulin gehören auch die kleineren Orte Banjole, Pješčana uvala (bekannt für seine Sandstrände), Pomer, Premantura, Vinkunar und Vintijan. Zu Medulin gehört auch die kleine Halbinsel Vižula, eine archäologische Stätte, die seit 1974 unter Denkmalschutz steht.
In einem Teil von Medulin gibt es eine schöne Villa zum Verkauf 300 Meter vom Meer entfernt.
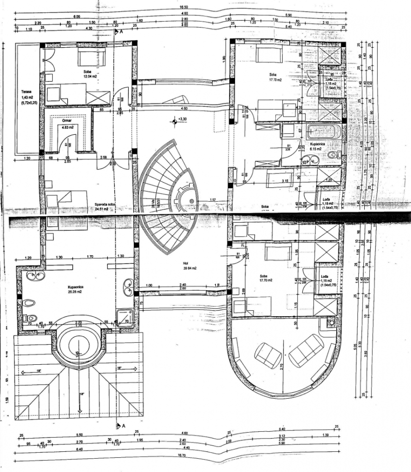
Die Villa ist 380 m2 groß und verteilt sich auf das Erdgeschoss und den ersten Stock.
Im Erdgeschoss gibt es ein Wohnzimmer, eine Küche mit Esszimmer, eine Toilette, ein Schlafzimmer mit eigenem Bad, ein Billardzimmer und eine überdachte Terrasse.
Im Obergeschoss befinden sich 3 Schlafzimmer, jedes mit eigenem Balkon, 2 Bäder, eine Galerie und eine Terrasse.
Die freistehende Villa ist luxuriös eingerichtet und ausgestattet und wird als solche verkauft.
Es ist mit elektrischer Zentralheizung, Klimaanlage (6 Einheiten) und Alarmanlage ausgestattet.
Zur Villa gehört auch eine Garage mit zwei Stellplätzen.
Im eingezäunten und angelegten Garten gibt es ein Schwimmbad mit Jacuzzi 28 m2, Liegewiese, Tischtennis und 3 Außenparkplätze.
Eine Top-Immobilie für eine touristische Investition oder ein luxuriöses Familienleben.
Bei allen unseren Angeboten sind die Preise identisch mit dem Direktkauf bei der Agentur/dem Entwickler in Kroatien, da wir der offizielle Vertreter dieser Agenturen auf dem tschechischen, slowakischen, deutschen und österreichischen Markt sind. Dies gilt ohne zusätzliche Zuschläge für deutschsprachige Dienstleistungen.
Sehr geehrte Kunden, die Besichtigung von Immobilien, die Mitteilung der Lage und andere detaillierte Informationen sind nur mit einem unterzeichneten Vermittlungsvertrag möglich, der die Grundlage für weitere Aktionen wie den Kauf einer Immobilie bildet. Alles steht im Einklang mit dem Gesetz über die Vermittlung beim Kauf von Immobilien. Der Käufer zahlt eine gesetzliche Vermittlungsprovision in Höhe von 3% (+ MwSt.) des vereinbarten Preises, und zwar nur im Falle des Kaufs der Immobilie. Sollte der Kauf nicht zustande kommen, ist der Vertrag für Sie nicht bindend und wird annulliert. Wenn Sie ernsthaft an der Immobilie interessiert sind, senden wir Ihnen den Vertrag auf Anfrage zu.
Wir werden Ihnen innerhalb von 24 Stunden antworten.
Wir bieten nur geprüfte Immobilien an.
Wir garantieren eine hohe Servicequalität.
Wir können Ihnen bei der Vermittlung von Unterkünften während der Besichtigungen helfen.
- Ich habe eine Immobilie aus dem Angebot ausgewählt
- Ich kontaktiere den Makler
- Ich unterschreibe einen Vertretungsvertrag - Details hier! (die Unterzeichnung des Vertrags ist gesetzlich vorgeschrieben)
- Ich richte eine OIB ein - Details hier (die Einrichtung ist gesetzlich vorgeschrieben)
- Besichtigungen vor Ort
- Unterzeichnung der Reservierung, des Kaufvertrags