ISTRIEN, MEDULIN – Luxuriöses Penthouse mit Blick auf die Bucht von Medulin
| Registrationsnummer | DN-42673 |
| Art des Angebots | Verkauf |
| Kategorie | Appartements |
| Bezirk | Istarska |
| Gemeindeteil | Medulin |
| Preis | 520 000 € |
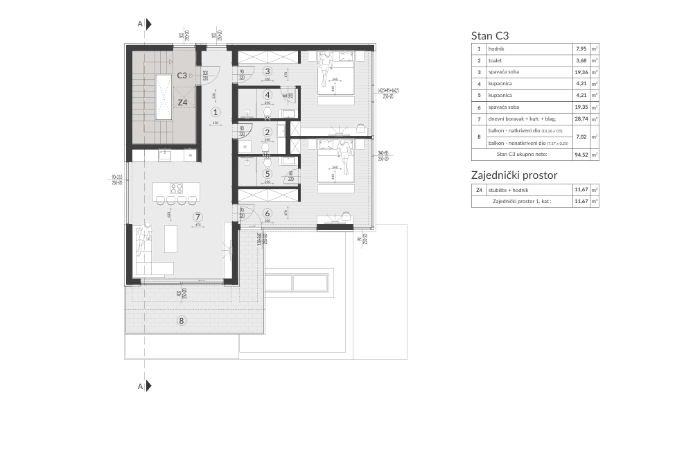
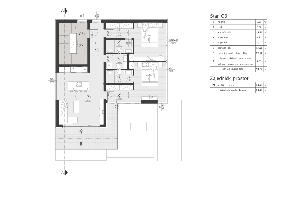
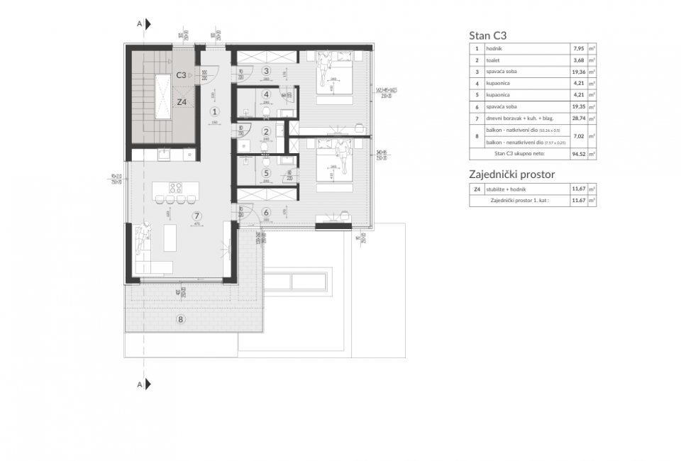
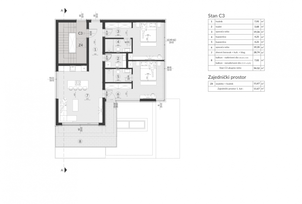
| Gesamtfläche | 94 m² |
| Wohnfläche (Wohnung) | 94 m² |
| Entfernung vom meer | 1 200 m |
| Strom | |
| Wasser | |
| Abfall | |
| Klimaanlage | |
| Heizung | ano |
ISTRIEN, MEDULIN – Luxuriöses Penthouse mit Blick auf die Bucht von Medulin Medulin – einst ein kleines Fischerdorf, hat sich dank seiner attraktiven Lage zu einem der bekanntesten Touristenziele Istriens entwickelt. Genießen Sie die Vielfalt der Fels-, Kies- und Sandstrände und lassen Sie sich vom Charme der Natur verzaubern. Der Ort eignet sich für einen ruhigen und romantischen Urlaub, aber auch Sportbegeisterte kommen auf ihre Kosten. Fußball, Reiten, Tennis, Segeln, Minigolf, Fliegen, Bowling, Beachvolleyball oder Tauchen – Medulin bietet für jeden Geschmack das Richtige. Die Lage des Gebäudes und der Wohnung selbst sorgt durch die Glaswände, die die gesamte Wohnung umgeben, für viel Tageslicht und bietet einen unvergesslichen Blick auf die Bucht von Medulin. Ein durchdachter Grundriss und eine durchdachte Raumaufteilung trennen den privaten vom geselligen Teil der Wohnung. Am Eingang der Wohnung befindet sich ein Flur, von dem aus man in das geräumige, offene Wohnzimmer gelangt, das mit der modernen Küche und dem Esszimmer verbunden ist. Von jedem Winkel des Raumes aus hat man einen Blick auf das Meer. Der private Teil der Wohnung beherbergt zwei Schlafzimmer mit eigenem Bad und ein Gäste-WC. Vom Wohnzimmer aus gelangt man auf eine großzügige, von einem Glaszaun umgebene Terrasse, von der zukünftige Eigentümer einen einzigartigen Panoramablick auf das Meer und die Bucht von Medulin genießen können. Im Innenhof des Gebäudes befinden sich zwei private Parkplätze. Die Wohnung wird mit hochwertigen Materialien renommierter internationaler Hersteller ausgestattet. Im Innenbereich kommt Travertinstein zum Einsatz, der mit seinen natürlichen, warmen Erdtönen den Räumen und Außenbereichen eine mediterrane und rustikale Atmosphäre verleiht. Das moderne Design der Wohnungen mit hohen Schüco-Fenstern und einem Glasbalkon sorgt für viel Licht. Es sind elektrische Jalousien aus Aluminium installiert. Die Klimaanlagen sind in die abgehängte Decke integriert, sodass nur dezente Lüftungsöffnungen sichtbar sind. Dies sorgt für ein ästhetisch klares Raumkonzept. Die Luft wird über mehrere Lüftungsöffnungen verteilt, was für eine angenehme Kühlung oder Heizung ohne Zugluft sorgt. Da das Hauptgerät in die Decke integriert ist, arbeitet es leiser als Wandgeräte. Der Kauf einer Immobilie in dieser Phase ermöglicht es zukünftigen Eigentümern, die Keramik auszuwählen und sie nach ihren Wünschen zu personalisieren. Diese besondere Immobilie in Medulin ist ein wahres Juwel und eine kluge Investition für ein komfortables Leben und Wohnen sowie für eine Rendite durch Tourismus.
Bei allen unseren Angeboten sind die Preise identisch mit dem Direktkauf bei der Agentur/dem Entwickler in Kroatien, da wir der offizielle Vertreter dieser Agenturen auf dem tschechischen, slowakischen, deutschen und österreichischen Markt sind. Dies gilt ohne zusätzliche Zuschläge für deutschsprachige Dienstleistungen.
Sehr geehrte Kunden, die Besichtigung von Immobilien, die Mitteilung der Lage und andere detaillierte Informationen sind nur mit einem unterzeichneten Vermittlungsvertrag möglich, der die Grundlage für weitere Aktionen wie den Kauf einer Immobilie bildet. Alles steht im Einklang mit dem Gesetz über die Vermittlung beim Kauf von Immobilien. Der Käufer zahlt eine gesetzliche Vermittlungsprovision in Höhe von 3% (+ MwSt.) des vereinbarten Preises, und zwar nur im Falle des Kaufs der Immobilie. Sollte der Kauf nicht zustande kommen, ist der Vertrag für Sie nicht bindend und wird annulliert. Wenn Sie ernsthaft an der Immobilie interessiert sind, senden wir Ihnen den Vertrag auf Anfrage zu.
Wir werden Ihnen innerhalb von 24 Stunden antworten.
Wir bieten nur geprüfte Immobilien an.
Wir garantieren eine hohe Servicequalität.
Wir können Ihnen bei der Vermittlung von Unterkünften während der Besichtigungen helfen.
- Ich habe eine Immobilie aus dem Angebot ausgewählt
- Ich kontaktiere den Makler
- Ich unterschreibe einen Vertretungsvertrag - Details hier! (die Unterzeichnung des Vertrags ist gesetzlich vorgeschrieben)
- Ich richte eine OIB ein - Details hier (die Einrichtung ist gesetzlich vorgeschrieben)
- Besichtigungen vor Ort
- Unterzeichnung der Reservierung, des Kaufvertrags