ISTRIEN, MEDULIN - Zweizimmerwohnung im Erdgeschoss - in der Nähe des Meeres
| Registrationsnummer | DN-30903 |
| Art des Angebots | Verkauf |
| Kategorie | Appartements |
| Bezirk | Istarska |
| Gemeindeteil | Medulin |
| Preis | 236 050 € |
| Gesamtfläche | 81 m² |
| Wohnfläche (Wohnung) | 81 m² |
| Entfernung vom meer | 1 000 m |
| Strom | |
| Wasser | |
| Abfall | |
| Klimaanlage | |
| Heizung | ano |
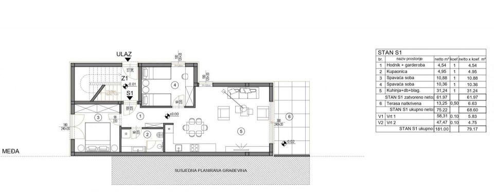
ISTRIEN, MEDULIN - Zweizimmerwohnung im Erdgeschoss - in der Nähe des Meeres Medulin - einst ein kleines Fischerdorf, hat sich dank all seiner Vorteile, nämlich dem milden mediterranen Klima, dem sauberen Meer und der gegliederten Küste, zu einem modernen Touristenzentrum entwickelt. Aufgrund seiner reichen kulturellen Vergangenheit, der atemberaubenden Küste und des breiten Angebots an Aktivitäten und Sehenswürdigkeiten hat es sich zu einem der berühmtesten Touristenziele an der Adria entwickelt. Medulin gilt als modernes Touristenzentrum und bietet einen dynamischen und inhaltsreichen Urlaub. Für diejenigen, die Spaß haben möchten, organisiert die Stadt eine Reihe kultureller Veranstaltungen in Form von Konzertsommern, Volksfesten, Angelabenden und Handwerksmessen. In unmittelbarer Nähe befinden sich das antike Pula, der Brijuni-Nationalpark, der Naturpark Kap Kamenjak und andere Schönheiten der istrischen Halbinsel wie die Stadt Premantura, der südlichste Punkt Istriens, der ein unvergessliches Erlebnis mit magischen Ausblicken, weißen Felsstränden und einer reichen Pflanzenwelt bietet Leben und kristallblaues Meer. In Medulin gibt es auch einen Sportflughafen, von dem aus Sie zu einer Panoramatour durch die gesamte Region Pula starten können. Medulin liegt nur 8 km vom Zentrum von Pula entfernt. Der Bau von zehn Wohngebäuden mit jeweils drei Wohnungen ist im Gange, darunter das Gebäude, in dem sich im Erdgeschoss eine Wohnung befindet, die aus einem Flur mit Garderobe, einem Badezimmer, zwei Schlafzimmern und einer Küche mit einem besteht Esszimmer und ein Wohnzimmer, von dem aus man auf eine überdachte Terrasse gelangt, Fläche 79,17 m2 und ein Parkplatz. Heizung und Bügeln sind über eine Klimaanlage möglich. Die Zimmerei wird aus Aluminium gefertigt. In der Nähe der Apartments gibt es alle Einrichtungen und das Meer ist nur 1 Kilometer entfernt. Die Fertigstellung des gesamten Komplexes ist für Mitte 2025 geplant. Diese Wohnung stellt eine großartige Gelegenheit für das Familienleben, einen luxuriösen Urlaub vom Stress des Stadtlebens im mediterranen Klima oder als finanzielle Investition zur Miete dar.
Bei allen unseren Angeboten sind die Preise identisch mit dem Direktkauf bei der Agentur/dem Entwickler in Kroatien, da wir der offizielle Vertreter dieser Agenturen auf dem tschechischen, slowakischen, deutschen und österreichischen Markt sind. Dies gilt ohne zusätzliche Zuschläge für deutschsprachige Dienstleistungen.
Sehr geehrte Kunden, die Besichtigung von Immobilien, die Mitteilung der Lage und andere detaillierte Informationen sind nur mit einem unterzeichneten Vermittlungsvertrag möglich, der die Grundlage für weitere Aktionen wie den Kauf einer Immobilie bildet. Alles steht im Einklang mit dem Gesetz über die Vermittlung beim Kauf von Immobilien. Der Käufer zahlt eine gesetzliche Vermittlungsprovision in Höhe von 3% (+ MwSt.) des vereinbarten Preises, und zwar nur im Falle des Kaufs der Immobilie. Sollte der Kauf nicht zustande kommen, ist der Vertrag für Sie nicht bindend und wird annulliert. Wenn Sie ernsthaft an der Immobilie interessiert sind, senden wir Ihnen den Vertrag auf Anfrage zu.
Wir werden Ihnen innerhalb von 24 Stunden antworten.
Wir bieten nur geprüfte Immobilien an.
Wir garantieren eine hohe Servicequalität.
Wir können Ihnen bei der Vermittlung von Unterkünften während der Besichtigungen helfen.
- Ich habe eine Immobilie aus dem Angebot ausgewählt
- Ich kontaktiere den Makler
- Ich unterschreibe einen Vertretungsvertrag - Details hier! (die Unterzeichnung des Vertrags ist gesetzlich vorgeschrieben)
- Ich richte eine OIB ein - Details hier (die Einrichtung ist gesetzlich vorgeschrieben)
- Besichtigungen vor Ort
- Unterzeichnung der Reservierung, des Kaufvertrags