ISTRIEN, MOMJAN – ELEGANTE STEINHÄUSER MIT PROJEKT
| Registrationsnummer | DN-42853 |
| Art des Angebots | Verkauf |
| Kategorie | Häuser |
| Bezirk | Istarska |
| Gemeindeteil | Buje |
| Preis | 300 000 € |
| Gesamtfläche | 306 m² |
| Bebaute Fläche und Hof | 861 m² |
| Gesamt bebaut fläche | 861 m² |
| Entfernung vom meer | 17 000 m |
| Strom |
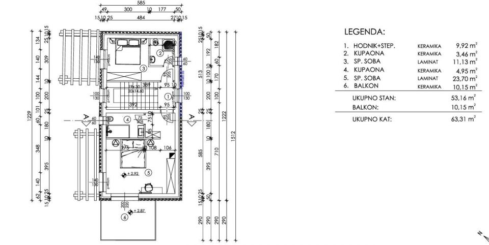
ISTRIEN, MOMJAN – ELEGANTE STEINHÄUSER MIT PROJEKTEN Momjan, gelegen in den sanften Hügeln Nordwest-Istriens, ist ein charmantes Städtchen, bekannt für seine Weinberge, Olivenhaine, historischen Mauern und erstklassigen Weingüter. Die Kombination aus authentischer istrischer Tradition, unberührter Natur und modernem Leben macht es ideal für ein ruhiges Leben und touristische Investitionen. Die Nähe zur Adria, Poreč, Umag und der slowenischen Grenze erhöht seine Attraktivität zusätzlich. Im schönen Momjan stehen zwei attraktive Steinhäuser mit Vorprojekt zum Verkauf. Die Baugenehmigung für die Gebäude wird in Kürze erwartet, während das Vorprojekt bereits unter Auflagen genehmigt wurde. Das erste Haus gemäß Projekt hat eine Wohnfläche von 200,21 m², verteilt auf drei Etagen – Keller, Erdgeschoss und Obergeschoss – und verfügt über einen privaten Swimmingpool für erholsamen Genuss. Das zweite, etwas kleinere Haus hat eine Wohnfläche von 106,76 m², ebenfalls drei Etagen, und verfügt über einen eigenen Swimmingpool. Die Gesamtfläche der Grundstücke beträgt 861 m² bzw. 517 m² und 344 m². Der Käufer kann zwischen einer oder beiden Immobilien wählen. Das Grundstück verfügt über einen Stromanschluss, während sich Wasser- und Telefonanschluss direkt neben dem Grundstück befinden, was eine einfache und schnelle Anbindung an alle notwendigen Infrastruktureinrichtungen ermöglicht. Die Zufahrt zu den Grundstücken erfolgt über eine asphaltierte Straße, was die Zweckmäßigkeit und Benutzerfreundlichkeit zusätzlich erhöht. Diese Lage bietet eine perfekte Harmonie zwischen unberührter Natur, Ruhe und kultiviertem istrischem Lebensstil mit einem wunderschönen Blick über die Hügel und Weinberge bis hin zum blauen Meer in der Ferne. Es ist eine ideale Gelegenheit für alle, die luxuriöse Steinvillen mit einzigartiger Aussicht suchen, sei es für den Eigenheimgebrauch oder zur touristischen Vermietung. Momjan bietet mit seiner Authentizität und natürlichen Schönheit das Wertvollste: Ruhe, Eleganz und einen Hauch von echtem, unverfälschtem Istrien.
Bei allen unseren Angeboten sind die Preise identisch mit dem Direktkauf bei der Agentur/dem Entwickler in Kroatien, da wir der offizielle Vertreter dieser Agenturen auf dem tschechischen, slowakischen, deutschen und österreichischen Markt sind. Dies gilt ohne zusätzliche Zuschläge für deutschsprachige Dienstleistungen.
Sehr geehrte Kunden, die Besichtigung von Immobilien, die Mitteilung der Lage und andere detaillierte Informationen sind nur mit einem unterzeichneten Vermittlungsvertrag möglich, der die Grundlage für weitere Aktionen wie den Kauf einer Immobilie bildet. Alles steht im Einklang mit dem Gesetz über die Vermittlung beim Kauf von Immobilien. Der Käufer zahlt eine gesetzliche Vermittlungsprovision in Höhe von 3% (+ MwSt.) des vereinbarten Preises, und zwar nur im Falle des Kaufs der Immobilie. Sollte der Kauf nicht zustande kommen, ist der Vertrag für Sie nicht bindend und wird annulliert. Wenn Sie ernsthaft an der Immobilie interessiert sind, senden wir Ihnen den Vertrag auf Anfrage zu.
Wir werden Ihnen innerhalb von 24 Stunden antworten.
Wir bieten nur geprüfte Immobilien an.
Wir garantieren eine hohe Servicequalität.
Wir können Ihnen bei der Vermittlung von Unterkünften während der Besichtigungen helfen.
- Ich habe eine Immobilie aus dem Angebot ausgewählt
- Ich kontaktiere den Makler
- Ich unterschreibe einen Vertretungsvertrag - Details hier! (die Unterzeichnung des Vertrags ist gesetzlich vorgeschrieben)
- Ich richte eine OIB ein - Details hier (die Einrichtung ist gesetzlich vorgeschrieben)
- Besichtigungen vor Ort
- Unterzeichnung der Reservierung, des Kaufvertrags