ISTRIEN, MOMJAN – HISTORISCHES STEINHAUS MIT RENOVIERUNGSPROJEKT
| Registrationsnummer | DN-42856 |
| Art des Angebots | Verkauf |
| Kategorie | Häuser |
| Bezirk | Istarska |
| Gemeindeteil | Buje |
| Preis | 170 000 € |
| Gesamtfläche | 200 m² |
| Bebaute Fläche und Hof | 517 m² |
| Gesamt bebaut fläche | 517 m² |
| Entfernung vom meer | 17 000 m |
| Strom |
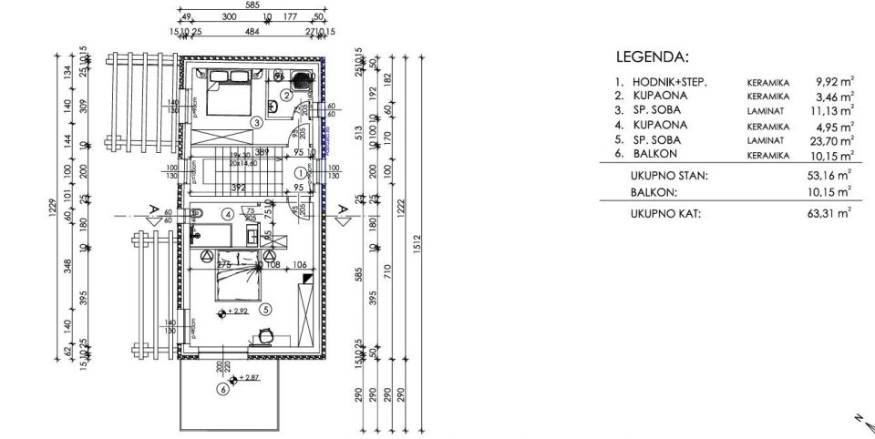
ISTRIEN, MOMJAN – HISTORISCHES STEINHAUS MIT RENOVIERUNGSPROJEKT Momjan, gelegen in den sanften Hügeln Nordwest-Istriens, ist ein malerisches und charmantes Städtchen, bekannt für seine Weinberge, Olivenhaine, historischen Mauern und erstklassigen Weingüter. Die perfekte Mischung aus authentischer istrischer Tradition, unberührter Natur und modernem Lebensstil macht es zu einem idealen Ort für ein ruhiges Leben und gleichzeitig zu einem attraktiven Ziel für touristische Investitionen. Die Nähe zur Adria, Poreč, Umag und der Grenze zu Slowenien unterstreicht seine besondere Attraktivität. Ein attraktives Steinhaus mit Vorprojekt steht im schönen Momjan zum Verkauf. Die Baugenehmigung für das Grundstück wird in Kürze erwartet, während das Vorprojekt bereits unter Auflagen genehmigt wurde. Laut Projekt erstreckt sich das Haus über eine Fläche von 200,21 m², verteilt auf drei Etagen – Keller, Erdgeschoss und Obergeschoss – und verfügt über einen privaten Swimmingpool für erholsamen Genuss. Die Gartenfläche beträgt 517 m². Die gesamte notwendige Infrastruktur – Wasserversorgung und Telefonnetz – befindet sich direkt neben dem Grundstück, während der Stromanschluss bereits vorhanden ist. Diese Lage ermöglicht einen einfachen und schnellen Anschluss an alle Versorgungssysteme. Die Zufahrt erfolgt über eine asphaltierte Straße, was die Zweckmäßigkeit und Benutzerfreundlichkeit zusätzlich erhöht. Es besteht die Möglichkeit, ein weiteres Steinhaus – ein antikes Haus direkt nebenan – zu erwerben, dessen Projekt ebenfalls abgeschlossen ist. Laut Projekt hat dieses zusätzliche Haus eine Wohnfläche von 106,76 m², verteilt sich auf drei Etagen und verfügt über einen eigenen Pool. Die Gartenfläche beträgt 344 m². Diese Lage bietet eine perfekte Harmonie zwischen unberührter Natur, Ruhe und authentischem istrischem Lebensstil mit einem wunderschönen Blick über die Hügel und Weinberge bis hin zum blauen Meer in der Ferne. Es ist eine hervorragende Gelegenheit für alle, die luxuriöse Steinvillen mit einzigartiger Aussicht suchen, sei es als Eigenheim oder als Investition in eine touristische Vermietung. Momjan bietet mit seiner ursprünglichen Schönheit und dem authentischen istrischen Geist das Wertvollste: Ruhe, Eleganz und eine echte mediterrane Atmosphäre. Liebe
Bei allen unseren Angeboten sind die Preise identisch mit dem Direktkauf bei der Agentur/dem Entwickler in Kroatien, da wir der offizielle Vertreter dieser Agenturen auf dem tschechischen, slowakischen, deutschen und österreichischen Markt sind. Dies gilt ohne zusätzliche Zuschläge für deutschsprachige Dienstleistungen.
Sehr geehrte Kunden, die Besichtigung von Immobilien, die Mitteilung der Lage und andere detaillierte Informationen sind nur mit einem unterzeichneten Vermittlungsvertrag möglich, der die Grundlage für weitere Aktionen wie den Kauf einer Immobilie bildet. Alles steht im Einklang mit dem Gesetz über die Vermittlung beim Kauf von Immobilien. Der Käufer zahlt eine gesetzliche Vermittlungsprovision in Höhe von 3% (+ MwSt.) des vereinbarten Preises, und zwar nur im Falle des Kaufs der Immobilie. Sollte der Kauf nicht zustande kommen, ist der Vertrag für Sie nicht bindend und wird annulliert. Wenn Sie ernsthaft an der Immobilie interessiert sind, senden wir Ihnen den Vertrag auf Anfrage zu.
Wir werden Ihnen innerhalb von 24 Stunden antworten.
Wir bieten nur geprüfte Immobilien an.
Wir garantieren eine hohe Servicequalität.
Wir können Ihnen bei der Vermittlung von Unterkünften während der Besichtigungen helfen.
- Ich habe eine Immobilie aus dem Angebot ausgewählt
- Ich kontaktiere den Makler
- Ich unterschreibe einen Vertretungsvertrag - Details hier! (die Unterzeichnung des Vertrags ist gesetzlich vorgeschrieben)
- Ich richte eine OIB ein - Details hier (die Einrichtung ist gesetzlich vorgeschrieben)
- Besichtigungen vor Ort
- Unterzeichnung der Reservierung, des Kaufvertrags