ISTRIEN, POREČ – Zweistöckige 3-Zimmer-Wohnung mit Garten in begehrter Lage! Eine Wohnung, die wie ein Haus atmet – separater Eingang!
| Registrationsnummer | DN-41560 |
| Art des Angebots | Verkauf |
| Kategorie | Appartements |
| Bezirk | Istarska |
| Gemeindeteil | Poreč |
| Preis | 535 000 € |
| Gesamtfläche | 125 m² |
| Wohnfläche (Wohnung) | 125 m² |
| Strom | |
| Wasser | |
| Klimaanlage | |
| Heizung | ano |
| Energieintensität | X - Nicht ausgestellt |
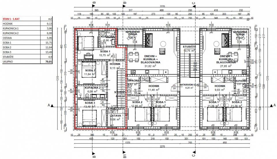
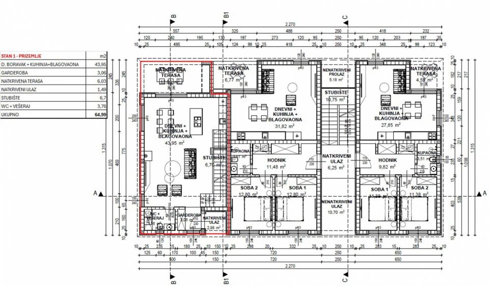
ISTRIEN, POREČ – Zweistöckige Wohnung mit Garten in gefragter Lage! Eine Wohnung, die atmet wie ein Haus – separater Eingang! Im Angebot von DUX Immobilien präsentieren wir eine Wohnung in einem neuen Projekt, die dank ihres eigenen Eingangs und Konzepts wie ein Haus atmet. Das Projekt befindet sich in großartiger Lage in der Stadt Poreč in der Nähe von Schulen, Geschäften, Stränden und allen anderen Annehmlichkeiten. Das Projekt befindet sich in einer ruhigen Straße, umgeben von Familienhäusern in unmittelbarer Nähe der Grünfläche der Stadt Poreč. Die Wohnung bietet 125 m2 Wohnfläche und einen 200 m2 großen Garten. Zur Wohnung gehören außerdem zwei Parkplätze und ein 5 m2 großer Abstellraum. Baubeginn 9/2025, voraussichtliches Bauende 12/2026. TECHNISCHE MERKMALE: 1. Fußbodenheizung mit Wärmepumpe in der gesamten Wohnung 2. Elektrische Rollläden mit Moskitonetzen 3. 3 Klimaanlagen 4. Vorbereitung für ein Ladegerät für Elektroautos Die Wohnung besteht aus einem überdachten Eingang, einem Wohnzimmer mit Küche und Esszimmer, einem Kleiderschrank und einer Toilette mit Waschküche. Die Treppe führt in den ersten Stock, wo sich drei Schlafzimmer und zwei Badezimmer befinden. Der Verkäufer ist eine juristische Person, daher ist der Käufer von der Zahlung der Grundsteuer befreit.
Bei allen unseren Angeboten sind die Preise identisch mit dem Direktkauf bei der Agentur/dem Entwickler in Kroatien, da wir der offizielle Vertreter dieser Agenturen auf dem tschechischen, slowakischen, deutschen und österreichischen Markt sind. Dies gilt ohne zusätzliche Zuschläge für deutschsprachige Dienstleistungen.
Sehr geehrte Kunden, die Besichtigung von Immobilien, die Mitteilung der Lage und andere detaillierte Informationen sind nur mit einem unterzeichneten Vermittlungsvertrag möglich, der die Grundlage für weitere Aktionen wie den Kauf einer Immobilie bildet. Alles steht im Einklang mit dem Gesetz über die Vermittlung beim Kauf von Immobilien. Der Käufer zahlt eine gesetzliche Vermittlungsprovision in Höhe von 3% (+ MwSt.) des vereinbarten Preises, und zwar nur im Falle des Kaufs der Immobilie. Sollte der Kauf nicht zustande kommen, ist der Vertrag für Sie nicht bindend und wird annulliert. Wenn Sie ernsthaft an der Immobilie interessiert sind, senden wir Ihnen den Vertrag auf Anfrage zu.
Wir werden Ihnen innerhalb von 24 Stunden antworten.
Wir bieten nur geprüfte Immobilien an.
Wir garantieren eine hohe Servicequalität.
Wir können Ihnen bei der Vermittlung von Unterkünften während der Besichtigungen helfen.
- Ich habe eine Immobilie aus dem Angebot ausgewählt
- Ich kontaktiere den Makler
- Ich unterschreibe einen Vertretungsvertrag - Details hier! (die Unterzeichnung des Vertrags ist gesetzlich vorgeschrieben)
- Ich richte eine OIB ein - Details hier (die Einrichtung ist gesetzlich vorgeschrieben)
- Besichtigungen vor Ort
- Unterzeichnung der Reservierung, des Kaufvertrags