ISTRIEN, RABAC - Grundstück mit Baugenehmigung, 300 m vom Meer entfernt
| Registrationsnummer | DN-23128 |
| Art des Angebots | Verkauf |
| Kategorie | Bauland |
| Bezirk | Istarska |
| Gemeindeteil | Labin |
| Preis | 300 000 € |
| Preis pro m2 | 315 €/m² |
| Gesamtfläche | 952 m² |
| Entfernung vom meer | 300 m |
| Strom |
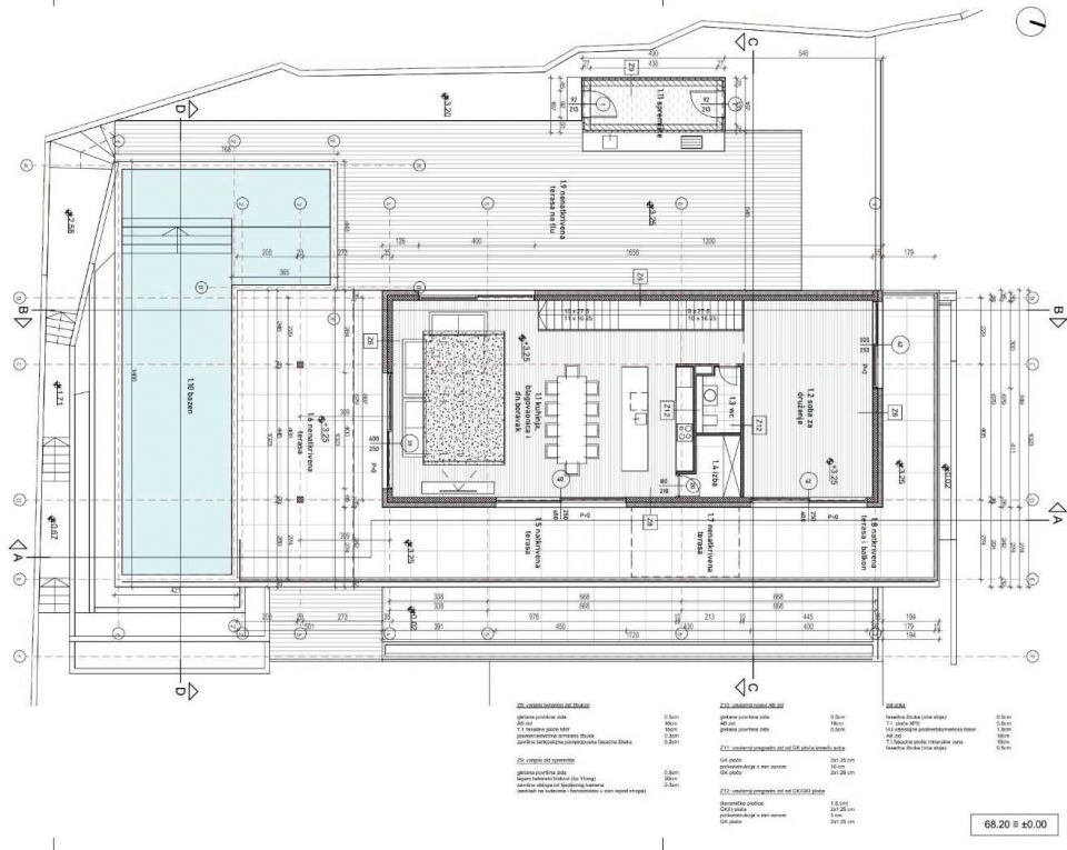
ISTRIEN, RABAC - Grundstück mit Baugenehmigung, 300 m vom Meer entfernt An der südöstlichen Küste Istriens, wo grüne Hügel auf das Meer treffen, wo Natur und Erbe zusammenkommen, gibt es zwei Städte ähnlicher Größe, aber mit unterschiedlichem, sich aber gegenseitig ergänzendem Charakter – Labin und Rabac, nur fünf Kilometer voneinander entfernt. Rabac wird wegen seiner weißen Kiesstrände, der üppigen mediterranen Vegetation und dem kristallklaren Meer auch die Perle der Kvarner-Bucht genannt. Einst ein kleines Fischerdorf, ist Rabac heute ein attraktives Touristenziel, das in einem Netz farbenfroher Straßen eine Fülle kultureller Veranstaltungen verbirgt. Die grüne Umgebung von Rabac und das malerische Hinterland laden das ganze Jahr über zu Abenteuern, Forschung und Erholung ein. Unweit von Rabac und Labin steht in einer kleinen Siedlung am Meer ein Grundstück mit Baugenehmigung zum Verkauf, 300 m vom Meer entfernt. Es liegt im mediterranen Grün in einer ruhigen Siedlung in Strandnähe, auf einem Hügel, von dem aus sich der Blick auf das endlose Meer, die Inseln und die Umgebung öffnet. Es hat eine regelmäßige Form, das Gelände ist leicht abschüssig, der Zugang erfolgt über eine gepflegte Schotterstraße und die Wasser- und Stromanschlüsse befinden sich auf dem Grundstück. Das Grundstück verfügt über eine gültige Baugenehmigung für den Bau einer einwandfreien Villa mit Swimmingpool. Das Hauptprojekt sieht den Bau einer attraktiven Villa vor, die sich über das Erdgeschoss und die erste Etage erstreckt und aus fünf Schlafzimmern mit eigenen Bädern, einem Wohnzimmer, einem Esszimmer und einer offenen Küche sowie einem Wellnessbereich mit Bad besteht , ein Raum für geselliges Beisammensein, eine Gästetoilette, ein Raum für Geräte, Speisekammern und Lagerräume. Aufgrund seiner Mikrolage, Konfiguration, ordnungsgemäßen Eigentümerschaft und Dokumentation bietet dieses Grundstück mit bezauberndem Blick auf das Meer eine außergewöhnliche Gelegenheit für den Bau eines Einfamilienhauses oder Ferienhauses.
Bei allen unseren Angeboten sind die Preise identisch mit dem Direktkauf bei der Agentur/dem Entwickler in Kroatien, da wir der offizielle Vertreter dieser Agenturen auf dem tschechischen, slowakischen, deutschen und österreichischen Markt sind. Dies gilt ohne zusätzliche Zuschläge für deutschsprachige Dienstleistungen.
Sehr geehrte Kunden, die Besichtigung von Immobilien, die Mitteilung der Lage und andere detaillierte Informationen sind nur mit einem unterzeichneten Vermittlungsvertrag möglich, der die Grundlage für weitere Aktionen wie den Kauf einer Immobilie bildet. Alles steht im Einklang mit dem Gesetz über die Vermittlung beim Kauf von Immobilien. Der Käufer zahlt eine gesetzliche Vermittlungsprovision in Höhe von 3% (+ MwSt.) des vereinbarten Preises, und zwar nur im Falle des Kaufs der Immobilie. Sollte der Kauf nicht zustande kommen, ist der Vertrag für Sie nicht bindend und wird annulliert. Wenn Sie ernsthaft an der Immobilie interessiert sind, senden wir Ihnen den Vertrag auf Anfrage zu.
Wir werden Ihnen innerhalb von 24 Stunden antworten.
Wir bieten nur geprüfte Immobilien an.
Wir garantieren eine hohe Servicequalität.
Wir können Ihnen bei der Vermittlung von Unterkünften während der Besichtigungen helfen.
- Ich habe eine Immobilie aus dem Angebot ausgewählt
- Ich kontaktiere den Makler
- Ich unterschreibe einen Vertretungsvertrag - Details hier! (die Unterzeichnung des Vertrags ist gesetzlich vorgeschrieben)
- Ich richte eine OIB ein - Details hier (die Einrichtung ist gesetzlich vorgeschrieben)
- Besichtigungen vor Ort
- Unterzeichnung der Reservierung, des Kaufvertrags