ISTRIEN, ROVINJ - Zwei Wohnungen mit großem Garten und Garage 600 m vom Meer entfernt
| Registrationsnummer | DN-13396 |
| Art des Angebots | Verkauf |
| Kategorie | Appartements |
| Bezirk | Istarska |
| Gemeindeteil | Rovinj |
| Preis | 750 000 € |
| Gesamtfläche | 167 m² |
| Wohnfläche (Wohnung) | 167 m² |
| Entfernung vom meer | 600 m |
| Strom | |
| Abfall | |
| Klimaanlage | |
| Heizung | ano |
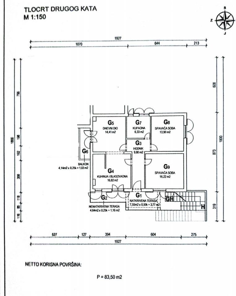
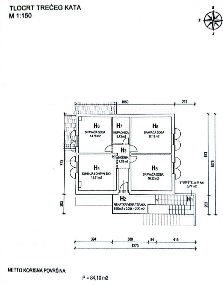
ISTRIEN, ROVINJ - Zwei Apartments mit großem Garten und einer Garage 600 m vom Meer entfernt Rovinj ist eine romantische istrische Stadt, ein Ziel für alle, die sich nach der sentimentalen Atmosphäre einer unwiderruflich vergangenen Zeit sehnen. Er begann sein romantisches Leben auf einer Insel, deren beengte Platzverhältnisse den Bau kompakter Häuser, enger Gassen und kleiner Plätze bedingten, die vom modernen Urbanismus noch unberührt sind. Aufgewachsen in seiner reichen Fischertradition, ist Rovinj für sein einzigartiges Batana-Boot, Bitinada-Lieder, aber auch für Spacio, eine lokale Version einer Taverne oder eines Weinkellers, in dem die Einwohner von Rovinj einst Wein aufbewahrten, probierten und weiterverkauften, bekannt geworden. Heute gibt es in Rovinj und Umgebung die besten istrischen Restaurants und viele interessante Sehenswürdigkeiten. Die Entwicklung von Rovinj ist sicherlich auf die vielen schönen Strände und die Nähe zum Meer zurückzuführen. 600 Meter vom schönen Meer entfernt befinden sich zwei Apartments, eines im zweiten Stock und das andere im dritten. Die Fläche der Wohnung im zweiten Stock beträgt 83,50 m2 und besteht aus einer Eingangshalle, einer Küche mit Essbereich, einem Wohnzimmer, zwei Schlafzimmern und einer Toilette. Ich habe auch zwei Terrassen. Im dritten Stock beträgt die Wohnfläche der Wohnung 84,10 m2 und besteht aus einer Eingangshalle, einer Küche mit Essbereich, einem Wohnzimmer, zwei Schlafzimmern und einer Toilette. Es gibt auch eine Terrasse mit Meerblick. Die Wohnungen haben eine Garage von 19,40 m2 im Erdgeschoss und einen schönen Garten von ca. 110 m2. Diese beiden Wohnungen werden ausschließlich zusammen verkauft. Das Gebäude verfügt über insgesamt 8 Wohnungen. Aufgrund der Nähe zum Meer und anderen lebensnotwendigen Einrichtungen bietet diese Immobilie eine ideale Gelegenheit für diejenigen, die vermieten möchten, aber auch für das Familienleben.
Bei allen unseren Angeboten sind die Preise identisch mit dem Direktkauf bei der Agentur/dem Entwickler in Kroatien, da wir der offizielle Vertreter dieser Agenturen auf dem tschechischen, slowakischen, deutschen und österreichischen Markt sind. Dies gilt ohne zusätzliche Zuschläge für deutschsprachige Dienstleistungen.
Sehr geehrte Kunden, die Besichtigung von Immobilien, die Mitteilung der Lage und andere detaillierte Informationen sind nur mit einem unterzeichneten Vermittlungsvertrag möglich, der die Grundlage für weitere Aktionen wie den Kauf einer Immobilie bildet. Alles steht im Einklang mit dem Gesetz über die Vermittlung beim Kauf von Immobilien. Der Käufer zahlt eine gesetzliche Vermittlungsprovision in Höhe von 3% (+ MwSt.) des vereinbarten Preises, und zwar nur im Falle des Kaufs der Immobilie. Sollte der Kauf nicht zustande kommen, ist der Vertrag für Sie nicht bindend und wird annulliert. Wenn Sie ernsthaft an der Immobilie interessiert sind, senden wir Ihnen den Vertrag auf Anfrage zu.
Wir werden Ihnen innerhalb von 24 Stunden antworten.
Wir bieten nur geprüfte Immobilien an.
Wir garantieren eine hohe Servicequalität.
Wir können Ihnen bei der Vermittlung von Unterkünften während der Besichtigungen helfen.
- Ich habe eine Immobilie aus dem Angebot ausgewählt
- Ich kontaktiere den Makler
- Ich unterschreibe einen Vertretungsvertrag - Details hier! (die Unterzeichnung des Vertrags ist gesetzlich vorgeschrieben)
- Ich richte eine OIB ein - Details hier (die Einrichtung ist gesetzlich vorgeschrieben)
- Besichtigungen vor Ort
- Unterzeichnung der Reservierung, des Kaufvertrags