ISTRIEN, ROVINJ - Zweistöckiges Penthouse mit Dachterrasse und Blick auf das Meer
| Registrationsnummer | DN-34149 |
| Art des Angebots | Verkauf |
| Kategorie | Appartements |
| Bezirk | Istarska |
| Gemeindeteil | Rovinj |
| Preis | 830 000 € |
| Gesamtfläche | 153 m² |
| Wohnfläche (Wohnung) | 153 m² |
| Entfernung vom meer | 800 m |
| Strom | |
| Abfall | |
| Klimaanlage |
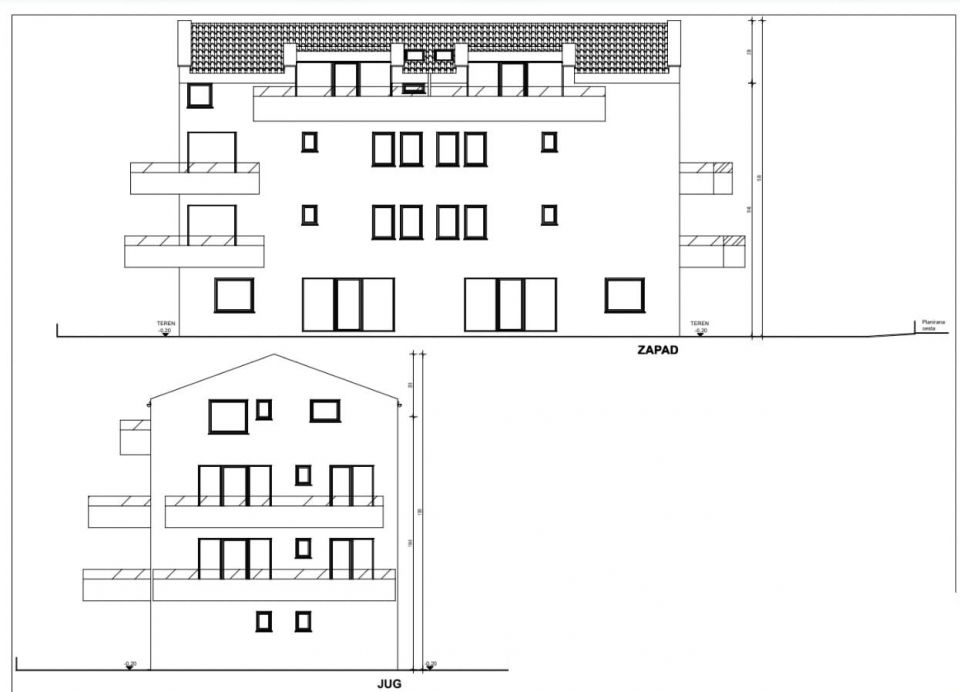
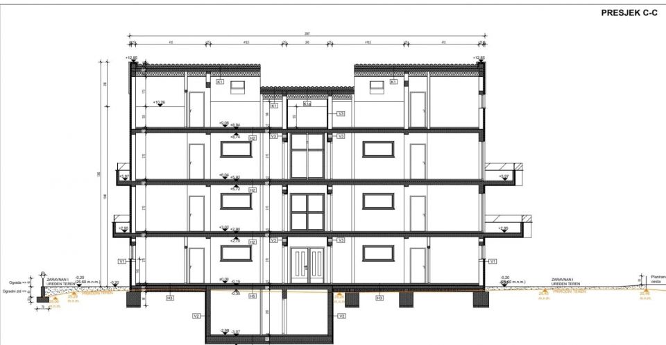
ISTRIEN, ROVINJ - Zweistöckiges Penthouse mit Dachterrasse und Blick auf das Meer Heute ist Rovinj eines der am weitesten entwickelten Reiseziele in Kroatien. Sie gilt auch als eine der malerischsten und romantischsten Städte im Mittelmeerraum und lockt seit Jahrzehnten zahlreiche Touristen an, von denen die meisten Jahr für Jahr wiederkommen. Charakteristisch für diese historische Stadt sind das angenehme mediterrane Klima, sorgfältig gestaltete Grünanlagen, die Sauberkeit und Ordnung der Straßen, die Freundlichkeit der Bevölkerung und zahlreiche Veranstaltungen. Nur wenige Gehminuten vom schönsten Strand Rovinjs entfernt wurde mit dem Bau eines kleineren Wohngebäudes begonnen. In diesem Gebäude steht die zweistöckige Wohnung F zum Verkauf, teilweise im zweiten Stock und teilweise im Dachgeschoss. Die Wohnung hat eine Nettofläche von 153,62 m2. Auf der unteren Etage befindet sich ein großzügiger Open-Space-Bereich, der Küche, Esszimmer und Wohnzimmer vereint. Im Erdgeschoss befinden sich zwei Schlafzimmer, eines davon mit eigenem Badezimmer, während sich das zusätzliche Badezimmer im Flur befindet. Vom Wohnzimmer und von einem Schlafzimmer aus gelangen wir auf einen großzügigen Balkon von 14,24 m2, von dem aus wir einen wunderschönen Blick auf das Meer genießen können. Über die Innentreppe gelangen wir in die obere Etage, wo sich ein großer Raum für Unterhaltung und geselliges Beisammensein (Spielzimmer) befindet. Von diesem Raum aus haben Sie Zugang zur Dachterrasse von 18 m2, die nicht oft zu sehen ist und diese Immobilie noch einzigartiger macht. Im Erdgeschoss gibt es ein weiteres Schlafzimmer, ein Badezimmer und ein weiteres Zimmer mit zusätzlicher Küche, der zukünftige Eigentümer kann dieses Zimmer jedoch in ein zusätzliches Schlafzimmer, einen Fitnessraum oder ähnliches umwandeln. Die Wohnung verfügt über zwei private Parkplätze und einen Raum im Keller des Gebäudes, der in eine Waschküche umgewandelt werden kann. Die Bauarbeiten haben vor kurzem begonnen, die Fertigstellung wird für Anfang 2026 erwartet. Die Wohnung wird schlüsselfertig, ohne Möbel, verkauft. Alle lebensnotwendigen Annehmlichkeiten sind fußläufig erreichbar, daher ist dies eine ideale Wohnung für das Familienleben.
Bei allen unseren Angeboten sind die Preise identisch mit dem Direktkauf bei der Agentur/dem Entwickler in Kroatien, da wir der offizielle Vertreter dieser Agenturen auf dem tschechischen, slowakischen, deutschen und österreichischen Markt sind. Dies gilt ohne zusätzliche Zuschläge für deutschsprachige Dienstleistungen.
Sehr geehrte Kunden, die Besichtigung von Immobilien, die Mitteilung der Lage und andere detaillierte Informationen sind nur mit einem unterzeichneten Vermittlungsvertrag möglich, der die Grundlage für weitere Aktionen wie den Kauf einer Immobilie bildet. Alles steht im Einklang mit dem Gesetz über die Vermittlung beim Kauf von Immobilien. Der Käufer zahlt eine gesetzliche Vermittlungsprovision in Höhe von 3% (+ MwSt.) des vereinbarten Preises, und zwar nur im Falle des Kaufs der Immobilie. Sollte der Kauf nicht zustande kommen, ist der Vertrag für Sie nicht bindend und wird annulliert. Wenn Sie ernsthaft an der Immobilie interessiert sind, senden wir Ihnen den Vertrag auf Anfrage zu.
Wir werden Ihnen innerhalb von 24 Stunden antworten.
Wir bieten nur geprüfte Immobilien an.
Wir garantieren eine hohe Servicequalität.
Wir können Ihnen bei der Vermittlung von Unterkünften während der Besichtigungen helfen.
- Ich habe eine Immobilie aus dem Angebot ausgewählt
- Ich kontaktiere den Makler
- Ich unterschreibe einen Vertretungsvertrag - Details hier! (die Unterzeichnung des Vertrags ist gesetzlich vorgeschrieben)
- Ich richte eine OIB ein - Details hier (die Einrichtung ist gesetzlich vorgeschrieben)
- Besichtigungen vor Ort
- Unterzeichnung der Reservierung, des Kaufvertrags