ISTRIEN, SAVUDRIJA - Wohnung im 1. Stock in der Nähe des Meeres
| Registrationsnummer | DN-40242 |
| Art des Angebots | Verkauf |
| Kategorie | Appartements |
| Bezirk | Istarska |
| Gemeindeteil | Umag |
| Preis | 255 000 € |
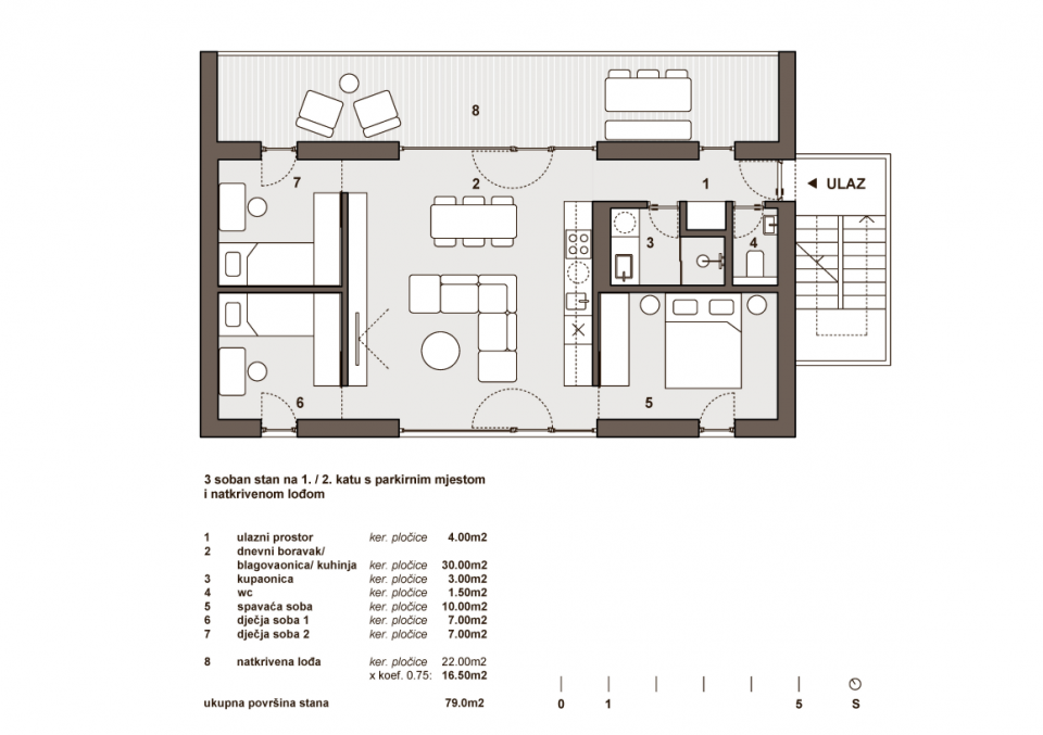
| Gesamtfläche | 79 m² |
| Wohnfläche (Wohnung) | 79 m² |
| Entfernung vom meer | 1 400 m |
| Strom | |
| Wasser | |
| Abfall | |
| Gas | |
| Klimaanlage |
ISTRIEN, SAVUDRIJA – Ferienwohnung im 1. Stock in Meeresnähe Wenn Sie Istrien von Nordwesten her betreten, stoßen Sie als erstes auf Savudrija, am äußersten Rand der gleichnamigen Halbinsel gelegen. Das geschichtsträchtige kleine Fischerdorf wurde erstmals im 12. Jahrhundert erwähnt, und archäologische Funde aus der Umgebung belegen, dass dieses Gebiet bereits in der Steinzeit besiedelt war. Die gegliederte, überwiegend felsige Küste, durchsetzt mit kleinen Kieselstränden und umgeben von üppiger mediterraner Vegetation, zieht zahlreiche Touristen an, die gerne wiederkommen. Die Ferienwohnung nimmt die gesamte Etage des Wohngebäudes ein und verfügt über einen separaten Eingang, was das Gefühl von Privatsphäre und Komfort noch weiter unterstreicht. Die Gesamtfläche der Ferienwohnung beträgt 79 m², davon sind 62,50 m² Wohnfläche und 22 m² eine geräumige, überdachte Loggia. Die Wohnung bietet einen freien Blick auf das Meer, was zur Atmosphäre eines authentischen mediterranen Lebensstils beiträgt. Der Grundriss der Wohnung ist sorgfältig durchdacht und umfasst einen Eingangsbereich, drei Schlafzimmer, ein modernes Badezimmer, ein separates WC sowie ein geräumiges Wohnzimmer mit Esszimmer und offener Küche. Vom Wohnzimmer aus gelangt man auf eine große Loggia – ein idealer Ort zum Entspannen und Genießen der Natur zu jeder Jahreszeit. Zur Wohnung gehören außerdem ausgewiesene Parkplätze im umzäunten Hof des Gebäudes. Das Gebäude umfasst insgesamt vier Wohneinheiten und wird schlüsselfertig verkauft. Die Fertigstellung aller Arbeiten ist für Herbst 2025 geplant.
Bei allen unseren Angeboten sind die Preise identisch mit dem Direktkauf bei der Agentur/dem Entwickler in Kroatien, da wir der offizielle Vertreter dieser Agenturen auf dem tschechischen, slowakischen, deutschen und österreichischen Markt sind. Dies gilt ohne zusätzliche Zuschläge für deutschsprachige Dienstleistungen.
Sehr geehrte Kunden, die Besichtigung von Immobilien, die Mitteilung der Lage und andere detaillierte Informationen sind nur mit einem unterzeichneten Vermittlungsvertrag möglich, der die Grundlage für weitere Aktionen wie den Kauf einer Immobilie bildet. Alles steht im Einklang mit dem Gesetz über die Vermittlung beim Kauf von Immobilien. Der Käufer zahlt eine gesetzliche Vermittlungsprovision in Höhe von 3% (+ MwSt.) des vereinbarten Preises, und zwar nur im Falle des Kaufs der Immobilie. Sollte der Kauf nicht zustande kommen, ist der Vertrag für Sie nicht bindend und wird annulliert. Wenn Sie ernsthaft an der Immobilie interessiert sind, senden wir Ihnen den Vertrag auf Anfrage zu.
Wir werden Ihnen innerhalb von 24 Stunden antworten.
Wir bieten nur geprüfte Immobilien an.
Wir garantieren eine hohe Servicequalität.
Wir können Ihnen bei der Vermittlung von Unterkünften während der Besichtigungen helfen.
- Ich habe eine Immobilie aus dem Angebot ausgewählt
- Ich kontaktiere den Makler
- Ich unterschreibe einen Vertretungsvertrag - Details hier! (die Unterzeichnung des Vertrags ist gesetzlich vorgeschrieben)
- Ich richte eine OIB ein - Details hier (die Einrichtung ist gesetzlich vorgeschrieben)
- Besichtigungen vor Ort
- Unterzeichnung der Reservierung, des Kaufvertrags