ISTRIEN, ST. LOVREČ - Grundstück mit gültiger Baugenehmigung und bezahlten Nebenkosten
| Registrationsnummer | DN-31319 |
| Art des Angebots | Verkauf |
| Kategorie | Bauland |
| Bezirk | Istarska |
| Gemeindeteil | Sveti Lovreč |
| Preis | 192 000 € |
| Preis pro m2 | 146 €/m² |
| Gesamtfläche | 1 313 m² |
| Entfernung vom meer | 8 000 m |
| Strom |
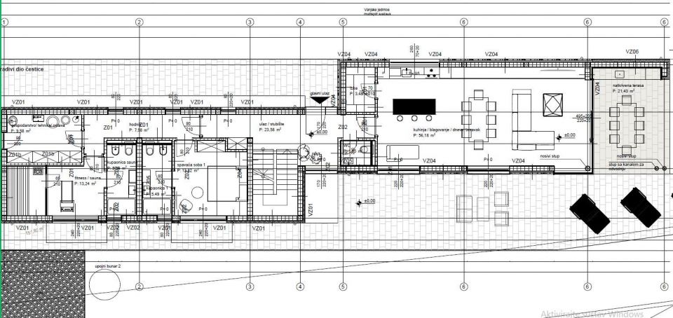
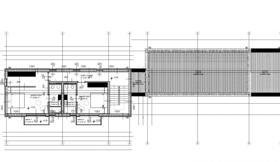
ISTRIEN, ST. LOVREČ – Grundstück mit gültiger Baugenehmigung und bezahlten Nebenkosten. Auf einem Hügel mit herrlichem Blick auf sanfte Felder, Weinberge, Olivenhaine und das Meer in der Ferne liegt Sveti Lovreč. Sveti Lovreč liegt inmitten üppiger Lavendelfelder im westlichen Teil der istrischen Halbinsel, im unmittelbaren Hinterland von Vrsar, Poreč und Rovinj und ist eine der am besten erhaltenen mittelalterlichen Festungsstädte Istriens. Die Lage der Kleinstadt auf einem sanften Hügel, der das Gebiet dominiert, in dem bis zu 22 Siedlungen, Dörfer und Weiler verstreut sind, zeugt von ihrer bedeutenden Rolle im Laufe der Geschichte. Entlang der leicht gegliederten Westküste Istriens gibt es mehrere tiefe Buchten, von denen die Lim-Bucht teilweise zur Gemeinde Sveti Lovreč gehört. Die Lim-Bucht ist ein Naturphänomen von großem wissenschaftlichen und ästhetischen Wert; Es wurde zum Sonderschutzgebiet im Meer erklärt. In der zauberhaften Umgebung von St. Lovreč bieten wir ein Baugrundstück mit gültiger Baugenehmigung und bezahlten Nebenkosten an. Das Grundstück hat eine Fläche von 1.313 m2, ist flach und hat eine regelmäßige Form. Strom gibt es auf dem Feld, Wasser gibt es in 80 Metern Entfernung. Das einzigartige Designprojekt besteht aus zwei miteinander verbundenen Objekten, die ein Ganzes bilden. Das Erdgeschoss besteht aus einem großen, hellen Wohnzimmer, einer Küche und einem Esszimmer, die sich alle auf einer Fläche von 56 m2 befinden. Außerdem gibt es einen kleinen Raum (Abstellraum) und eine Toilette. Das Wohnzimmer führt zu einer überdachten Terrasse von 21 m2. Im Erdgeschoss gibt es ein Schlafzimmer mit eigenem Bad, eine Sauna, die ebenfalls über ein eigenes Bad verfügt, und einen Raum für Geräte. Das Zimmer und die Sauna haben Zugang zu einem schönen Garten mit Swimmingpool. Wir steigen die Innentreppe hinauf zum Stockwerk, wo sich zwei weitere Schlafzimmer mit eigenem Bad befinden, eines davon ist das Hauptschlafzimmer mit einer Fläche von 25,5 m2. Im Garten befindet sich ein 3x10 m2 großer Swimmingpool. Das Grundstück ist von einer Mauer umgeben und liegt in einer ruhigen Straße. Der Grundstückseigentümer ist eine juristische Person, für juristische Personen gilt der Preis, für natürliche Personen wird der Mehrwertsteuerposten berechnet. Diese einzigartige Immobilie ist ideal für Ihr neues Zuhause. Gelegenheit
Bei allen unseren Angeboten sind die Preise identisch mit dem Direktkauf bei der Agentur/dem Entwickler in Kroatien, da wir der offizielle Vertreter dieser Agenturen auf dem tschechischen, slowakischen, deutschen und österreichischen Markt sind. Dies gilt ohne zusätzliche Zuschläge für deutschsprachige Dienstleistungen.
Sehr geehrte Kunden, die Besichtigung von Immobilien, die Mitteilung der Lage und andere detaillierte Informationen sind nur mit einem unterzeichneten Vermittlungsvertrag möglich, der die Grundlage für weitere Aktionen wie den Kauf einer Immobilie bildet. Alles steht im Einklang mit dem Gesetz über die Vermittlung beim Kauf von Immobilien. Der Käufer zahlt eine gesetzliche Vermittlungsprovision in Höhe von 3% (+ MwSt.) des vereinbarten Preises, und zwar nur im Falle des Kaufs der Immobilie. Sollte der Kauf nicht zustande kommen, ist der Vertrag für Sie nicht bindend und wird annulliert. Wenn Sie ernsthaft an der Immobilie interessiert sind, senden wir Ihnen den Vertrag auf Anfrage zu.
Wir werden Ihnen innerhalb von 24 Stunden antworten.
Wir bieten nur geprüfte Immobilien an.
Wir garantieren eine hohe Servicequalität.
Wir können Ihnen bei der Vermittlung von Unterkünften während der Besichtigungen helfen.
- Ich habe eine Immobilie aus dem Angebot ausgewählt
- Ich kontaktiere den Makler
- Ich unterschreibe einen Vertretungsvertrag - Details hier! (die Unterzeichnung des Vertrags ist gesetzlich vorgeschrieben)
- Ich richte eine OIB ein - Details hier (die Einrichtung ist gesetzlich vorgeschrieben)
- Besichtigungen vor Ort
- Unterzeichnung der Reservierung, des Kaufvertrags