ISTRIEN, ST. PETAR IM WALD - Schöner Neubau mit Swimmingpool und Sommerküche
| Registrationsnummer | DN-27492 |
| Art des Angebots | Verkauf |
| Kategorie | Häuser |
| Bezirk | Istarska |
| Gemeindeteil | Sveti Petar U Šumi |
| Gesamtfläche | 203 m² |
| Bebaute Fläche und Hof | 887 m² |
| Gesamt bebaut fläche | 887 m² |
| Strom |
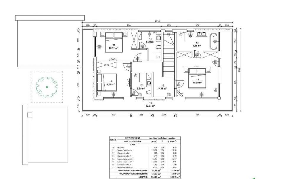
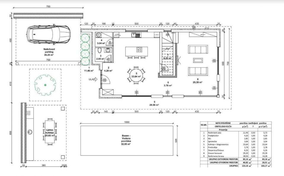
ISTRIEN, ST. PETAR IM WALD - Schönes neues Gebäude mit Schwimmbad und Sommerküche Umgeben von alten Wäldern und auf einer hügeligen Ebene gelegen, liegt Sv. Petar u Šumi, Sitz der kleinsten Gemeinde Istriens, ist die ungewöhnlichste Stadt Istriens. Typische istrische Architektur ist hier weniger vertreten, aber der spürbare Einfluss des Nordens ist in seiner Bauweise spürbar. Häuser verstreut rund um Sv. Peter, die meisten von ihnen sind noch mit steinernen Fensterläden bedeckt, die seit der Antike grau sind. Wir verkaufen dieses schöne neue Gebäude in Sveti Petar! Es handelt sich um eine Villa mit einer Fläche von 203,32 m2, die aus einem Erdgeschoss und einem ersten Stock besteht. Das Erdgeschoss ist als Hauptwohnteil des Hauses konzipiert, wo sich die Küche, das Esszimmer und das Wohnzimmer mit Zugang zur Terrasse und zum Garten befinden. Im Erdgeschoss gibt es außerdem einen Abstellraum und eine Toilette. Im 1. Stock befinden sich 3 Schlafzimmer mit jeweils eigenem Bad. Einer der Räume ist das Hauptschlafzimmer mit einer Fläche von 21 m2, dessen Geräumigkeit künftige Eigentümer maximal genießen können. Jedes Zimmer hat Zugang zu einer Terrasse von 37,37 m2, die einen Blick auf die Umgebung und das Grüne bietet. Den Spaß mit Freunden oder der Familie können Sie am 32 m2 großen Swimmingpool mit Grill in der 25,83 m2 großen Sommerküche abrunden. Zum Haus gehören außerdem 2 überdachte Parkplätze. Das Haus wird über Fußbodenheizung und Klimaanlage verfügen. Der Bau hat begonnen und die Fertigstellung wird für Ende des Jahres erwartet. Es ist möglich, ein Haus zu kaufen, während es sich noch im Bau befindet, und der Preis hängt von der aktuellen Bauphase ab. Aufgrund seiner modernen Ästhetik, Lage und wunderschönen Umgebung bietet Ihnen diese Immobilie einen angenehmen und hochwertigen Lebensstil.
Bei allen unseren Angeboten sind die Preise identisch mit dem Direktkauf bei der Agentur/dem Entwickler in Kroatien, da wir der offizielle Vertreter dieser Agenturen auf dem tschechischen, slowakischen, deutschen und österreichischen Markt sind. Dies gilt ohne zusätzliche Zuschläge für deutschsprachige Dienstleistungen.
Sehr geehrte Kunden, die Besichtigung von Immobilien, die Mitteilung der Lage und andere detaillierte Informationen sind nur mit einem unterzeichneten Vermittlungsvertrag möglich, der die Grundlage für weitere Aktionen wie den Kauf einer Immobilie bildet. Alles steht im Einklang mit dem Gesetz über die Vermittlung beim Kauf von Immobilien. Der Käufer zahlt eine gesetzliche Vermittlungsprovision in Höhe von 3% (+ MwSt.) des vereinbarten Preises, und zwar nur im Falle des Kaufs der Immobilie. Sollte der Kauf nicht zustande kommen, ist der Vertrag für Sie nicht bindend und wird annulliert. Wenn Sie ernsthaft an der Immobilie interessiert sind, senden wir Ihnen den Vertrag auf Anfrage zu.
Wir werden Ihnen innerhalb von 24 Stunden antworten.
Wir bieten nur geprüfte Immobilien an.
Wir garantieren eine hohe Servicequalität.
Wir können Ihnen bei der Vermittlung von Unterkünften während der Besichtigungen helfen.
- Ich habe eine Immobilie aus dem Angebot ausgewählt
- Ich kontaktiere den Makler
- Ich unterschreibe einen Vertretungsvertrag - Details hier! (die Unterzeichnung des Vertrags ist gesetzlich vorgeschrieben)
- Ich richte eine OIB ein - Details hier (die Einrichtung ist gesetzlich vorgeschrieben)
- Besichtigungen vor Ort
- Unterzeichnung der Reservierung, des Kaufvertrags