ISTRIEN, SVETI LOVREČ - Doppelhaushälfte mit Pool
| Registrationsnummer | DN-42700 |
| Art des Angebots | Verkauf |
| Kategorie | Häuser |
| Bezirk | Istarska |
| Gemeindeteil | Sveti Lovreč |
| Preis | 350 000 € |
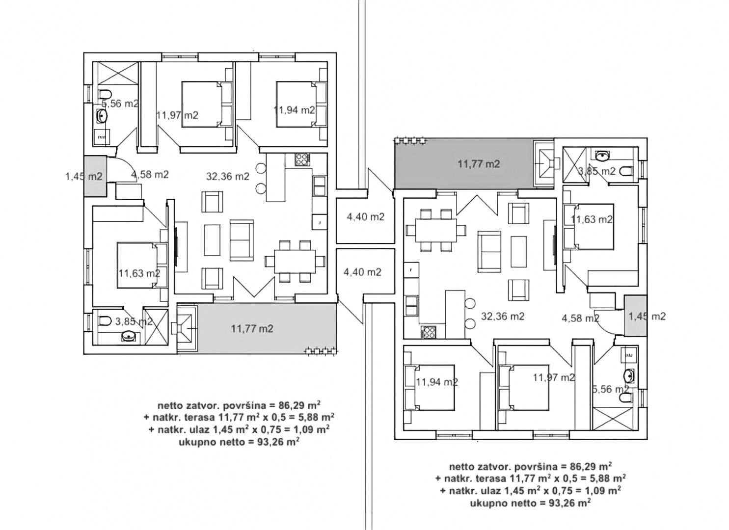
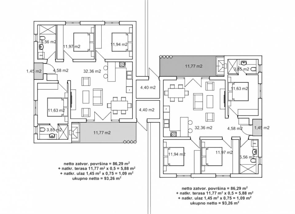
| Gesamtfläche | 93 m² |
| Bebaute Fläche und Hof | 500 m² |
| Gesamt bebaut fläche | 500 m² |
| Entfernung vom meer | 15 000 m |
| Strom | |
| Klimaanlage | |
| Energieintensität | X - Nicht ausgestellt |
ISTRIEN, SVETI LOVREČ – Doppelhaushälfte mit Pool Auf einem Hügel mit herrlichem Blick auf sanfte Felder, Weinberge, Olivenhaine und das Meer in der Ferne liegt Sveti Lovreč. Sveti Lovreč liegt inmitten üppiger Lavendelfelder im Westen der istrischen Halbinsel, im unmittelbaren Hinterland von Vrsar, Poreč und Rovinj und ist eine der am besten erhaltenen mittelalterlichen Festungsstädte Istriens. Die Lage der Stadt auf einem sanften Hügel, der das Gebiet dominiert, in dem sich 22 Siedlungen, Dörfer und Weiler befinden, zeugt von ihrer bedeutenden Rolle im Laufe der Geschichte. Entlang der sanft gegliederten Westküste Istriens ragen mehrere tiefe Buchten hervor, von denen die Lim-Bucht teilweise zur Gemeinde Sveti Lovreč gehört. Die Lim-Bucht ist ein Naturphänomen von großem wissenschaftlichen und ästhetischen Wert und wurde zum besonderen Meeresschutzgebiet erklärt. In einer ruhigen Wohngegend in der Nähe von Sveti Lovreč steht eine Doppelhaushälfte mit Swimmingpool zum Verkauf. Die Mikrolage bietet das authentische Erlebnis einer istrischen Kleinstadt, Intimität, Erholung von Hektik und Lärm und liegt gleichzeitig nah genug an dynamischen istrischen Städten mit zahlreichen Annehmlichkeiten. Neben der günstigen Lage zeichnet sich die Immobilie auch durch die hochwertige Bauausführung aus, die langfristige Zufriedenheit und Lebensqualität garantiert. Das Haus mit seiner zeitlosen Architektur fügt sich in Form und Farbe in die Siedlung und Landschaft ein und ist als eine Wohneinheit konzipiert, die sich über eine Etage erstreckt. Es besteht aus einem offenen Raumkonzept, das Küche, Esszimmer und Wohnzimmer mit Zugang zu einer überdachten Terrasse, drei Schlafzimmern, zwei Badezimmern und einem Abstellraum vereint. Der Garten ist stimmungsvoll und gärtnerisch gestaltet und eingezäunt und verfügt über einen Swimmingpool mit Liegewiese. Die hervorragende Lage und die räumliche Aufteilung des Innen- und Außenbereichs dieser Immobilie bieten die Möglichkeit für ein komfortables Familienleben oder eine Investition in ein touristisches Vermietungsgeschäft. Der angegebene Preis der Immobilie bezieht sich auf den Endausbau ohne Möbel, sodass Sie die endgültige Einrichtung nach Ihren Wünschen und Vorlieben gestalten können.
Bei allen unseren Angeboten sind die Preise identisch mit dem Direktkauf bei der Agentur/dem Entwickler in Kroatien, da wir der offizielle Vertreter dieser Agenturen auf dem tschechischen, slowakischen, deutschen und österreichischen Markt sind. Dies gilt ohne zusätzliche Zuschläge für deutschsprachige Dienstleistungen.
Sehr geehrte Kunden, die Besichtigung von Immobilien, die Mitteilung der Lage und andere detaillierte Informationen sind nur mit einem unterzeichneten Vermittlungsvertrag möglich, der die Grundlage für weitere Aktionen wie den Kauf einer Immobilie bildet. Alles steht im Einklang mit dem Gesetz über die Vermittlung beim Kauf von Immobilien. Der Käufer zahlt eine gesetzliche Vermittlungsprovision in Höhe von 3% (+ MwSt.) des vereinbarten Preises, und zwar nur im Falle des Kaufs der Immobilie. Sollte der Kauf nicht zustande kommen, ist der Vertrag für Sie nicht bindend und wird annulliert. Wenn Sie ernsthaft an der Immobilie interessiert sind, senden wir Ihnen den Vertrag auf Anfrage zu.
Wir werden Ihnen innerhalb von 24 Stunden antworten.
Wir bieten nur geprüfte Immobilien an.
Wir garantieren eine hohe Servicequalität.
Wir können Ihnen bei der Vermittlung von Unterkünften während der Besichtigungen helfen.
- Ich habe eine Immobilie aus dem Angebot ausgewählt
- Ich kontaktiere den Makler
- Ich unterschreibe einen Vertretungsvertrag - Details hier! (die Unterzeichnung des Vertrags ist gesetzlich vorgeschrieben)
- Ich richte eine OIB ein - Details hier (die Einrichtung ist gesetzlich vorgeschrieben)
- Besichtigungen vor Ort
- Unterzeichnung der Reservierung, des Kaufvertrags