ISTRIEN, SVETVINČENAT – Grundstück mit endgültiger Genehmigung und einem Hausprojekt mit Swimmingpool
| Registrationsnummer | DN-42744 |
| Art des Angebots | Verkauf |
| Kategorie | Bauland |
| Bezirk | Istarska |
| Gemeindeteil | Svetvinčenat |
| Preis | 69 000 € |
| Preis pro m2 | 195 €/m² |
| Gesamtfläche | 353 m² |
| Entfernung vom meer | 15 000 m |
| Strom |
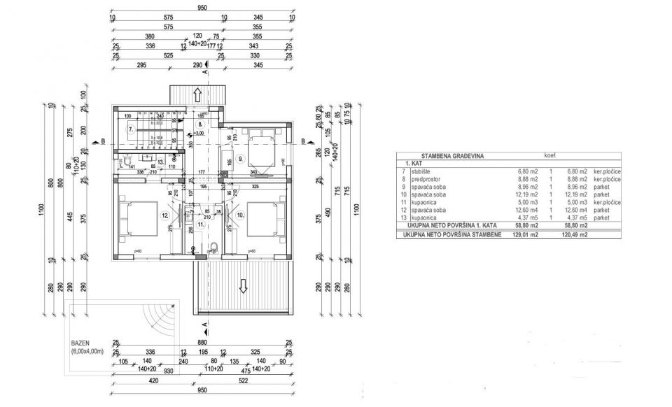
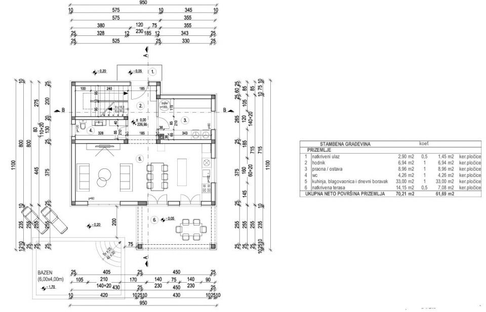
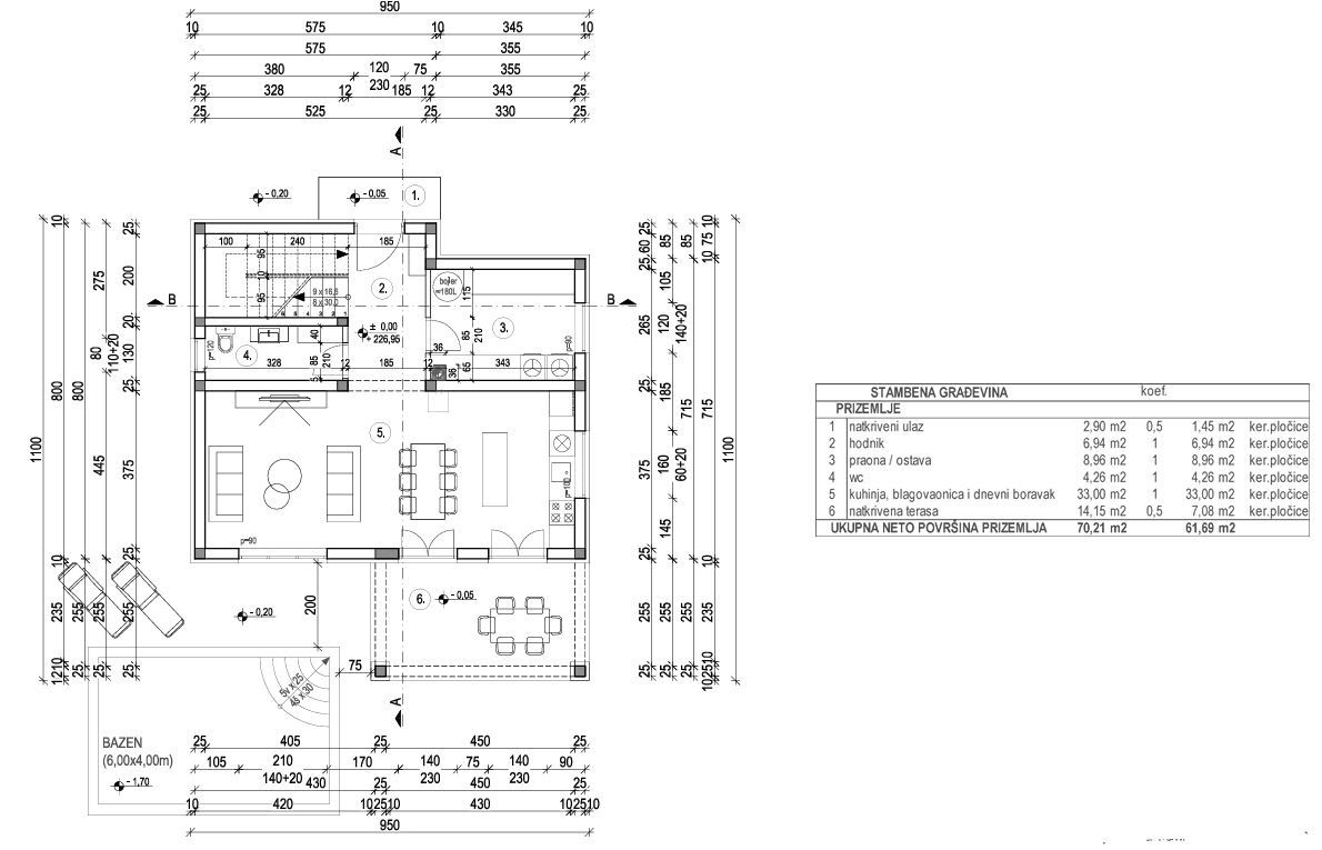
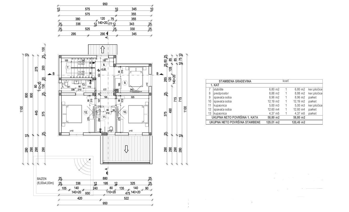
ISTRIEN, SVETVINČENAT – Grundstück mit Baugenehmigung und Hausprojekt mit Swimmingpool Svetvinčenat in Zentralistrien ist bekannt für seine Altstadt, seine mittelalterliche Burg, seine kulturellen Veranstaltungen und seinen ruhigen Lebensstil. Deshalb wird es immer beliebter für Familien, Investitionen in den Tourismus und das Leben in authentischer istrischer Umgebung. In einem ruhigen Dorf in der Nähe von Svetvinčenat steht ein 353 m² großes Baugrundstück mit Baugenehmigung für ein modernes zweistöckiges Haus mit Swimmingpool zum Verkauf. Das Grundstück befindet sich in einem gepflegten und ruhigen Dorf, das sich durch seine natürliche Umgebung und die hervorragende Anbindung auszeichnet. Die Zufahrt zum Grundstück erfolgt über eine etwa 100 Meter lange Schotterstraße, die in eine Asphaltstraße mündet. Entlang der Zufahrtsstraße sind bereits Wasser-, Licht- und Stromleitungen installiert, einschließlich eines Blitzableiters, was den Baubeginn erheblich erleichtert. Für dieses Grundstück liegt eine Baugenehmigung für ein Haus mit einer Gesamtnettofläche von 129,01 m² vor. Das Erdgeschoss verfügt über einen überdachten Eingang, Flur, Waschküche, Toilette sowie eine offene Küche mit Ess- und Wohnzimmer und Zugang zu einer überdachten Terrasse. Eine Innentreppe führt in den ersten Stock, wo sich drei Schlafzimmer und zwei Badezimmer befinden – eine Raumaufteilung, die modernen Ansprüchen an komfortables Wohnen oder die touristische Nutzung gerecht wird. Unmittelbar neben diesem Grundstück stehen zwei weitere Baugrundstücke ähnlicher Größe zum Kauf bereit, ebenfalls mit Baugenehmigung für Häuser mit Swimmingpool. Dies eröffnet zusätzliche Möglichkeiten für Projekterweiterungen oder Investitionsplanungen. Der Kauf ist einzeln, wie in diesem Fall, oder in Kombination mit anderen Grundstücken möglich – ideal für alle, die Flexibilität bei der Umsetzung ihrer Pläne wünschen. Der Eigentümer ist eine juristische Person, und der Käufer zahlt beim Kauf keine Grunderwerbsteuer. Diese Immobilie bietet eine hervorragende Gelegenheit für alle, die sich den langwierigen Prozess der Dokumentenbeschaffung ersparen und sofort mit dem Bau in einer ruhigen, gut angebundenen und zunehmend gefragten Lage in Istrien beginnen möchten. Mit einem abgeschlossenen Projekt, einer geklärten Zufahrt und Infrastruktur ist alles bereit für den Bau.
Bei allen unseren Angeboten sind die Preise identisch mit dem Direktkauf bei der Agentur/dem Entwickler in Kroatien, da wir der offizielle Vertreter dieser Agenturen auf dem tschechischen, slowakischen, deutschen und österreichischen Markt sind. Dies gilt ohne zusätzliche Zuschläge für deutschsprachige Dienstleistungen.
Sehr geehrte Kunden, die Besichtigung von Immobilien, die Mitteilung der Lage und andere detaillierte Informationen sind nur mit einem unterzeichneten Vermittlungsvertrag möglich, der die Grundlage für weitere Aktionen wie den Kauf einer Immobilie bildet. Alles steht im Einklang mit dem Gesetz über die Vermittlung beim Kauf von Immobilien. Der Käufer zahlt eine gesetzliche Vermittlungsprovision in Höhe von 3% (+ MwSt.) des vereinbarten Preises, und zwar nur im Falle des Kaufs der Immobilie. Sollte der Kauf nicht zustande kommen, ist der Vertrag für Sie nicht bindend und wird annulliert. Wenn Sie ernsthaft an der Immobilie interessiert sind, senden wir Ihnen den Vertrag auf Anfrage zu.
Wir werden Ihnen innerhalb von 24 Stunden antworten.
Wir bieten nur geprüfte Immobilien an.
Wir garantieren eine hohe Servicequalität.
Wir können Ihnen bei der Vermittlung von Unterkünften während der Besichtigungen helfen.
- Ich habe eine Immobilie aus dem Angebot ausgewählt
- Ich kontaktiere den Makler
- Ich unterschreibe einen Vertretungsvertrag - Details hier! (die Unterzeichnung des Vertrags ist gesetzlich vorgeschrieben)
- Ich richte eine OIB ein - Details hier (die Einrichtung ist gesetzlich vorgeschrieben)
- Besichtigungen vor Ort
- Unterzeichnung der Reservierung, des Kaufvertrags