ISTRIEN, SVETVINČENAT - Modernes einstöckiges Haus mit Pool in ruhiger Umgebung
| Registrationsnummer | DN-42599 |
| Art des Angebots | Verkauf |
| Kategorie | Häuser |
| Bezirk | Istarska |
| Gemeindeteil | Svetvinčenat |
| Preis | 495 000 € |
| Gesamtfläche | 114 m² |
| Bebaute Fläche und Hof | 633 m² |
| Gesamt bebaut fläche | 633 m² |
| Entfernung vom meer | 20 000 m |
| Strom | |
| Klimaanlage |
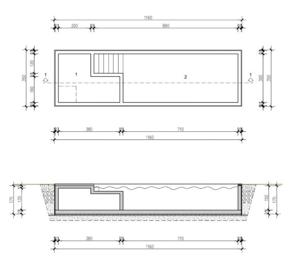
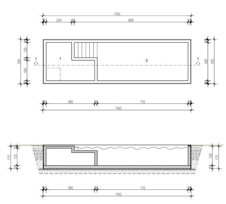
ISTRIEN, SVETVINČENAT – Modernes einstöckiges Haus mit Swimmingpool in ruhiger Lage Svetvinčenat ist ein authentisches istrisches Dorf, bekannt für seine reiche Geschichte, Kultur und seinen friedlichen Lebensstil, umgeben von viel Grün und nur 20 Minuten von der Küste und Touristenzentren wie Rovinj, Fažana und Pula entfernt. Im Herzen des idyllischen Istriens, im malerischen Ort Svetvinčenat, befindet sich dieses moderne einstöckige Haus, das die perfekte Kombination aus Komfort, Funktionalität und ruhiger Umgebung bietet. Dieses elegante Haus befindet sich in einer neuen Siedlung mit insgesamt 6 modernen einstöckigen Häusern, die Exklusivität, Sicherheit und Ruhe garantieren. Das Haus ist hinsichtlich des Grundrisses perfekt organisiert, hat eine Nettofläche von 114,57 m² geschlossener Fläche und verfügt über: – 3 geräumige und helle Schlafzimmer – 2 moderne Badezimmer – Offenes Wohnzimmer, Esszimmer und Küche – ein luftiger und heller Raum, ideal für Familien und geselliges Beisammensein – Sommerküche – perfekt, um istrische Köstlichkeiten unter freiem Himmel zu genießen – Überdachte Terrasse von 19,65 m² – geschaffen zum Entspannen an heißen Sommertagen – Privater Swimmingpool von 23,46 m² – mit geräumiger Liegewiese und absoluter Privatsphäre – Technikraum, Garderobe und Servicebereich Die gesamte Bruttofläche des Erdgeschosses beträgt 141,80 m² und das alles erstreckt sich über einen geräumigen Garten von 633 m², der von einer Mauer umgeben und mit Grün geschmückt ist. Technische Merkmale: - Fußbodenheizung – sorgt das ganze Jahr über für Wärme und Komfort - Klimaanlage – für eine optimale Temperatur in jeder Ecke des Hauses - Hochwertige Bauweise, erstklassige Isolierung und sorgfältig ausgewählte Materialien - Privatparkplatz für Ihre Fahrzeuge Das Haus befindet sich derzeit im Bau, sodass der Käufer die Fertigstellungsdetails nach seinen Wünschen auswählen kann. Diese moderne Villa mit Charakter ist ideal sowohl für das Familienleben als auch als Investition in die touristische Vermietung. Die Kombination aus moderner Architektur, ruhiger Lage und praktischer Raumaufteilung macht diese Immobilie äußerst attraktiv. Verpassen Sie nicht die Gelegenheit, Eigentümer dieses einzigartigen einstöckigen Hauses in einem ruhigen und grünen Teil Istriens zu werden!
Bei allen unseren Angeboten sind die Preise identisch mit dem Direktkauf bei der Agentur/dem Entwickler in Kroatien, da wir der offizielle Vertreter dieser Agenturen auf dem tschechischen, slowakischen, deutschen und österreichischen Markt sind. Dies gilt ohne zusätzliche Zuschläge für deutschsprachige Dienstleistungen.
Sehr geehrte Kunden, die Besichtigung von Immobilien, die Mitteilung der Lage und andere detaillierte Informationen sind nur mit einem unterzeichneten Vermittlungsvertrag möglich, der die Grundlage für weitere Aktionen wie den Kauf einer Immobilie bildet. Alles steht im Einklang mit dem Gesetz über die Vermittlung beim Kauf von Immobilien. Der Käufer zahlt eine gesetzliche Vermittlungsprovision in Höhe von 3% (+ MwSt.) des vereinbarten Preises, und zwar nur im Falle des Kaufs der Immobilie. Sollte der Kauf nicht zustande kommen, ist der Vertrag für Sie nicht bindend und wird annulliert. Wenn Sie ernsthaft an der Immobilie interessiert sind, senden wir Ihnen den Vertrag auf Anfrage zu.
Wir werden Ihnen innerhalb von 24 Stunden antworten.
Wir bieten nur geprüfte Immobilien an.
Wir garantieren eine hohe Servicequalität.
Wir können Ihnen bei der Vermittlung von Unterkünften während der Besichtigungen helfen.
- Ich habe eine Immobilie aus dem Angebot ausgewählt
- Ich kontaktiere den Makler
- Ich unterschreibe einen Vertretungsvertrag - Details hier! (die Unterzeichnung des Vertrags ist gesetzlich vorgeschrieben)
- Ich richte eine OIB ein - Details hier (die Einrichtung ist gesetzlich vorgeschrieben)
- Besichtigungen vor Ort
- Unterzeichnung der Reservierung, des Kaufvertrags