ISTRIEN, TAR - Meisterwohnung in der Nähe aller Annehmlichkeiten
| Registrationsnummer | DN-30246 |
| Art des Angebots | Verkauf |
| Kategorie | Appartements |
| Bezirk | Istarska |
| Gemeindeteil | Tar-Vabriga |
| Preis | 245 000 € |
| Gesamtfläche | 101 m² |
| Wohnfläche (Wohnung) | 101 m² |
| Entfernung vom meer | 1 500 m |
| Strom | |
| Wasser | |
| Abfall | |
| Klimaanlage | |
| Heizung | ano |
| Energieintensität | A - extrem wirtschaftlich |
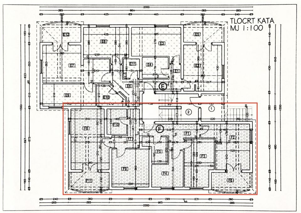
ISTRIEN, TAR - Herrenhauswohnung in der Nähe aller Annehmlichkeiten Wir bieten Ihnen eine neu gebaute Herrenhauswohnung in Tar mit einer Fläche von 101 Quadratmetern. Diese Wohnung befindet sich im ersten Stock eines Wohnhauses und ist in zwei Wohneinheiten aufgeteilt. Jede Einheit verfügt über einen eigenen Eingang vom Flur des Gebäudes aus. Eine Einheit besteht aus einem Wohnzimmer und einer Küche, zwei Schlafzimmern, einem Badezimmer, einem Balkon, einer Eingangshalle und einem Abstellraum. Die zweite Einheit besteht aus einem Wohnzimmer und einer Küche, einem Schlafzimmer, einem Badezimmer, einem Balkon und einer Eingangshalle. Zur Wohnung gehören zwei Parkplätze und ein Garten auf der Nordseite des Gebäudes.
Bei allen unseren Angeboten sind die Preise identisch mit dem Direktkauf bei der Agentur/dem Entwickler in Kroatien, da wir der offizielle Vertreter dieser Agenturen auf dem tschechischen, slowakischen, deutschen und österreichischen Markt sind. Dies gilt ohne zusätzliche Zuschläge für deutschsprachige Dienstleistungen.
Sehr geehrte Kunden, die Besichtigung von Immobilien, die Mitteilung der Lage und andere detaillierte Informationen sind nur mit einem unterzeichneten Vermittlungsvertrag möglich, der die Grundlage für weitere Aktionen wie den Kauf einer Immobilie bildet. Alles steht im Einklang mit dem Gesetz über die Vermittlung beim Kauf von Immobilien. Der Käufer zahlt eine gesetzliche Vermittlungsprovision in Höhe von 3% (+ MwSt.) des vereinbarten Preises, und zwar nur im Falle des Kaufs der Immobilie. Sollte der Kauf nicht zustande kommen, ist der Vertrag für Sie nicht bindend und wird annulliert. Wenn Sie ernsthaft an der Immobilie interessiert sind, senden wir Ihnen den Vertrag auf Anfrage zu.
Wir werden Ihnen innerhalb von 24 Stunden antworten.
Wir bieten nur geprüfte Immobilien an.
Wir garantieren eine hohe Servicequalität.
Wir können Ihnen bei der Vermittlung von Unterkünften während der Besichtigungen helfen.
- Ich habe eine Immobilie aus dem Angebot ausgewählt
- Ich kontaktiere den Makler
- Ich unterschreibe einen Vertretungsvertrag - Details hier! (die Unterzeichnung des Vertrags ist gesetzlich vorgeschrieben)
- Ich richte eine OIB ein - Details hier (die Einrichtung ist gesetzlich vorgeschrieben)
- Besichtigungen vor Ort
- Unterzeichnung der Reservierung, des Kaufvertrags