ISTRIEN, TINJAN - Einfamilienhaus in toller Lage
| Registrationsnummer | DN-30836 |
| Art des Angebots | Verkauf |
| Kategorie | Häuser |
| Bezirk | Istarska |
| Gemeindeteil | Tinjan |
| Preis | 680 000 € |
| Gesamtfläche | 220 m² |
| Bebaute Fläche und Hof | 1 084 m² |
| Gesamt bebaut fläche | 1 084 m² |
| Entfernung vom meer | 15 000 m |
| Strom | |
| Wasser | |
| Klimaanlage | |
| Heizung | ano |
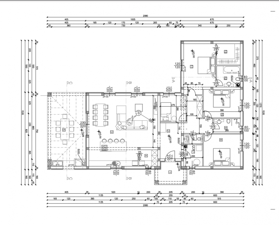
ISTRIEN, TINJAN - Einfamilienhaus in toller Lage Die Gemeinde Tinjan liegt im zentralen Teil Zentralistriens. Tinjan bewahrt stolz seine Geschichte und Traditionen, sei es um die Symbole dieser Region, Trockenmauern und Pfützen, Mäher und Rankuns, Folklore und architektonisches Erbe, Traditionen und Legenden oder um hervorragende gastronomische Köstlichkeiten wie istrischen Prosciutto. Im Jahr 2006 wurde Tinjan zur Gemeinde des istrischen Schinkens erklärt und die internationale Schinkenmesse findet jedes Jahr am dritten Wochenende im Oktober statt. Freistehendes einstöckiges Haus zum Verkauf, gelegen auf einem Grundstück von 1084 m2. Das Hotel liegt in einem sehr gepflegten und interessanten Ort Tinjan, 20 km von Poreč und 12 km von Pazin entfernt. Da sich das Gebäude im Bau befindet, können die letzten Details an die Bedürfnisse und Wünsche des Kunden angepasst werden. Die Lage des Hauses ist sehr gut, wenn man bedenkt, dass es einerseits am Wald und in der wunderschönen Natur liegt und andererseits ganz in der Nähe des Stadtzentrums liegt, in unmittelbarer Nähe der Post, Geschäfte, Cafés, Restaurants, Schulen, Kindergärten, Apotheken, Bushaltestellen. Das Haus hat eine Gesamtfläche von 221 m2, wovon der Wohnbereich im Erdgeschoss 182 m2 einnimmt, während im Untergeschoss eine Taverne mit einer Fläche von 27 m2 und eine Taverne mit einer Fläche von 27 m2 geplant sind 12 m2. Das Haus ist von zwei Seiten zugänglich. Der Garten verfügt über zwei große Grünflächen und Parkplätze für mehrere Autos. Zum Heizen und Kühlen sind Fußbodenheizung und Klimaanlage vorhanden, außerdem besteht die Möglichkeit der Beheizung mit festen Brennstoffen. Der Vorteil dieses Hauses ist, dass es in einem bebauten, ruhigen und sehr gepflegten Teil des Dorfes liegt. Der Preis bezieht sich auf die fertige Immobilie ohne Pool und Möbel. Nach den Wünschen des Kunden ist es möglich, ein Schwimmbad zu bauen. Die Bilder zeigen zwei Versionen des fertigen Gebäudes – mit Pool (gelbe Fassade) und ohne Pool (rote Fassade).
Bei allen unseren Angeboten sind die Preise identisch mit dem Direktkauf bei der Agentur/dem Entwickler in Kroatien, da wir der offizielle Vertreter dieser Agenturen auf dem tschechischen, slowakischen, deutschen und österreichischen Markt sind. Dies gilt ohne zusätzliche Zuschläge für deutschsprachige Dienstleistungen.
Sehr geehrte Kunden, die Besichtigung von Immobilien, die Mitteilung der Lage und andere detaillierte Informationen sind nur mit einem unterzeichneten Vermittlungsvertrag möglich, der die Grundlage für weitere Aktionen wie den Kauf einer Immobilie bildet. Alles steht im Einklang mit dem Gesetz über die Vermittlung beim Kauf von Immobilien. Der Käufer zahlt eine gesetzliche Vermittlungsprovision in Höhe von 3% (+ MwSt.) des vereinbarten Preises, und zwar nur im Falle des Kaufs der Immobilie. Sollte der Kauf nicht zustande kommen, ist der Vertrag für Sie nicht bindend und wird annulliert. Wenn Sie ernsthaft an der Immobilie interessiert sind, senden wir Ihnen den Vertrag auf Anfrage zu.
Wir werden Ihnen innerhalb von 24 Stunden antworten.
Wir bieten nur geprüfte Immobilien an.
Wir garantieren eine hohe Servicequalität.
Wir können Ihnen bei der Vermittlung von Unterkünften während der Besichtigungen helfen.
- Ich habe eine Immobilie aus dem Angebot ausgewählt
- Ich kontaktiere den Makler
- Ich unterschreibe einen Vertretungsvertrag - Details hier! (die Unterzeichnung des Vertrags ist gesetzlich vorgeschrieben)
- Ich richte eine OIB ein - Details hier (die Einrichtung ist gesetzlich vorgeschrieben)
- Besichtigungen vor Ort
- Unterzeichnung der Reservierung, des Kaufvertrags