ISTRIEN, TINJAN - Freistehendes Haus mit Charakter im Herzen Istriens
| Registrationsnummer | DN-45575 |
| Art des Angebots | Verkauf |
| Kategorie | Häuser |
| Bezirk | Istarska |
| Gemeindeteil | Tinjan |
| Preis | 198 000 € |
| Gesamtfläche | 82 m² |
| Bebaute Fläche und Hof | 109 m² |
| Gesamt bebaut fläche | 109 m² |
| Strom | |
| Wasser | |
| Heizung | ano |
| Energieintensität | X - Nicht ausgestellt |
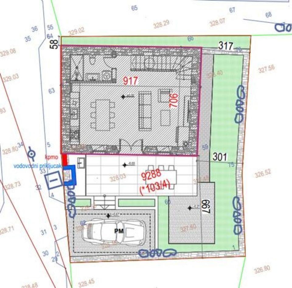
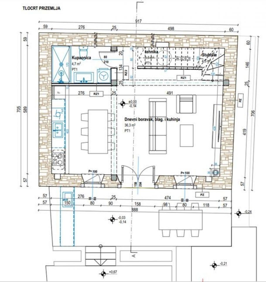
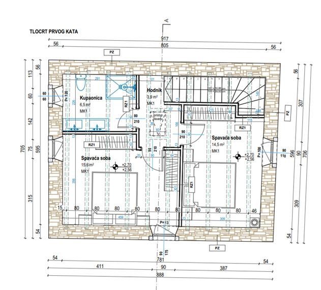
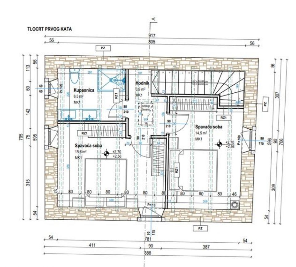
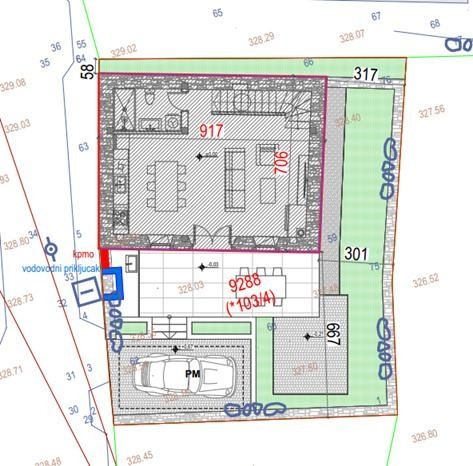
ISTRIEN, TINJAN – Ein freistehendes Haus mit Charakter im Herzen Istriens In einer ruhigen, grünen Wohngegend in der Gemeinde Tinjan befindet sich dieses architektonisch geplante Haus mit Charakter im Bau. Die Baugenehmigung liegt vor und der Baubeginn ist angemeldet. Dies ist eine außergewöhnliche Gelegenheit für Käufer, die ihr Haus nach ihren eigenen Wünschen gestalten möchten, ohne das Risiko und den langwierigen Genehmigungsprozess und die Rohbauarbeiten. Sie erwerben hier einen hochwertigen Bau und ein vollständig geplantes Projekt, das ein funktionales und modernes Wohnen ermöglicht. Das Gebäude ist statisch fertiggestellt und bereit für die Installationen und den Innenausbau. BAUARBEITEN ABGESCHLOSSEN (Der anspruchsvollste Teil ist abgeschlossen) *Gegossene Stahlbeton-Bodenplatte (AB) *Zwischendeckenkonstruktion aus Beton errichtet *Betontreppe eingebaut *Neue Holzdachkonstruktion *Dach komplett mit allen Schichten und abschließender Eindeckung mit „mediterranen“ Ziegeln *Trennwand für das Gäste-WC im Erdgeschoss errichtet *Neue Außenöffnungen (4) gemäß Projekt errichtet *Alte Steine an der Fassade angebracht, die dem Gebäude ein authentisch istrisches Aussehen verleihen Das Grundstück verfügt bereits über: -aktiven Wasseranschluss -Baustromanschluss Dies reduziert die zusätzlichen Kosten erheblich und beschleunigt den Baufortschritt. GEPLANTE RAUMAUFTEILUNG Die Raumaufteilung des Hauses wurde mit Fokus auf ein offenes Raumkonzept, Komfort und natürliches Licht entworfen. (Möglichkeit eines Eigentümerwechsels) Erdgeschoss -offene Küche mit Ess- und Wohnbereich, Gesamtfläche 36,3 m² -direkter Zugang zur Terrasse und geplanten Sommerküche -Badezimmer: 4,7 m² -Innentreppe zum Obergeschoss Obergeschoss -Flur: 3,9 m² -großzügiges Badezimmer: 6,5 m² -Schlafzimmer 1: 15,6 m² -Schlafzimmer 2: 14,5 m² Garage und Garten Die Immobilie eignet sich ideal als Familienhaus für ein ruhiges Leben in Istrien, als Ferienhaus mit authentischem istrischem Charme oder als Kapitalanlage zur touristischen Vermietung, die im istrischen Hinterland äußerst gefragt ist. Dank des bereits fertiggestellten Baus kann der neue Eigentümer die Materialien und den Stil anpassen und Garten, Terrasse und Sommerküche gestalten. LAGEVORTEILE Im grünen Herzen von Istrien, genauer gesagt Tinjan, bietet das, was heute am wertvollsten ist: Ruhe, Privatsphäre und Weite. Umgeben von unberührter Natur, ist die Region bekannt für ihre hervorragende Gastronomie, den istrischen Schinken, regionale Produkte, Agrotourismus und Weinstraßen, die die Geschichte des wahren Mittelmeers erzählen. Die Lage ist gleichermaßen ruhig und verkehrsgünstig gelegen: Pazin ist schnell zu erreichen, und Poreč sowie das Meer sind nur eine kurze Autofahrt entfernt. Istrien ist eine Region mit außergewöhnlicher Lebensqualität – sicher, gepflegt und langfristig attraktiv, mit stetiger Nachfrage nach Immobilien und stabilem Anlagewert. Wenn Sie auf der Suche nach einer soliden und sicheren Basis für Ihr Traumhaus oder einer klugen Investition sind, die Ihnen die Freiheit bietet, alles nach Ihren Wünschen zu gestalten, rufen Sie uns jetzt an. Diese Gelegenheit birgt Energie, Potenzial und Zukunftsperspektiven.
Bei allen unseren Angeboten sind die Preise identisch mit dem Direktkauf bei der Agentur/dem Entwickler in Kroatien, da wir der offizielle Vertreter dieser Agenturen auf dem tschechischen, slowakischen, deutschen und österreichischen Markt sind. Dies gilt ohne zusätzliche Zuschläge für deutschsprachige Dienstleistungen.
Sehr geehrte Kunden, die Besichtigung von Immobilien, die Mitteilung der Lage und andere detaillierte Informationen sind nur mit einem unterzeichneten Vermittlungsvertrag möglich, der die Grundlage für weitere Aktionen wie den Kauf einer Immobilie bildet. Alles steht im Einklang mit dem Gesetz über die Vermittlung beim Kauf von Immobilien. Der Käufer zahlt eine gesetzliche Vermittlungsprovision in Höhe von 3% (+ MwSt.) des vereinbarten Preises, und zwar nur im Falle des Kaufs der Immobilie. Sollte der Kauf nicht zustande kommen, ist der Vertrag für Sie nicht bindend und wird annulliert. Wenn Sie ernsthaft an der Immobilie interessiert sind, senden wir Ihnen den Vertrag auf Anfrage zu.
Wir werden Ihnen innerhalb von 24 Stunden antworten.
Wir bieten nur geprüfte Immobilien an.
Wir garantieren eine hohe Servicequalität.
Wir können Ihnen bei der Vermittlung von Unterkünften während der Besichtigungen helfen.
- Ich habe eine Immobilie aus dem Angebot ausgewählt
- Ich kontaktiere den Makler
- Ich unterschreibe einen Vertretungsvertrag - Details hier! (die Unterzeichnung des Vertrags ist gesetzlich vorgeschrieben)
- Ich richte eine OIB ein - Details hier (die Einrichtung ist gesetzlich vorgeschrieben)
- Besichtigungen vor Ort
- Unterzeichnung der Reservierung, des Kaufvertrags