ISTRIEN, TINJAN - Grundstück mit Baugenehmigung
| Registrationsnummer | DN-44153 |
| Art des Angebots | Verkauf |
| Kategorie | Bauland |
| Bezirk | Istarska |
| Gemeindeteil | Tinjan |
| Preis | 103 500 € |
| Preis pro m2 | 186 €/m² |
| Gesamtfläche | 554 m² |
| Entfernung vom meer | 22 000 m |
| Strom |
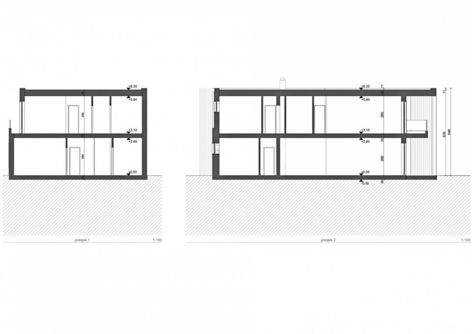
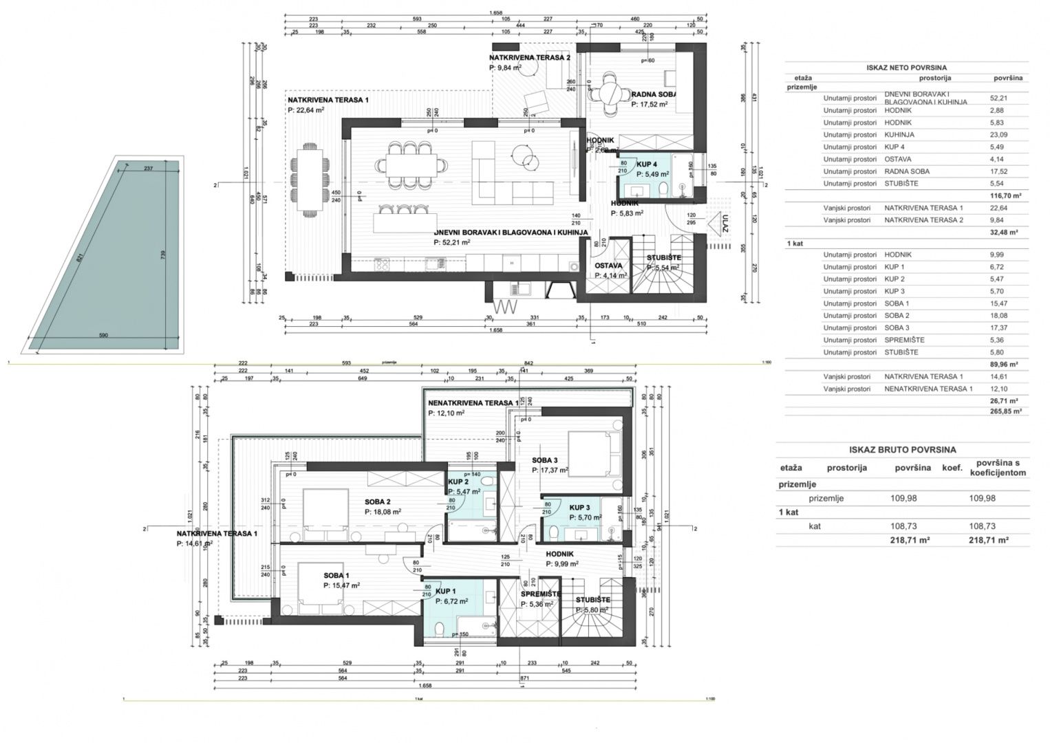
ISTRIEN, TINJAN – Grundstück mit Baugenehmigung Einst von Stadtmauern und Türmen umgeben, besticht Tinjan heute durch seinen ganz besonderen Charme, in dem Tradition und Geschichte lebendig sind. Die Stadt liegt oberhalb der immergrünen Draga, deren Schönheit man vom Aussichtspunkt Tinjan unterhalb der alten Ladonja bewundern kann. Die Gemeinde Tinjan umfasst eine Fläche von 53,94 km² und besteht aus acht Ortschaften. In einer ruhigen Gegend nahe Tinjan steht ein Grundstück mit Baugenehmigung zum Verkauf. Die Lage bietet das authentische Flair einer istrischen Kleinstadt: Ruhe und Abgeschiedenheit vom Alltag, aber gleichzeitig die Nähe zu den dynamischen Städten Istriens mit ihren vielfältigen Annehmlichkeiten. Das Katastergrundstück ist rechteckig und eben. Auf dem Grundstück befindet sich ein 25 m² großer Abstellraum, eine Klärgrube sowie Wasser- und Stromanschlüsse (Drehstromanschluss mit einer Anschlussleistung von 11 kW). Für das Grundstück liegt eine Baugenehmigung für ein Wohngebäude vor, dessen zurückhaltende Architektur die Umgebung nicht beeinträchtigt und eine harmonische Verbindung von Natur und moderner Architektur schafft. Es wurde als komfortables Einfamilienhaus mit einer Wohneinheit auf zwei Etagen konzipiert. Dank seiner idealen Lage, der optimalen Aufteilung, der einwandfreien Eigentumsverhältnisse und der vollständigen Dokumentation bietet dieses Grundstück eine hervorragende Gelegenheit, ein Familienhaus oder ein Ferienhaus zu errichten.
Bei allen unseren Angeboten sind die Preise identisch mit dem Direktkauf bei der Agentur/dem Entwickler in Kroatien, da wir der offizielle Vertreter dieser Agenturen auf dem tschechischen, slowakischen, deutschen und österreichischen Markt sind. Dies gilt ohne zusätzliche Zuschläge für deutschsprachige Dienstleistungen.
Sehr geehrte Kunden, die Besichtigung von Immobilien, die Mitteilung der Lage und andere detaillierte Informationen sind nur mit einem unterzeichneten Vermittlungsvertrag möglich, der die Grundlage für weitere Aktionen wie den Kauf einer Immobilie bildet. Alles steht im Einklang mit dem Gesetz über die Vermittlung beim Kauf von Immobilien. Der Käufer zahlt eine gesetzliche Vermittlungsprovision in Höhe von 3% (+ MwSt.) des vereinbarten Preises, und zwar nur im Falle des Kaufs der Immobilie. Sollte der Kauf nicht zustande kommen, ist der Vertrag für Sie nicht bindend und wird annulliert. Wenn Sie ernsthaft an der Immobilie interessiert sind, senden wir Ihnen den Vertrag auf Anfrage zu.
Wir werden Ihnen innerhalb von 24 Stunden antworten.
Wir bieten nur geprüfte Immobilien an.
Wir garantieren eine hohe Servicequalität.
Wir können Ihnen bei der Vermittlung von Unterkünften während der Besichtigungen helfen.
- Ich habe eine Immobilie aus dem Angebot ausgewählt
- Ich kontaktiere den Makler
- Ich unterschreibe einen Vertretungsvertrag - Details hier! (die Unterzeichnung des Vertrags ist gesetzlich vorgeschrieben)
- Ich richte eine OIB ein - Details hier (die Einrichtung ist gesetzlich vorgeschrieben)
- Besichtigungen vor Ort
- Unterzeichnung der Reservierung, des Kaufvertrags