ISTRIEN, UMAG - Umweltfreundliche Villa in Meeresnähe
| Registrationsnummer | DN-43672 |
| Art des Angebots | Verkauf |
| Kategorie | Häuser |
| Bezirk | Istarska |
| Gemeindeteil | Umag |
| Preis | 699 000 € |
| Gesamtfläche | 126 m² |
| Bebaute Fläche und Hof | 454 m² |
| Gesamt bebaut fläche | 454 m² |
| Entfernung vom meer | 1 500 m |
| Strom | |
| Wasser | |
| Abfall | |
| Klimaanlage | |
| Energieintensität | A - extrem wirtschaftlich |
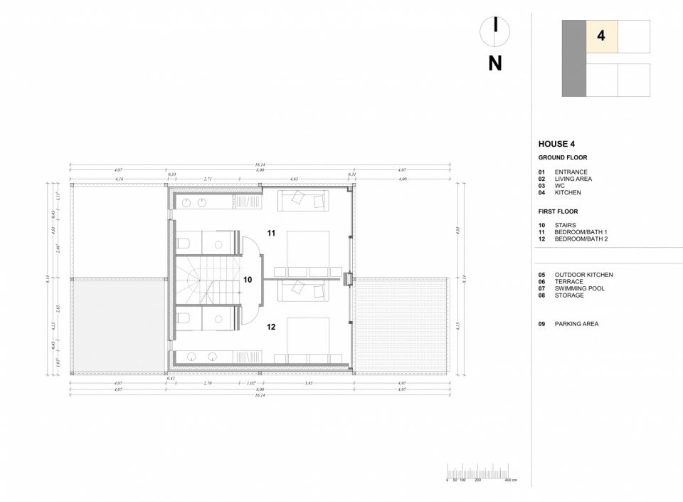
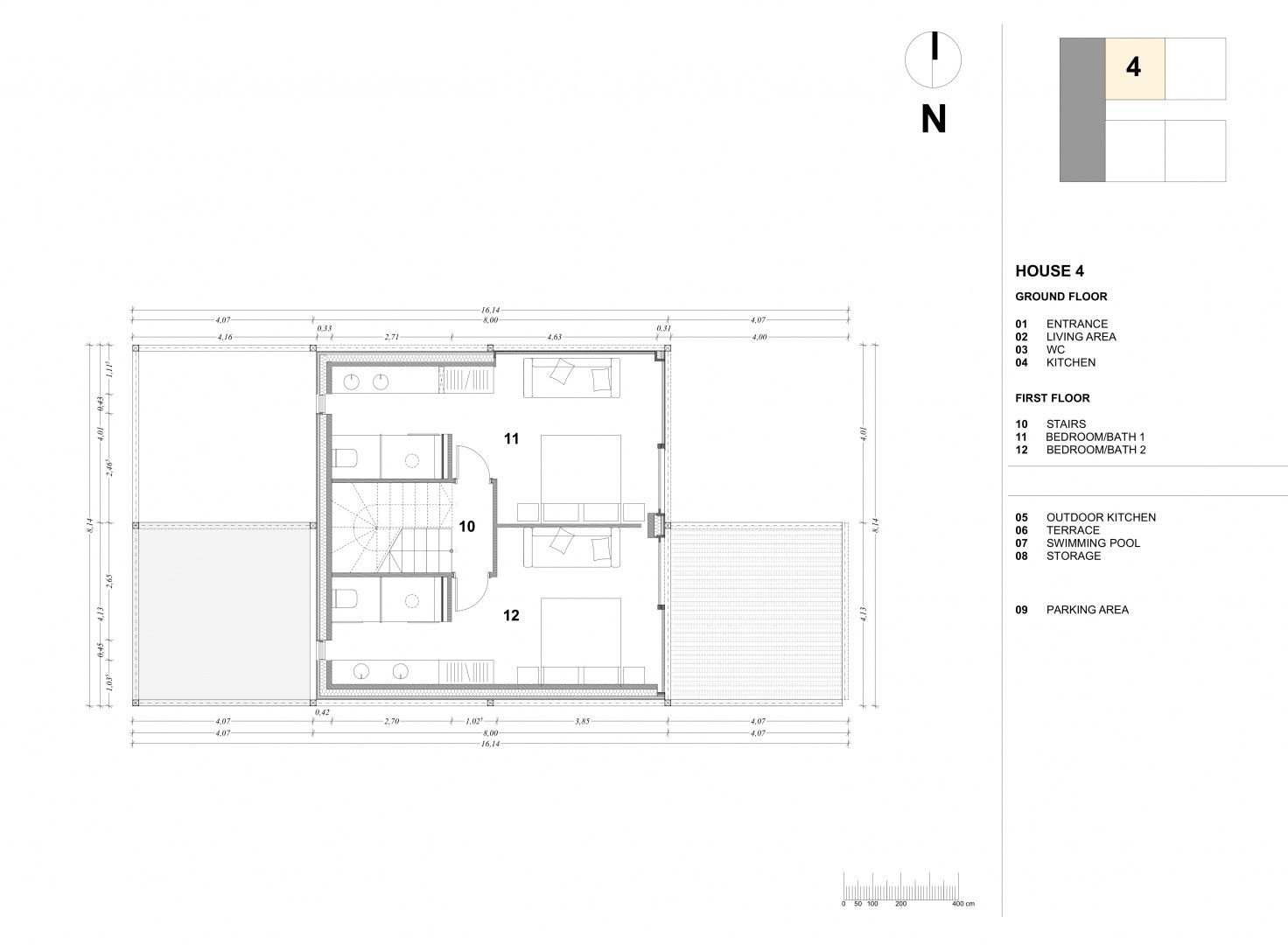
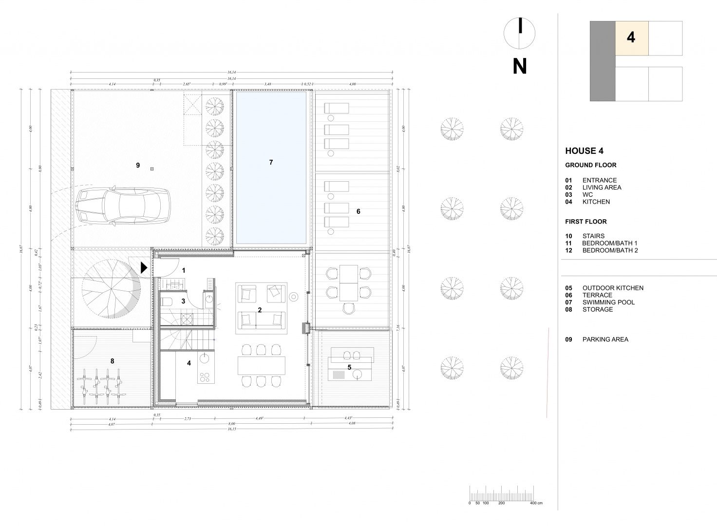
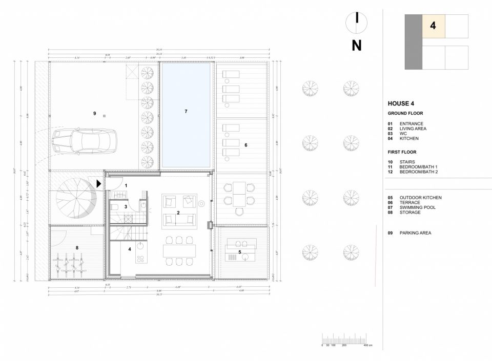
Istrien, Umag – Ökologische Villa in Meeresnähe Diese moderne Villa in ruhiger, grüner Lage unweit von Umag steht zum Verkauf. Sie ist ideal für Käufer, die Wert auf Privatsphäre, hochwertige Öko-Bauweise und die Nähe zum Meer legen. Der Flughafen Pula ist 45 Minuten, Triest 60 Minuten und Venedig sowie Treviso weniger als zwei Autostunden entfernt. Die Strände sind ca. 1500 Meter entfernt, und Parenzana, Weingüter, Olivenhaine, Restaurants sowie Wellness- und Golfanlagen befinden sich in unmittelbarer Nähe. Die Villa bietet eine Gesamtfläche von 454 Quadratmetern, davon 202 Quadratmeter überdachte Fläche. Die Wohnfläche beträgt 105 Quadratmeter, hinzu kommen 65 Quadratmeter überdachte Terrassen, 16 Quadratmeter überdachter Balkon und 16 Quadratmeter Fahrradabstellfläche. Der Außenbereich umfasst einen 150 Quadratmeter großen Privatgarten, einen 16 Quadratmeter großen Eingangsgarten, einen 22 Quadratmeter großen privaten Swimmingpool und zwei Parkplätze mit einer Gesamtfläche von 64 Quadratmetern. Die Villa wurde mit massivem iQwood errichtet, einem System, das Energieeffizienz, Stabilität, gute Feuchtigkeitsregulierung und ein angenehmes Raumklima das ganze Jahr über bietet. Diese umweltfreundliche Bauweise spricht Käufer an, die eine nachhaltige Lösung mit langfristigem Wert und niedrigen Betriebskosten suchen. Das Erdgeschoss besteht aus einem offenen Wohnbereich mit großen Glaswänden und direktem Zugang zur Terrasse, einer mit dem Esszimmer verbundenen Küche, einem Gäste-WC und einer Garderobe. Die Räume sind praktisch, hell und fließend in den Außenbereich gestaltet. Der Innenhof umfasst einen privaten Swimmingpool, eine überdachte Terrasse und eine überdachte Außenküche, die eine angenehme Nutzung des Raumes zu jeder Jahreszeit ermöglicht. Der private Garten bietet Ruhe und Privatsphäre, und der Fahrradabstellraum trägt dank der Nähe zu beliebten Radwegen zusätzlich zur Praktikabilität bei. Im Obergeschoss befinden sich zwei Schlafzimmer, jeweils mit eigenem Bad. Fußbodenheizung, Klimaanlage, elektrische Jalousien und große Glaswände sorgen für hohen Wohnkomfort. Eines der Zimmer hat Zugang zu einem überdachten Balkon, der zum Entspannen und Genießen des Ausblicks ins Grüne einlädt. Die Villa eignet sich ideal als Zweitwohnsitz, Familienrefugium oder Kapitalanlage mit hervorragendem Potenzial für die luxuriöse Ferienvermietung. Der private Pool, der Garten und die nachhaltige Bauweise heben sie zusätzlich vom Markt ab. Für weitere Informationen, Grundrisse, Visualisierungen und zur Vereinbarung eines Besichtigungstermins stellen wir Ihnen gerne Details auf Anfrage zur Verfügung. Solche Immobilien sind in der Regel schnell vergriffen.
Bei allen unseren Angeboten sind die Preise identisch mit dem Direktkauf bei der Agentur/dem Entwickler in Kroatien, da wir der offizielle Vertreter dieser Agenturen auf dem tschechischen, slowakischen, deutschen und österreichischen Markt sind. Dies gilt ohne zusätzliche Zuschläge für deutschsprachige Dienstleistungen.
Sehr geehrte Kunden, die Besichtigung von Immobilien, die Mitteilung der Lage und andere detaillierte Informationen sind nur mit einem unterzeichneten Vermittlungsvertrag möglich, der die Grundlage für weitere Aktionen wie den Kauf einer Immobilie bildet. Alles steht im Einklang mit dem Gesetz über die Vermittlung beim Kauf von Immobilien. Der Käufer zahlt eine gesetzliche Vermittlungsprovision in Höhe von 3% (+ MwSt.) des vereinbarten Preises, und zwar nur im Falle des Kaufs der Immobilie. Sollte der Kauf nicht zustande kommen, ist der Vertrag für Sie nicht bindend und wird annulliert. Wenn Sie ernsthaft an der Immobilie interessiert sind, senden wir Ihnen den Vertrag auf Anfrage zu.
Wir werden Ihnen innerhalb von 24 Stunden antworten.
Wir bieten nur geprüfte Immobilien an.
Wir garantieren eine hohe Servicequalität.
Wir können Ihnen bei der Vermittlung von Unterkünften während der Besichtigungen helfen.
- Ich habe eine Immobilie aus dem Angebot ausgewählt
- Ich kontaktiere den Makler
- Ich unterschreibe einen Vertretungsvertrag - Details hier! (die Unterzeichnung des Vertrags ist gesetzlich vorgeschrieben)
- Ich richte eine OIB ein - Details hier (die Einrichtung ist gesetzlich vorgeschrieben)
- Besichtigungen vor Ort
- Unterzeichnung der Reservierung, des Kaufvertrags