ISTRIEN, UMAG - Umweltfreundliche Villa in Meeresnähe
| Registrationsnummer | DN-43670 |
| Art des Angebots | Verkauf |
| Kategorie | Häuser |
| Bezirk | Istarska |
| Gemeindeteil | Umag |
| Preis | 699 000 € |
| Gesamtfläche | 126 m² |
| Bebaute Fläche und Hof | 472 m² |
| Gesamt bebaut fläche | 472 m² |
| Entfernung vom meer | 1 500 m |
| Strom | |
| Wasser | |
| Abfall | |
| Klimaanlage | |
| Energieintensität | A - extrem wirtschaftlich |
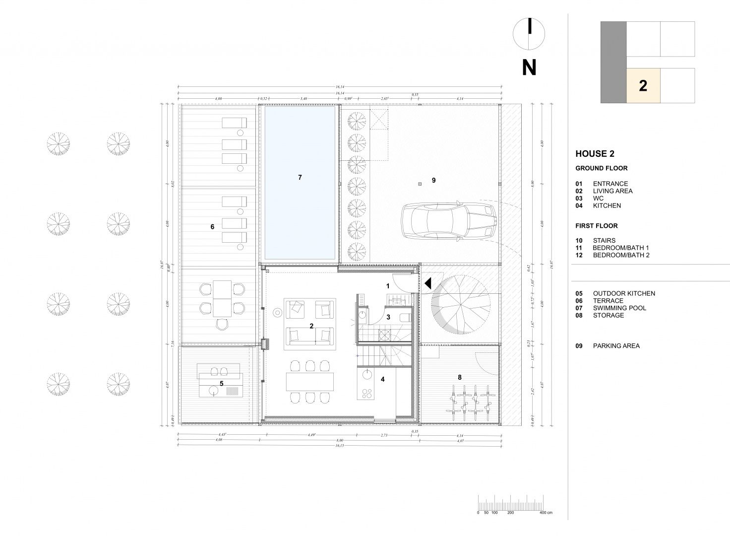
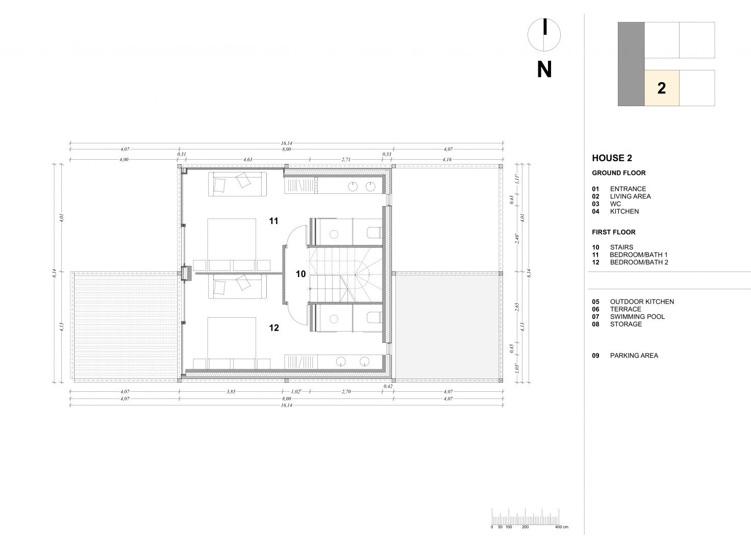
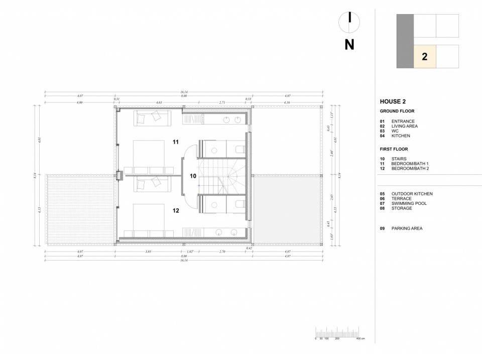
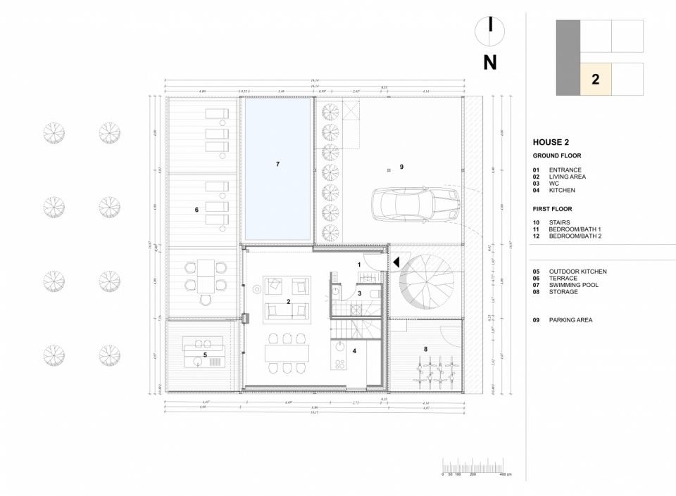
ISTRIEN, UMAG – Ökologische Villa in Meeresnähe Diese moderne Villa in ruhiger, grüner Lage unweit von Umag steht zum Verkauf. Sie ist ideal für Käufer, die Wert auf Privatsphäre, hochwertige Öko-Bauweise und die Nähe zum Meer legen. Der Flughafen Pula ist 45 Minuten, Triest 60 Minuten und Venedig sowie Treviso weniger als zwei Autostunden entfernt. Strände sind ca. 1500 Meter entfernt, und Parenzana, Weingüter, Olivenhaine, Restaurants sowie Wellness- und Golfanlagen sind bequem zu erreichen. Die Villa bietet eine Gesamtfläche von 472 Quadratmetern, davon 202 Quadratmeter überdachte Fläche. Die Wohnfläche beträgt 105 Quadratmeter. Zusätzlich gibt es 65 Quadratmeter überdachte Terrassen, 16 Quadratmeter überdachten Balkon und 16 Quadratmeter Fahrradabstellfläche. Der Außenbereich umfasst einen 206 Quadratmeter großen Privatgarten, einen 16 Quadratmeter großen Eingangsgarten, einen 22 Quadratmeter großen privaten Swimmingpool und zwei Parkplätze mit einer Gesamtfläche von 26 Quadratmetern. Die Villa besteht aus massivem iQwood, einem System, das für stabile Statik, Energieeffizienz, Feuchtigkeitsregulierung und ein angenehmes Raumklima das ganze Jahr über sorgt. Diese umweltfreundliche Bauweise erfreut sich auf dem europäischen Markt zunehmender Beliebtheit, gerade wegen ihrer Nachhaltigkeit, der geringeren Betriebskosten und des langfristigen Werterhalts. Das Erdgeschoss der Villa umfasst ein offenes Wohnzimmer mit großen Glaswänden und direktem Zugang zur Terrasse, eine mit dem Esszimmer verbundene Küche, einen Ankleideraum und ein Gäste-WC. Der Raum ist funktional gestaltet, lichtdurchflutet und bietet eine direkte Verbindung nach draußen. Im Innenhof befinden sich ein privater Swimmingpool, eine überdachte Terrasse und eine überdachte Außenküche, die die Nutzung des Bereichs in den wärmeren Monaten ermöglicht. Der private Garten bietet Ruhe und Privatsphäre, während ein Fahrradkeller praktischen Stauraum für Freizeitgeräte bietet. Im Obergeschoss befinden sich zwei Schlafzimmer, jeweils mit eigenem Bad. Fußbodenheizung, Klimaanlage, elektrische Jalousien und große Glaswände sorgen für hohen Wohnkomfort. Eines der Zimmer hat zudem Zugang zu einem überdachten Balkon. Diese Villa ist eine sichere Investition für alle, die ein modernes, nachhaltiges Zuhause in Istrien suchen – ob als Zweitwohnsitz, Familienresidenz oder Kapitalanlage mit hervorragendem Vermietungspotenzial. Der private Pool, der Garten und die hohe Bauqualität heben sie deutlich vom Markt ab. Weitere Informationen, Grundrisse, Visualisierungen und einen Besichtigungstermin erhalten Sie auf Anfrage. Solche Immobilien finden in der Regel schnell einen Käufer.
Bei allen unseren Angeboten sind die Preise identisch mit dem Direktkauf bei der Agentur/dem Entwickler in Kroatien, da wir der offizielle Vertreter dieser Agenturen auf dem tschechischen, slowakischen, deutschen und österreichischen Markt sind. Dies gilt ohne zusätzliche Zuschläge für deutschsprachige Dienstleistungen.
Sehr geehrte Kunden, die Besichtigung von Immobilien, die Mitteilung der Lage und andere detaillierte Informationen sind nur mit einem unterzeichneten Vermittlungsvertrag möglich, der die Grundlage für weitere Aktionen wie den Kauf einer Immobilie bildet. Alles steht im Einklang mit dem Gesetz über die Vermittlung beim Kauf von Immobilien. Der Käufer zahlt eine gesetzliche Vermittlungsprovision in Höhe von 3% (+ MwSt.) des vereinbarten Preises, und zwar nur im Falle des Kaufs der Immobilie. Sollte der Kauf nicht zustande kommen, ist der Vertrag für Sie nicht bindend und wird annulliert. Wenn Sie ernsthaft an der Immobilie interessiert sind, senden wir Ihnen den Vertrag auf Anfrage zu.
Wir werden Ihnen innerhalb von 24 Stunden antworten.
Wir bieten nur geprüfte Immobilien an.
Wir garantieren eine hohe Servicequalität.
Wir können Ihnen bei der Vermittlung von Unterkünften während der Besichtigungen helfen.
- Ich habe eine Immobilie aus dem Angebot ausgewählt
- Ich kontaktiere den Makler
- Ich unterschreibe einen Vertretungsvertrag - Details hier! (die Unterzeichnung des Vertrags ist gesetzlich vorgeschrieben)
- Ich richte eine OIB ein - Details hier (die Einrichtung ist gesetzlich vorgeschrieben)
- Besichtigungen vor Ort
- Unterzeichnung der Reservierung, des Kaufvertrags