KASTAV, RUBEŠI – Maisonette-Wohnung 150 m2, Wohnzimmer + 3 Schlafzimmer mit Meerblick und Garage + Fläche 200 m2 – SE
| Registrationsnummer | DN-40692 |
| Art des Angebots | Verkauf |
| Kategorie | Appartements |
| Bezirk | Primorsko-goranska |
| Gemeindeteil | Kastav |
| Preis | 565 000 € |
| Gesamtfläche | 150 m² |
| Wohnfläche (Wohnung) | 150 m² |
| Bebaute Fläche und Hof | 200 m² |
| Gesamt bebaut fläche | 200 m² |
| Strom | |
| Wasser | |
| Abfall | |
| Klimaanlage | |
| Energieintensität | A - extrem wirtschaftlich |
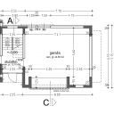
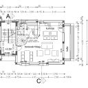
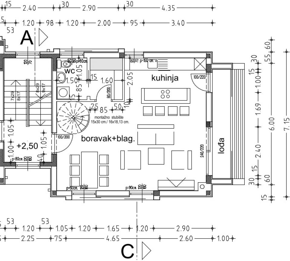
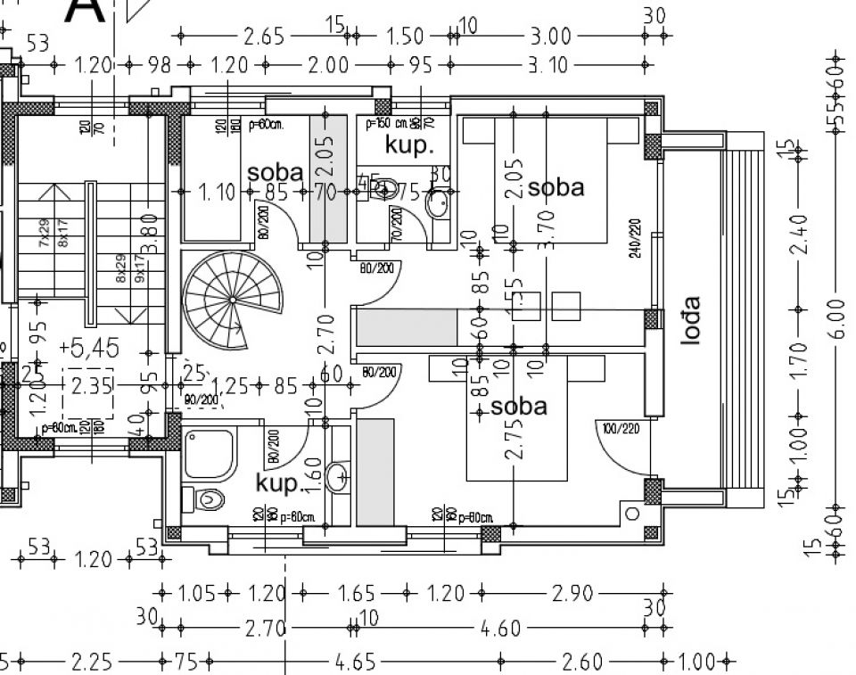
KASTAV, RUBEŠI – Maisonette-Wohnung 150 m², DB+3S mit Meerblick und Garage + Umgebung 200 m² – SO Diese Maisonette-Wohnung ist nach Süden ausgerichtet, was den ganzen Tag über viel natürliches Licht ermöglicht. Auf einem Hügel gelegen, bietet es einen atemberaubenden Blick auf die umliegende Landschaft und das Meer. WOHNFLÄCHE: 106 m² – 3 Schlafzimmer – 3 Badezimmer – 2 Etagen – Offenes Wohnzimmer – 2 Balkone GARAGE VON 44 m²: – Sicher und überdacht – Privater Parkplatz für 2 Autos – Ladegerät für Elektrofahrzeuge PRIVATER GARTEN: – Schöner Gartenbereich – Ideal für Outdoor-Aktivitäten – Nachbarschaft mit viel Grün HOCHWERTIGE MATERIALIEN: Diese Maisonette-Wohnung zeichnet sich durch hochwertige Bauweise unter Verwendung energieeffizienter Materialien aus, die die Nachhaltigkeit verbessern und einen hohen Standard der Verarbeitung im gesamten Gebäude gewährleisten. ENERGIEEFFIZIENT: - Hochwertige Isolierung - Wärmepumpe zum Heizen/Kühlen - Ladegerät für Elektroautos EINHALTUNG ENERGIEEFFIZIENTER BAUSTANDARDS: - Langlebig, sicher und energieeffizient - Ökologische Nachhaltigkeit und Einhaltung grüner Vorschriften EINZIGARTIGE LAGE: Die Maisonette-Wohnung befindet sich in einer familienfreundlichen, ruhigen und sicheren Nachbarschaft und bietet die perfekte Umgebung für Entspannung und Ruhe. Dank der einfachen Anbindung an Rijeka und Opatija können Sie das Beste aus beiden Welten genießen – die Stille zu Hause und das pulsierende Stadtleben nur wenige Autominuten entfernt. - Klimaanlage und Blick auf die Adria - Zugang zum Meer – 11 Autominuten zum Strand Die Wohnung ist hochwertig gebaut, alle verbauten Materialien entsprechen den höchsten Standards. – 10 cm Fassadenstärke – Fußbodenheizung – Wärmepumpen – hochwertige Aluminiumtischlerei. Die Wohnung ist derzeit in einem Zustand eingerichtet, in dem die Möglichkeit besteht, Innenböden und Fliesen in Badezimmern und Küche auszuwählen. Das Gebäude, in dem sich diese Wohnung befindet, besteht aus insgesamt 2 Wohneinheiten. Die Wohnung verfügt über einen angelegten Garten von ca. 200 m². Sauberes und ordentliches Grundstück. Sicherlich eine schöne Immobilie für ein luxuriöses Familienleben, aber auch als Investition in Form von Elitetourismus geeignet. EINZIGARTIGES IMMOBILIEN, DAS IHRE AUFMERKSAMKEIT UNBEDINGT WERT IST UND IN GROSSARTIGER LAGE LIEGT!!! KASTAV: Die Stadt Kastav mit der Region Kastav ist ein Synonym für reiche Geschichte, geografische Vielfalt, interessante Architektur und ein einzigartiges touristisches Angebot! Liegt „über dem Meer, wie ein Falke“, wie der Dichter sagt, ähnlich wie alle Küstenstädte und doch anders; mit einer Seele in einem steinernen Nest, weit genug für alle, die bereit sind, es in seiner Gesamtheit zu erleben. Wie viele Städte am Treffpunkt von Mitteleuropa und dem Mittelmeerraum hat Kastav eine reiche Tradition und eine erkennbare Identität. Im Laufe seiner Geschichte war Kastav das administrative, wirtschaftliche und kulturelle Zentrum Istriens und der Küstenregion; Es war und ist eine Wiege des Nationalbewusstseins und bewahrte seine Autonomie, Sprache und Bräuche, selbst als in der Umgebung Städte entstanden, die heute viel größer sind als es selbst.
Bei allen unseren Angeboten sind die Preise identisch mit dem Direktkauf bei der Agentur/dem Entwickler in Kroatien, da wir der offizielle Vertreter dieser Agenturen auf dem tschechischen, slowakischen, deutschen und österreichischen Markt sind. Dies gilt ohne zusätzliche Zuschläge für deutschsprachige Dienstleistungen.
Sehr geehrte Kunden, die Besichtigung von Immobilien, die Mitteilung der Lage und andere detaillierte Informationen sind nur mit einem unterzeichneten Vermittlungsvertrag möglich, der die Grundlage für weitere Aktionen wie den Kauf einer Immobilie bildet. Alles steht im Einklang mit dem Gesetz über die Vermittlung beim Kauf von Immobilien. Der Käufer zahlt eine gesetzliche Vermittlungsprovision in Höhe von 3% (+ MwSt.) des vereinbarten Preises, und zwar nur im Falle des Kaufs der Immobilie. Sollte der Kauf nicht zustande kommen, ist der Vertrag für Sie nicht bindend und wird annulliert. Wenn Sie ernsthaft an der Immobilie interessiert sind, senden wir Ihnen den Vertrag auf Anfrage zu.
Wir werden Ihnen innerhalb von 24 Stunden antworten.
Wir bieten nur geprüfte Immobilien an.
Wir garantieren eine hohe Servicequalität.
Wir können Ihnen bei der Vermittlung von Unterkünften während der Besichtigungen helfen.
- Ich habe eine Immobilie aus dem Angebot ausgewählt
- Ich kontaktiere den Makler
- Ich unterschreibe einen Vertretungsvertrag - Details hier! (die Unterzeichnung des Vertrags ist gesetzlich vorgeschrieben)
- Ich richte eine OIB ein - Details hier (die Einrichtung ist gesetzlich vorgeschrieben)
- Besichtigungen vor Ort
- Unterzeichnung der Reservierung, des Kaufvertrags