LABIN, SVETA MARINA – altes Haus mit Baugrundstück 435m2, mit Meerblick und Konzeptprojekt
| Registrationsnummer | DN-28928 |
| Art des Angebots | Verkauf |
| Kategorie | Häuser |
| Bezirk | Istarska |
| Gemeindeteil | Raša |
| Preis | 195 000 € |
| Gesamtfläche | 50 m² |
| Bebaute Fläche und Hof | 435 m² |
| Gesamt bebaut fläche | 435 m² |
| Strom | |
| Wasser |
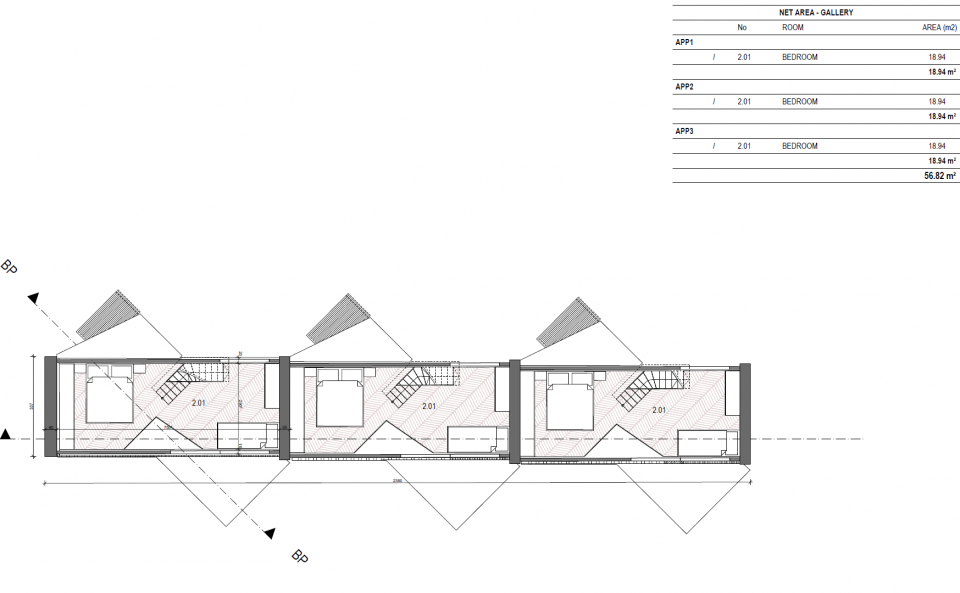
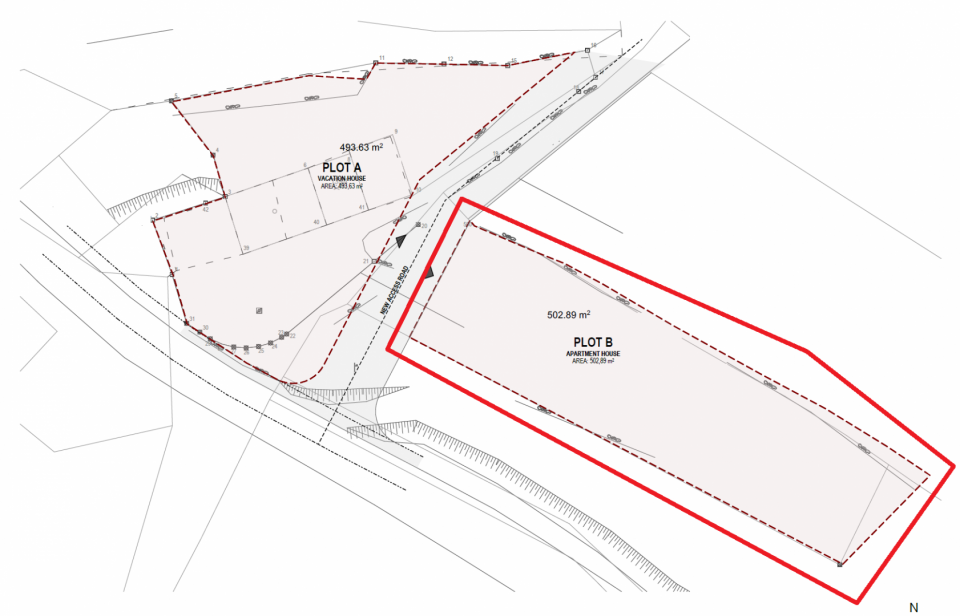
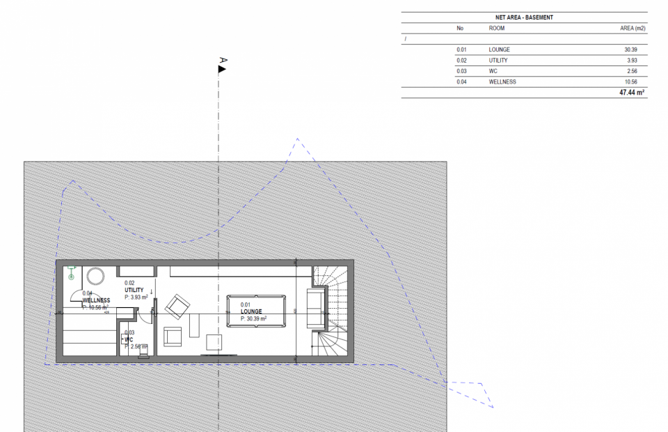
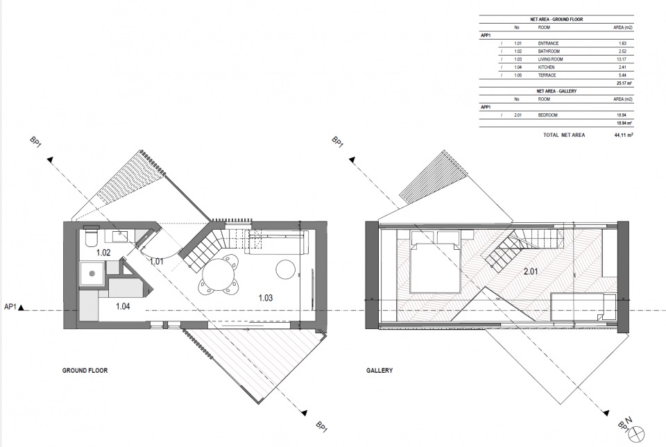
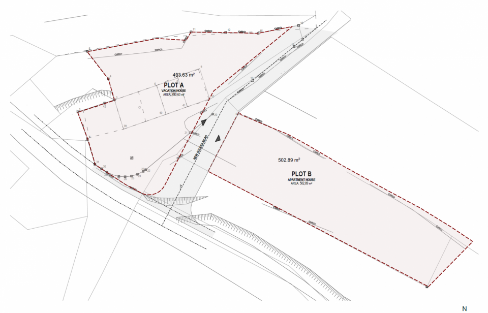
LABIN, SVETA MARINA – Baugrundstück von 435 m2 mit einem alten Haus, mit Blick auf das Meer und einem konzeptionellen Projekt. Das Baugrundstück hat einen Blick auf das Meer und eine südliche Ausrichtung. Das Baugrundstück liegt in der Natur und besteht laut Konzeptprojekt aus 2 Teilen: - einem Teil von ca. 435 m2 mit einem alten Haus, an dem ein Umbau geplant ist - Erweiterung des bestehenden Hauses mit einem Konzeptprojekt einer Villa mit Schwimmbad Pool Dieser Preis gilt nur für diesen Teil! Für diesen Teil von 435 m² müssen weitere 107 m² von der Gemeinde erworben werden, für die eine Kaufmöglichkeit besteht. Dieser Teil hätte dann eine Gesamtfläche von 542 m2, was für die Umsetzung des konzeptionellen Projekts ausreicht. - ein Teil von ca. 500 m2, auf dem laut Konzeptprojekt ein Gebäude mit 3 Wohnungen geplant ist. Dieser Teil kann separat erworben werden, der Preis allein für diesen Teil beträgt 145.000 €. Der Preis für beide Teile zusammen beträgt 310.000 €. Die Geländebeschaffenheit ist leicht abschüssig/völlig flach. Das Feld liegt in einer ruhigen und friedlichen Lage und direkt neben der asphaltierten Straße. Alle Versorgungseinrichtungen vor Ort. Sauberes und ordentliches Anwesen. Das Grundstück ist teilweise geräumt und für den Bau bereit. Das zukünftige Baugrundstück auf diesem Grundstück würde bereits vom Erdgeschoss aus einen Blick auf das Meer haben, aber vom ersten Stock aus hätte man einen offenen Panoramablick auf das Meer. Dieses Anwesen liegt 390 m Luftlinie vom Meer entfernt, bzw. 700 m mit dem Auto (ca. 1 Min.). Eine gute Gelegenheit für Investoren, die sich mit dem Bau von Wohnungen/Häusern zur Miete beschäftigen – Ferien mit Schwimmbad, aber auch für diejenigen, die ein Familienhaus in einer ruhigen, friedlichen Umgebung bauen möchten. IMMOBILIE IN TOLLER UND EINZIGARTIGER LAGE MIT GROSSEM POTENZIAL!!! LABIN Die Stadt Labin wurde auf einem 320 Meter hohen Hügel gegründet – dem Standort der römischen Siedlung Albona, deren Name erstmals im Jahr 285 n. Chr. erwähnt wurde. Früher war dieses Juwel für seine 400 Jahre alte Bergbautätigkeit bekannt, heute ist es eines der kulturellen und administrativen Zentren Istriens. Die charmante Stadt vereint kulturelle und historische Denkmäler und reiche Architektur bei verschiedenen kulturellen Veranstaltungen. Die Altstadt liegt auf dem Hügel, während der andere Teil der Stadt als Podlabin bekannt ist. Der Bereich der Altstadt ist als Stadt der Künstler bekannt, wo es zahlreiche Ateliers gibt, die man bei einem Spaziergang durch die Gassen sehen kann. Darüber hinaus können Sie das Stadtmuseum mit seiner archäologischen und ethnologischen Sammlung besuchen und das einzigartige und unvergessliche Erlebnis des Betretens eines Modellbergwerks erleben. Nur 5 Kilometer von Labin entfernt liegt Rabac – das wichtigste Touristenzentrum an der Ostküste Istriens, am Fuße eines Hügels gelegen, der es schützt und ein angenehmes mediterranes Klima genießt. Es ist mit einer atemberaubenden Umgebung, wunderschönen Kiesstränden und einem Blick auf die Kvarner-Bucht geschmückt. Im Laufe der Zeit entwickelte es sich zu einem bekannten Touristenzentrum mit bis zu 15 Hotels und Apartmentanlagen sowie mehreren Campingplätzen. Wenn Sie einen Blick auf das ungewöhnliche gastronomische Angebot werfen möchten, vergessen Sie nicht, eine Spezialität der Region Labinština zu probieren. Süße gekochte Donuts – süßer Teig mit Käse in Form von Ravioli in einer ungewöhnlichen Kombination mit Gulasch stellen sicherlich ein neues Erlebnis dar.
Bei allen unseren Angeboten sind die Preise identisch mit dem Direktkauf bei der Agentur/dem Entwickler in Kroatien, da wir der offizielle Vertreter dieser Agenturen auf dem tschechischen, slowakischen, deutschen und österreichischen Markt sind. Dies gilt ohne zusätzliche Zuschläge für deutschsprachige Dienstleistungen.
Sehr geehrte Kunden, die Besichtigung von Immobilien, die Mitteilung der Lage und andere detaillierte Informationen sind nur mit einem unterzeichneten Vermittlungsvertrag möglich, der die Grundlage für weitere Aktionen wie den Kauf einer Immobilie bildet. Alles steht im Einklang mit dem Gesetz über die Vermittlung beim Kauf von Immobilien. Der Käufer zahlt eine gesetzliche Vermittlungsprovision in Höhe von 3% (+ MwSt.) des vereinbarten Preises, und zwar nur im Falle des Kaufs der Immobilie. Sollte der Kauf nicht zustande kommen, ist der Vertrag für Sie nicht bindend und wird annulliert. Wenn Sie ernsthaft an der Immobilie interessiert sind, senden wir Ihnen den Vertrag auf Anfrage zu.
Wir werden Ihnen innerhalb von 24 Stunden antworten.
Wir bieten nur geprüfte Immobilien an.
Wir garantieren eine hohe Servicequalität.
Wir können Ihnen bei der Vermittlung von Unterkünften während der Besichtigungen helfen.
- Ich habe eine Immobilie aus dem Angebot ausgewählt
- Ich kontaktiere den Makler
- Ich unterschreibe einen Vertretungsvertrag - Details hier! (die Unterzeichnung des Vertrags ist gesetzlich vorgeschrieben)
- Ich richte eine OIB ein - Details hier (die Einrichtung ist gesetzlich vorgeschrieben)
- Besichtigungen vor Ort
- Unterzeichnung der Reservierung, des Kaufvertrags