MATULJI, JURDANI, PERMANI - Wohnung 68m2 + Galerie 31m2, 2. Stock 3 Schlafzimmer + Wohnzimmer
| Registrationsnummer | DN-37276 |
| Art des Angebots | Verkauf |
| Kategorie | Appartements |
| Bezirk | Primorsko-goranska |
| Gemeindeteil | Matulji |
| Preis | 255 000 € |
| Gesamtfläche | 99 m² |
| Wohnfläche (Wohnung) | 99 m² |
| Strom | |
| Wasser | |
| Abfall |
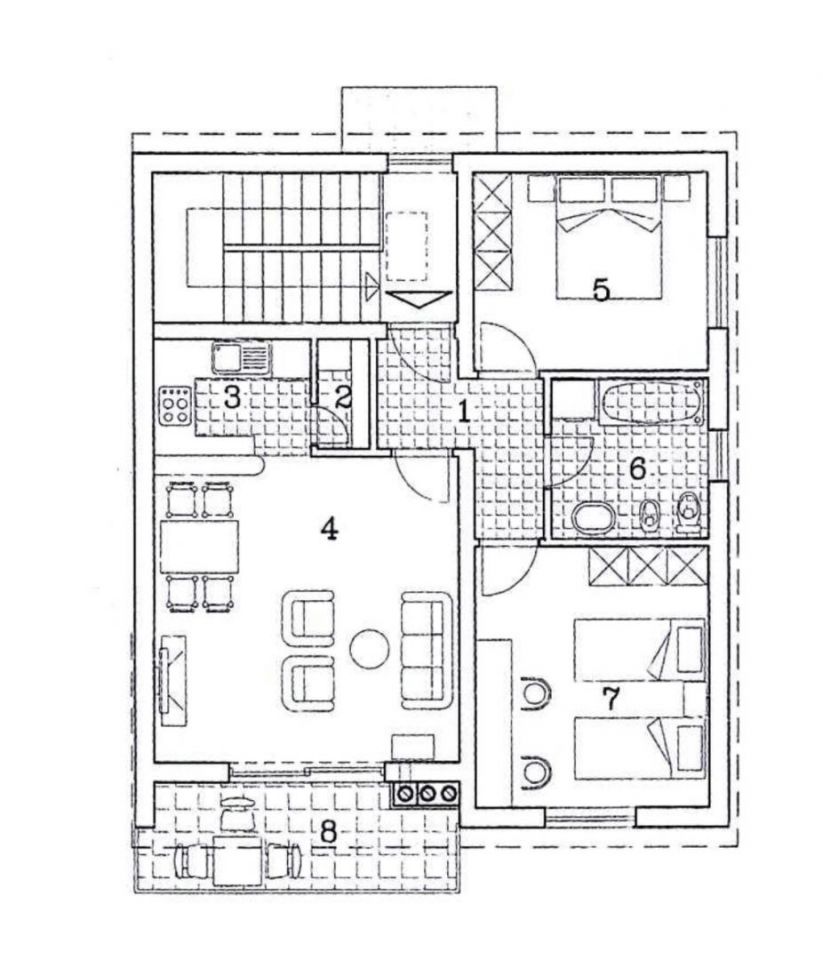
MATULJI, JURDANI, PERMANI – Wohnung 68 m² + Galerie 31 m², 2. Stock, 3 Schlafzimmer + Wohnzimmer Wohnung im zweiten Stock bestehend aus Flur, Wohnzimmer, Esszimmer, 3 Schlafzimmern, Badezimmer, Abstellraum und Terrasse. Die Wohnung erstreckt sich über zwei Etagen, die durch eine Innentreppe verbunden sind. Der obere Raum befindet sich eigentlich im Dachgeschoss und kann als drittes Schlafzimmer oder nach Wunsch eines potenziellen Käufers genutzt werden. Die Wohnung befindet sich in einem Doppelhaus mit insgesamt 3 Wohneinheiten. Zur Wohnung gehören 2 Außenstellplätze. Hervorragende Infrastruktur im Umkreis von 250 bis 1,5 km: Ausfahrt/Einfahrt zur Umgehungsstraße, Busbahnhof, Post, Bank, Sportzentrum, Klinik, Apotheke, Restaurant, Schule, Kindergarten, Einkaufszentrum, Tankstelle. Der Preis beinhaltet die Mehrwertsteuer, sodass der zukünftige Käufer beim Kauf der Immobilie keine Steuern zahlt. IMMOBILIEN ZUM TOPPREIS!!!
Bei allen unseren Angeboten sind die Preise identisch mit dem Direktkauf bei der Agentur/dem Entwickler in Kroatien, da wir der offizielle Vertreter dieser Agenturen auf dem tschechischen, slowakischen, deutschen und österreichischen Markt sind. Dies gilt ohne zusätzliche Zuschläge für deutschsprachige Dienstleistungen.
Sehr geehrte Kunden, die Besichtigung von Immobilien, die Mitteilung der Lage und andere detaillierte Informationen sind nur mit einem unterzeichneten Vermittlungsvertrag möglich, der die Grundlage für weitere Aktionen wie den Kauf einer Immobilie bildet. Alles steht im Einklang mit dem Gesetz über die Vermittlung beim Kauf von Immobilien. Der Käufer zahlt eine gesetzliche Vermittlungsprovision in Höhe von 3% (+ MwSt.) des vereinbarten Preises, und zwar nur im Falle des Kaufs der Immobilie. Sollte der Kauf nicht zustande kommen, ist der Vertrag für Sie nicht bindend und wird annulliert. Wenn Sie ernsthaft an der Immobilie interessiert sind, senden wir Ihnen den Vertrag auf Anfrage zu.
Wir werden Ihnen innerhalb von 24 Stunden antworten.
Wir bieten nur geprüfte Immobilien an.
Wir garantieren eine hohe Servicequalität.
Wir können Ihnen bei der Vermittlung von Unterkünften während der Besichtigungen helfen.
- Ich habe eine Immobilie aus dem Angebot ausgewählt
- Ich kontaktiere den Makler
- Ich unterschreibe einen Vertretungsvertrag - Details hier! (die Unterzeichnung des Vertrags ist gesetzlich vorgeschrieben)
- Ich richte eine OIB ein - Details hier (die Einrichtung ist gesetzlich vorgeschrieben)
- Besichtigungen vor Ort
- Unterzeichnung der Reservierung, des Kaufvertrags