OPATIJA, BREGI – Baugrundstück mit Meerblick und BAUGENEHMIGUNG für eine Stadtvilla mit Swimmingpool!!! GELEGENHEIT!
| Registrationsnummer | DN-37050 |
| Art des Angebots | Verkauf |
| Kategorie | Bauland |
| Bezirk | Primorsko-goranska |
| Gemeindeteil | Matulji |
| Preis | 100 000 € |
| Preis pro m2 | 72 €/m² |
| Gesamtfläche | 1 383 m² |
| Entfernung vom meer | 1 850 m |
| Strom | |
| Wasser |
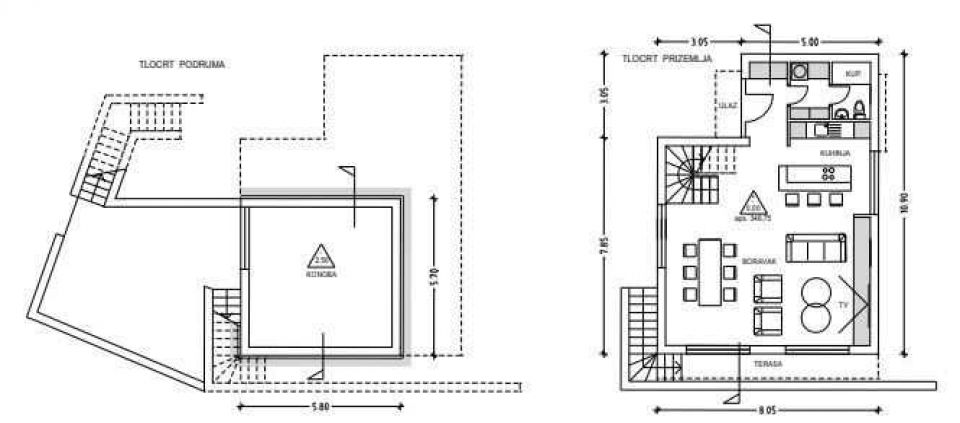
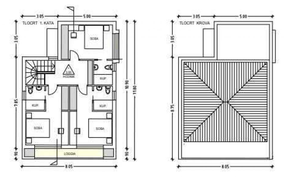
OPATIJA, BREGI - Baugrundstück mit Meerblick und Standortgenehmigung! GELEGENHEIT! Baugrundstück mit Meerblick von 1.383 m2 mit gültiger Standortgenehmigung und dem Hauptprojekt für eine Stadtvilla mit Swimmingpool, für das eine Baugenehmigung eingereicht wurde. Das Feld liegt auf einem Hügel. Das Feld liegt in ruhiger und friedlicher Lage direkt neben der Asphaltstraße. Alle Versorgungseinrichtungen vor Ort. Sauberes und ordentliches Anwesen. Das Grundstück ist geräumt und zum Bau bereit. Eine gute Gelegenheit für Investoren, die sich mit dem Bau von Mietwohnungen/-häusern mit Swimmingpool beschäftigen, aber auch für diejenigen, die in einer ruhigen und friedlichen Umgebung ein Ferienhaus mit Swimmingpool oder ein Einfamilienhaus bauen möchten. Dieses Anwesen liegt ca. 1,85 km Luftlinie vom Meer entfernt. IMMOBILIE IN TOLLER UND EINZIGARTIGER LAGE MIT GROSSEM POTENZIAL! Auf jeden Fall eine Immobilie für das Familienleben, aber auch als Investition in Form von Tourismus geeignet. Opatija: Opatija, eine wunderschöne Küstenstadt an der Adria, ist ein beliebtes Touristenziel für Touristen aus aller Welt. Die Stadt ist von wunderschöner Natur umgeben und liegt am Fuße des Berges Učka. Immobilien in Opatija bieten einen unbezahlbaren Blick auf das Meer und die umliegenden Inseln Krk und Cres. Opatija ist umgeben von charmanten Kleinstädten mit alten Häusern in engen, geschichtsträchtigen Gassen. Die Straßen der Stadt Opatija bestehen aus Anwesen, die durch ihre besondere Architektur und Villen aus der Habsburgerzeit hervorstechen. Eine große Auswahl an Stränden, kristallklares Meer und verschiedene touristische Dienstleistungen sind Schlüsselfaktoren, die Opatija zu einem perfekten Reiseziel machen, das von den Nachbarländern als ausgezeichnete Investitionswahl anerkannt wird. Die Immobilienpreise in dieser Gegend steigen, die Mietauslastung ist ausgezeichnet, was zu einer Kapitalrendite von 5 bis 10 % geführt hat und ausländische Investoren anzieht.
Bei allen unseren Angeboten sind die Preise identisch mit dem Direktkauf bei der Agentur/dem Entwickler in Kroatien, da wir der offizielle Vertreter dieser Agenturen auf dem tschechischen, slowakischen, deutschen und österreichischen Markt sind. Dies gilt ohne zusätzliche Zuschläge für deutschsprachige Dienstleistungen.
Sehr geehrte Kunden, die Besichtigung von Immobilien, die Mitteilung der Lage und andere detaillierte Informationen sind nur mit einem unterzeichneten Vermittlungsvertrag möglich, der die Grundlage für weitere Aktionen wie den Kauf einer Immobilie bildet. Alles steht im Einklang mit dem Gesetz über die Vermittlung beim Kauf von Immobilien. Der Käufer zahlt eine gesetzliche Vermittlungsprovision in Höhe von 3% (+ MwSt.) des vereinbarten Preises, und zwar nur im Falle des Kaufs der Immobilie. Sollte der Kauf nicht zustande kommen, ist der Vertrag für Sie nicht bindend und wird annulliert. Wenn Sie ernsthaft an der Immobilie interessiert sind, senden wir Ihnen den Vertrag auf Anfrage zu.
Wir werden Ihnen innerhalb von 24 Stunden antworten.
Wir bieten nur geprüfte Immobilien an.
Wir garantieren eine hohe Servicequalität.
Wir können Ihnen bei der Vermittlung von Unterkünften während der Besichtigungen helfen.
- Ich habe eine Immobilie aus dem Angebot ausgewählt
- Ich kontaktiere den Makler
- Ich unterschreibe einen Vertretungsvertrag - Details hier! (die Unterzeichnung des Vertrags ist gesetzlich vorgeschrieben)
- Ich richte eine OIB ein - Details hier (die Einrichtung ist gesetzlich vorgeschrieben)
- Besichtigungen vor Ort
- Unterzeichnung der Reservierung, des Kaufvertrags