OPATIJA, IČIĆI – Baugrundstück für Villa mit Pool in der Nähe von Opatija mit Baugenehmigung, Meerblick
| Registrationsnummer | DN-25517 |
| Art des Angebots | Verkauf |
| Kategorie | Bauland |
| Bezirk | Primorsko-goranska |
| Gemeindeteil | Opatija - Okolica |
| Preis | 320 000 € |
| Preis pro m2 | 492 €/m² |
| Gesamtfläche | 650 m² |
| Entfernung vom meer | 1 800 m |
| Strom | |
| Wasser |
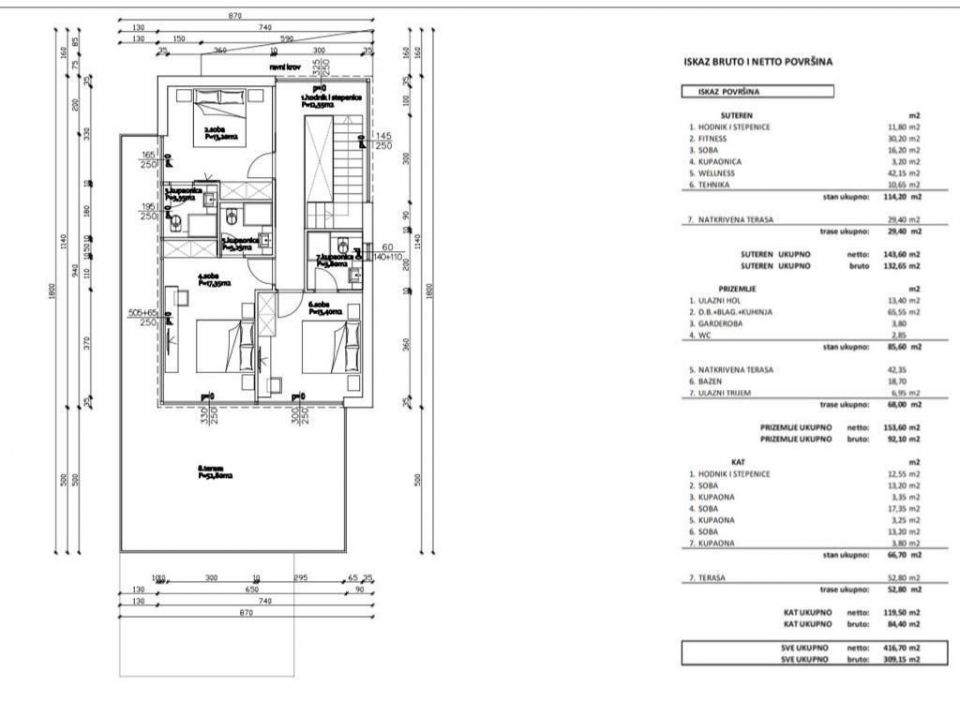
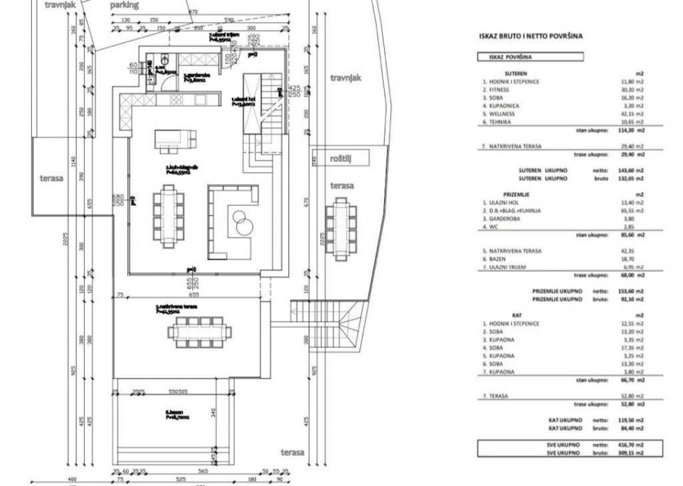
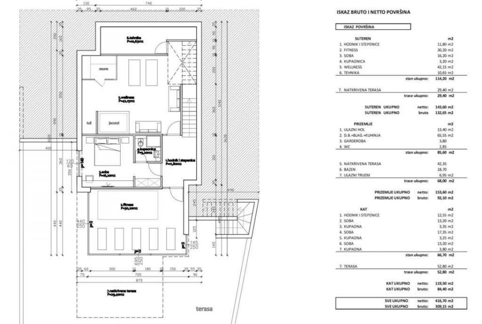
OPATIJA, IČIĆI – Baugrundstück für eine Villa in der Nähe von Opatija mit Baugenehmigung, Meerblick Wir vermitteln die Möglichkeit, ein schönes Grundstück für den Bau eines Hauses in der Nähe von Opatija zu kaufen. Es handelt sich um ein Baugrundstück von 650 m² mit einer Baugenehmigung für eine moderne Villa von 417 m² mit eigenem Pool. Das Baugrundstück liegt in einer Privatstraße mit einer äußerst hochwertigen Nachbarschaft, nur 3 Autominuten vom Strand Ičići entfernt. Die Straße ist vom Grün des Učka-Gebirges umgeben und bietet einen wunderschönen Panoramablick auf das Meer. Dem Projekt zufolge wird die zukünftige Villa aus einem Keller mit Wellnessbereich und Zugang zu einem eigenen Swimmingpool, einem großen offenen Erdgeschoss und einem ersten Stock mit Schlafzimmern bestehen. (INSGESAMT 4 SCHLAFZIMMER, 4 BADEZIMMER + 1 TOILETTE!) Die oben erwähnte Aussicht ist fantastisch und die hohe Lage garantiert die Aussicht für immer. Das Feld verfügt über Strom- und Wasseranschluss und der Bau kann sofort beginnen. Wenige Meter vom Grundstück entfernt beginnt die landwirtschaftliche Zone, in der es keine Bebauung gibt und so eine friedliche Umgebung gewährleistet ist. Die Fahrt zum Meer beträgt 1,8 km und die 900 Meter lange Abfahrt (auch mit dem Flugzeug) dauert etwa 10 Minuten zu Fuß. Fantastische Gelegenheit, eine private Villa mit Swimmingpool in Ičići, dem schönsten Ort neben Opatija, zu bauen.
Bei allen unseren Angeboten sind die Preise identisch mit dem Direktkauf bei der Agentur/dem Entwickler in Kroatien, da wir der offizielle Vertreter dieser Agenturen auf dem tschechischen, slowakischen, deutschen und österreichischen Markt sind. Dies gilt ohne zusätzliche Zuschläge für deutschsprachige Dienstleistungen.
Sehr geehrte Kunden, die Besichtigung von Immobilien, die Mitteilung der Lage und andere detaillierte Informationen sind nur mit einem unterzeichneten Vermittlungsvertrag möglich, der die Grundlage für weitere Aktionen wie den Kauf einer Immobilie bildet. Alles steht im Einklang mit dem Gesetz über die Vermittlung beim Kauf von Immobilien. Der Käufer zahlt eine gesetzliche Vermittlungsprovision in Höhe von 3% (+ MwSt.) des vereinbarten Preises, und zwar nur im Falle des Kaufs der Immobilie. Sollte der Kauf nicht zustande kommen, ist der Vertrag für Sie nicht bindend und wird annulliert. Wenn Sie ernsthaft an der Immobilie interessiert sind, senden wir Ihnen den Vertrag auf Anfrage zu.
Wir werden Ihnen innerhalb von 24 Stunden antworten.
Wir bieten nur geprüfte Immobilien an.
Wir garantieren eine hohe Servicequalität.
Wir können Ihnen bei der Vermittlung von Unterkünften während der Besichtigungen helfen.
- Ich habe eine Immobilie aus dem Angebot ausgewählt
- Ich kontaktiere den Makler
- Ich unterschreibe einen Vertretungsvertrag - Details hier! (die Unterzeichnung des Vertrags ist gesetzlich vorgeschrieben)
- Ich richte eine OIB ein - Details hier (die Einrichtung ist gesetzlich vorgeschrieben)
- Besichtigungen vor Ort
- Unterzeichnung der Reservierung, des Kaufvertrags