OPATIJA, LOVRAN – Luxus-Penthouse in einem Neubau mit Swimmingpool, Aufzug und Dachterrasse
| Registrationsnummer | DN-45693 |
| Art des Angebots | Verkauf |
| Kategorie | Appartements |
| Bezirk | Primorsko-goranska |
| Gemeindeteil | Opatija - Okolica |
| Preis | 756 400 € |
| Gesamtfläche | 122 m² |
| Wohnfläche (Wohnung) | 122 m² |
| Entfernung vom meer | 1 000 m |
| Strom | |
| Wasser | |
| Abfall | |
| Klimaanlage | |
| Energieintensität | A - extrem wirtschaftlich |
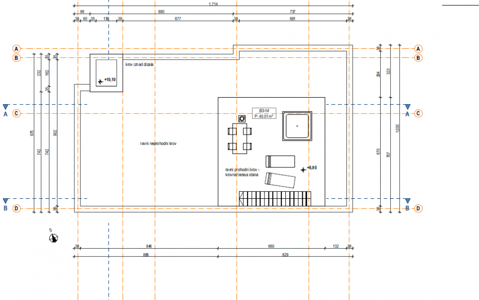
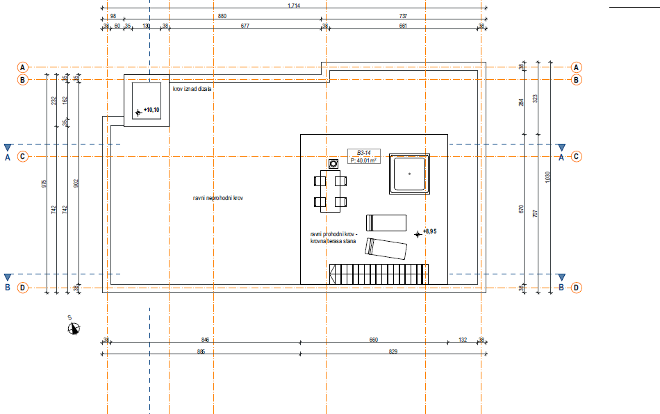
OPATIJA, OPRIĆ – Luxus-Penthouse in einem Neubau mit Pool, Aufzug und Dachterrasse DUX präsentiert Ihnen eine außergewöhnliche Gelegenheit! Dieses einzigartige Penthouse repräsentiert die Spitze des Projekts und ist ideal für Käufer, die einen besonderen Wohnraum mit zusätzlichem Luxus suchen. Es befindet sich in einer ruhigen Sackgasse und bietet absolute Ruhe und Privatsphäre sowie einen wunderschönen Meerblick in einem exzellenten Wohnumfeld. Die Wohnung liegt in einem elegant gestalteten Haus mit drei Wohneinheiten, wobei jede Etage eine separate Wohnung beherbergt. Sie erreichen das Meer in nur 7 Gehminuten, und mit dem Auto sind Sie in zwei Minuten am Strand oder im Zentrum von Lovran. Die Wohnung ist funktional gestaltet und legt Wert auf einen großzügigen, offenen Wohnbereich und einen klar abgetrennten Schlafbereich. Sie ist lichtdurchflutet und optimal auf den Raum abgestimmt. Penthouse-Grundriss: - Eingang - Flur - Wohnzimmer mit Küche und Essbereich - zwei Schlafzimmer - zwei Badezimmer - Waschküche/Technikraum - Speisekammer - Ankleidezimmer - Abstellraum Die Dachterrasse verleiht der Immobilie einen besonderen Wert und bietet zukünftigen Eigentümern die Möglichkeit, sich eine private Oase zu schaffen. Gegen einen Aufpreis kann der Käufer einen eigenen Pool oder Whirlpool auf der Terrasse installieren lassen und das Penthouse so in eine wahre Luxusoase unter freiem Himmel verwandeln. Zum Penthouse gehört ein Parkplatz, und die Eigentümer haben Zugang zu einem Gemeinschaftspool und einer Sonnenterrasse im angelegten Garten. Die Innenausstattung besticht durch hochwertige Holzoptik, Fußbodenheizung in allen Räumen und einen Kamin, der dem Raum zusätzliche Eleganz und Wärme verleiht. Das Gebäude ist mit einem Aufzug ausgestattet, der maximalen Wohnkomfort gewährleistet. Die Investoren kooperieren mit einem renommierten Immobilienverwaltungsunternehmen für touristische Vermietung. Dadurch können zukünftige Eigentümer das Penthouse gemeinsam an Touristen vermieten und eine attraktive Rendite erzielen. Das Projekt umfasst zukünftig exklusive Residenzen mit Swimmingpools und wunderschönen Gärten. Dies macht die Immobilie zu einer seltenen und wertvollen Gelegenheit auf dem Markt. Dieses Penthouse vereint Luxus, Privatsphäre und moderne Architektur in einer der begehrtesten Lagen der Kvarner-Region. Für eine Besichtigung rufen Sie den Makler gerne an – eine Beratung auf Deutsch ist möglich.
Bei allen unseren Angeboten sind die Preise identisch mit dem Direktkauf bei der Agentur/dem Entwickler in Kroatien, da wir der offizielle Vertreter dieser Agenturen auf dem tschechischen, slowakischen, deutschen und österreichischen Markt sind. Dies gilt ohne zusätzliche Zuschläge für deutschsprachige Dienstleistungen.
Sehr geehrte Kunden, die Besichtigung von Immobilien, die Mitteilung der Lage und andere detaillierte Informationen sind nur mit einem unterzeichneten Vermittlungsvertrag möglich, der die Grundlage für weitere Aktionen wie den Kauf einer Immobilie bildet. Alles steht im Einklang mit dem Gesetz über die Vermittlung beim Kauf von Immobilien. Der Käufer zahlt eine gesetzliche Vermittlungsprovision in Höhe von 3% (+ MwSt.) des vereinbarten Preises, und zwar nur im Falle des Kaufs der Immobilie. Sollte der Kauf nicht zustande kommen, ist der Vertrag für Sie nicht bindend und wird annulliert. Wenn Sie ernsthaft an der Immobilie interessiert sind, senden wir Ihnen den Vertrag auf Anfrage zu.
Wir werden Ihnen innerhalb von 24 Stunden antworten.
Wir bieten nur geprüfte Immobilien an.
Wir garantieren eine hohe Servicequalität.
Wir können Ihnen bei der Vermittlung von Unterkünften während der Besichtigungen helfen.
- Ich habe eine Immobilie aus dem Angebot ausgewählt
- Ich kontaktiere den Makler
- Ich unterschreibe einen Vertretungsvertrag - Details hier! (die Unterzeichnung des Vertrags ist gesetzlich vorgeschrieben)
- Ich richte eine OIB ein - Details hier (die Einrichtung ist gesetzlich vorgeschrieben)
- Besichtigungen vor Ort
- Unterzeichnung der Reservierung, des Kaufvertrags