OPATIJA, MEDVEJA – Villa mit herrlichem Blick auf die Bucht
| Registrationsnummer | DN-41408 |
| Art des Angebots | Verkauf |
| Kategorie | Häuser |
| Bezirk | Primorsko-goranska |
| Gemeindeteil | Lovran |
| Preis | 599 000 € |
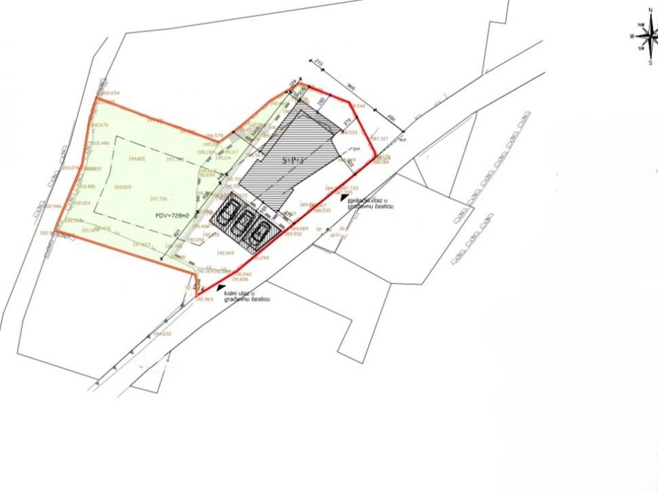
| Gesamtfläche | 210 m² |
| Bebaute Fläche und Hof | 600 m² |
| Gesamt bebaut fläche | 600 m² |
| Entfernung vom meer | 1 200 m |
| Strom | |
| Wasser | |
| Abfall | |
| Klimaanlage | |
| Heizung | ano |
| Energieintensität | X - Nicht ausgestellt |
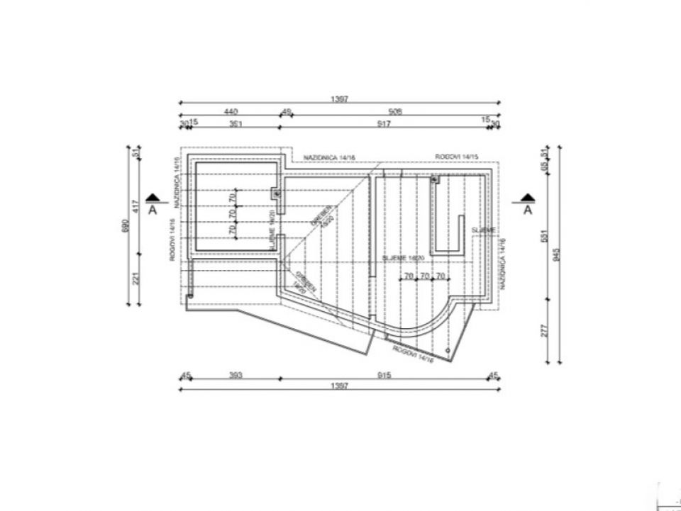
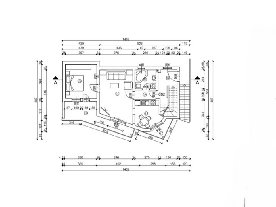
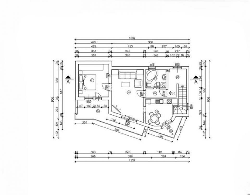
OPATIJA, MEDVEJA – Villa mit herrlichem Blick auf die Bucht Wir haben ein 210 m2 großes Haus mit drei Wohnungen in ruhiger Lage mit freiem Meerblick zu verkaufen! Das Haus verfügt über insgesamt 7 Zimmer, davon 4 Schlafzimmer, 3 Badezimmer sowie Küchen und Wohnzimmer. Fußbodenheizung und Kamin verleihen dem Innenraum eine besondere Atmosphäre. Auf dem 600 m2 großen Grundstück befinden sich ein Gartenhaus und ein Grillplatz sowie ausreichend Platz für den Bau eines Swimmingpools. Das Haus besteht aus 3 Wohneinheiten, d. h. einer Wohnung auf jeder Etage, mit wunderschöner Südausrichtung und Meerblick. Der obere Garten des Hauses bietet einen Panoramablick auf das Meer. Jede Wohneinheit verfügt über eine Terrasse und einen separaten Eingang. Das Haus ist in ausgezeichnetem Zustand und hat vor zwei Jahren eine neue Fassade erhalten. Das Haus liegt in einer Privatstraße oberhalb des Strandes Medveja, was Ruhe und Privatsphäre sowie eine gehobene Nachbarschaft garantiert. Die Fahrt zum Meer dauert 3–4 Minuten und Opatija ist nur 12 Minuten entfernt. Diese Villa ist eine ideale Gelegenheit zur touristischen Vermietung! MEDVEJA Medveja ist ein Ort, der die beiden Seiten der Region Lovran perfekt verbindet. Die Siedlung, die sich entlang der Hänge des Učka-Gebirges erstreckt, bietet Entspannung inmitten der Natur, fernab von Menschenmassen und Stress, in modern ausgestatteten Villen und Ferienhäusern mit Blick auf die Meereswellen. Es ist ein Urlaub im Stil der römischen Patrizier, die einst diese Gegend für den Bau ihrer Villa Rustica wählten. Und das Tal verbirgt einen der schönsten Strände der Riviera von Opatija. Jeder Stein, dessen Weiß in der Sonne glänzt, ist ein Meisterwerk der Natur, geformt vom Bach, der die Hänge des Učka-Gebirges hinunterplätschert, und geformt von Wind und Meereswellen.
Bei allen unseren Angeboten sind die Preise identisch mit dem Direktkauf bei der Agentur/dem Entwickler in Kroatien, da wir der offizielle Vertreter dieser Agenturen auf dem tschechischen, slowakischen, deutschen und österreichischen Markt sind. Dies gilt ohne zusätzliche Zuschläge für deutschsprachige Dienstleistungen.
Sehr geehrte Kunden, die Besichtigung von Immobilien, die Mitteilung der Lage und andere detaillierte Informationen sind nur mit einem unterzeichneten Vermittlungsvertrag möglich, der die Grundlage für weitere Aktionen wie den Kauf einer Immobilie bildet. Alles steht im Einklang mit dem Gesetz über die Vermittlung beim Kauf von Immobilien. Der Käufer zahlt eine gesetzliche Vermittlungsprovision in Höhe von 3% (+ MwSt.) des vereinbarten Preises, und zwar nur im Falle des Kaufs der Immobilie. Sollte der Kauf nicht zustande kommen, ist der Vertrag für Sie nicht bindend und wird annulliert. Wenn Sie ernsthaft an der Immobilie interessiert sind, senden wir Ihnen den Vertrag auf Anfrage zu.
Wir werden Ihnen innerhalb von 24 Stunden antworten.
Wir bieten nur geprüfte Immobilien an.
Wir garantieren eine hohe Servicequalität.
Wir können Ihnen bei der Vermittlung von Unterkünften während der Besichtigungen helfen.
- Ich habe eine Immobilie aus dem Angebot ausgewählt
- Ich kontaktiere den Makler
- Ich unterschreibe einen Vertretungsvertrag - Details hier! (die Unterzeichnung des Vertrags ist gesetzlich vorgeschrieben)
- Ich richte eine OIB ein - Details hier (die Einrichtung ist gesetzlich vorgeschrieben)
- Besichtigungen vor Ort
- Unterzeichnung der Reservierung, des Kaufvertrags