OPATIJA, PAVLOVAC - Wohnung in einem neuen Gebäude in der Nähe von Opatija, 180 m2 mit Meerblick und Dachterrasse
| Registrationsnummer | DN-24459 |
| Art des Angebots | Verkauf |
| Kategorie | Appartements |
| Bezirk | Primorsko-goranska |
| Gemeindeteil | Matulji |
| Preis | 459 000 € |
| Gesamtfläche | 141 m² |
| Wohnfläche (Wohnung) | 141 m² |
| Entfernung vom meer | 2 500 m |
| Strom | |
| Wasser | |
| Abfall | |
| Klimaanlage | |
| Heizung | ano |
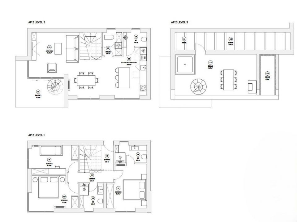
OPATIJA, PAVLOVAC - Wohnung in einem Neubau in der Nähe von Opatija 180m2 mit Meerblick und Dachterrasse Dieses moderne Wohngebäude mit nur drei Wohnungen vereint perfekt Komfort und Qualität und befindet sich in einer hervorragenden Lage, die alles bietet, was Sie für ein angenehmes Leben oder Entspannung benötigen. In nur 15 Minuten zu Fuß oder in wenigen Minuten mit dem Auto sind Sie an wunderschönen Stränden und entlang der Meeresküste. Das Zentrum von Opatija ist nur 5 Autominuten entfernt, während das Zentrum von Rijeka in zehn Autominuten erreichbar ist. Die Wohnung Nummer 2 mit DACHTERRASSE mit einer Gesamtfläche von 179,2 m2 erstreckt sich über die erste und zweite Etage und verfügt zusätzlich über ein Dachgeschoss, was viel Platz zum komfortablen Wohnen bietet. Im ersten Stock gibt es einen Eingangsbereich und einen Flur mit eleganter Treppe, ein geräumiges Hauptschlafzimmer mit eigenem Bad und zwei weitere Schlafzimmer, die sich ein gemeinsames Bad teilen. Die zweite Etage bietet einen Abstellraum, eine zusätzliche Toilette und ein geräumiges Wohnzimmer mit moderner Küche und Esszimmer, mit Zugang zu einem 14,1 Quadratmeter großen Balkon mit wunderschönem Blick auf das Meer. Über den Balkon führt eine Treppe in den Dachboden, wo sich zusätzlicher Stauraum und eine großzügige Dachterrasse von 31,4 Quadratmetern befinden – der perfekte Ort, um die spektakuläre Aussicht auf die gesamte Kvarner-Bucht zu genießen und morgens bei einer Tasse Kaffee zu entspannen Abend. Zu dieser Wohnung gehört auch ein Parkplatz. Die Wohnungen sind sorgfältig mit Schwerpunkt auf Qualität gestaltet und mit hochwertigen Materialien ausgestattet: Aluminium-Außenschreinerei, die eine hervorragende Isolierung bietet. Ein Heiz-/Kühlsystem auf Basis einer Wärmepumpe für Ihren Komfort das ganze Jahr über. Einbruchhemmende Eingangstüren. Verwendung hochwertiger Materialien und Ausstattung Diese Wohnung bietet die perfekte Balance zwischen Komfort, wunderschönem Meerblick und ausgezeichneter Lage, was sie zu einer idealen Wahl für Wohn- oder Investitionszwecke macht.
Bei allen unseren Angeboten sind die Preise identisch mit dem Direktkauf bei der Agentur/dem Entwickler in Kroatien, da wir der offizielle Vertreter dieser Agenturen auf dem tschechischen, slowakischen, deutschen und österreichischen Markt sind. Dies gilt ohne zusätzliche Zuschläge für deutschsprachige Dienstleistungen.
Sehr geehrte Kunden, die Besichtigung von Immobilien, die Mitteilung der Lage und andere detaillierte Informationen sind nur mit einem unterzeichneten Vermittlungsvertrag möglich, der die Grundlage für weitere Aktionen wie den Kauf einer Immobilie bildet. Alles steht im Einklang mit dem Gesetz über die Vermittlung beim Kauf von Immobilien. Der Käufer zahlt eine gesetzliche Vermittlungsprovision in Höhe von 3% (+ MwSt.) des vereinbarten Preises, und zwar nur im Falle des Kaufs der Immobilie. Sollte der Kauf nicht zustande kommen, ist der Vertrag für Sie nicht bindend und wird annulliert. Wenn Sie ernsthaft an der Immobilie interessiert sind, senden wir Ihnen den Vertrag auf Anfrage zu.
Wir werden Ihnen innerhalb von 24 Stunden antworten.
Wir bieten nur geprüfte Immobilien an.
Wir garantieren eine hohe Servicequalität.
Wir können Ihnen bei der Vermittlung von Unterkünften während der Besichtigungen helfen.
- Ich habe eine Immobilie aus dem Angebot ausgewählt
- Ich kontaktiere den Makler
- Ich unterschreibe einen Vertretungsvertrag - Details hier! (die Unterzeichnung des Vertrags ist gesetzlich vorgeschrieben)
- Ich richte eine OIB ein - Details hier (die Einrichtung ist gesetzlich vorgeschrieben)
- Besichtigungen vor Ort
- Unterzeichnung der Reservierung, des Kaufvertrags