OPATIJA, ZENTRUM - Grundstück mit einem Projekt für 3 Luxusapartments mit Pool und Panoramablick auf das Meer
| Registrationsnummer | DN-35021 |
| Art des Angebots | Verkauf |
| Kategorie | Bauland |
| Bezirk | Primorsko-goranska |
| Gemeindeteil | Opatija |
| Preis | 620 000 € |
| Preis pro m2 | 729 €/m² |
| Gesamtfläche | 850 m² |
| Entfernung vom meer | 600 m |
| Strom | |
| Wasser | |
| Abfall |
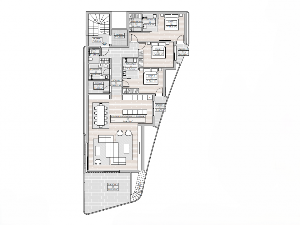
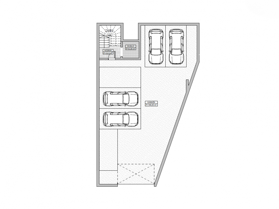
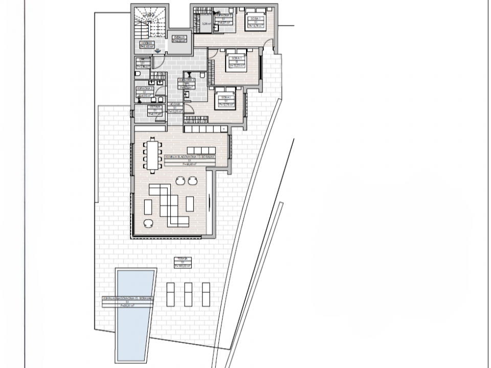
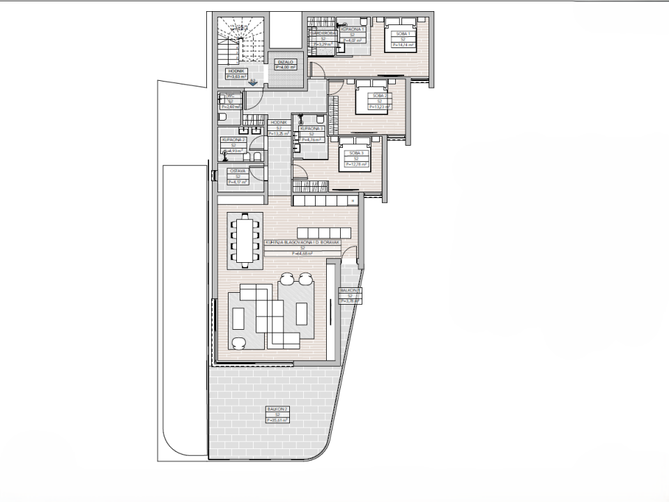
OPATIJA, ZENTRUM - NEU - größeres Investitionsgrundstück für den Bau von 3 Gebäuden, Zentrum von Opatija, Aussicht GELEGENHEIT! Wir vermitteln beim Verkauf eines größeren Baugrundstücks oberhalb des Zentrums von Opatija. Es handelt sich um ein 3200 m² großes Grundstück für den Bau von 3 größeren Gebäuden mit jeweils 600 m² Bruttogeschossfläche + Terrassen + Garage. Die Gebäude sollen über einen größeren Garten und Schwimmbäder verfügen und dank der Lage des Geländes von jedem Punkt aus einen Panoramablick auf das Meer bieten. Das Baugrundstück liegt in einer ruhigen Seitenstraße oberhalb des Zentrums. Sehr hochwertige Anfahrt, Wasser und Strom vorhanden. Es ist wichtig darauf hinzuweisen, dass das Grundstück von einer hochwertigen Nachbarschaft umgeben ist. In unmittelbarer Nähe gibt es auch Treppen, die in 7 Minuten zu Fuß ins Zentrum von Opatija führen. Die Fahrt nach Opatija dauert buchstäblich eine Minute. Eines der seltenen verbliebenen Grundstücke mit Panoramablick auf das Meer dieser Größe im Zentrum von Opatija! Luftlinie zum Meer 600 Meter.
Bei allen unseren Angeboten sind die Preise identisch mit dem Direktkauf bei der Agentur/dem Entwickler in Kroatien, da wir der offizielle Vertreter dieser Agenturen auf dem tschechischen, slowakischen, deutschen und österreichischen Markt sind. Dies gilt ohne zusätzliche Zuschläge für deutschsprachige Dienstleistungen.
Sehr geehrte Kunden, die Besichtigung von Immobilien, die Mitteilung der Lage und andere detaillierte Informationen sind nur mit einem unterzeichneten Vermittlungsvertrag möglich, der die Grundlage für weitere Aktionen wie den Kauf einer Immobilie bildet. Alles steht im Einklang mit dem Gesetz über die Vermittlung beim Kauf von Immobilien. Der Käufer zahlt eine gesetzliche Vermittlungsprovision in Höhe von 3% (+ MwSt.) des vereinbarten Preises, und zwar nur im Falle des Kaufs der Immobilie. Sollte der Kauf nicht zustande kommen, ist der Vertrag für Sie nicht bindend und wird annulliert. Wenn Sie ernsthaft an der Immobilie interessiert sind, senden wir Ihnen den Vertrag auf Anfrage zu.
Wir werden Ihnen innerhalb von 24 Stunden antworten.
Wir bieten nur geprüfte Immobilien an.
Wir garantieren eine hohe Servicequalität.
Wir können Ihnen bei der Vermittlung von Unterkünften während der Besichtigungen helfen.
- Ich habe eine Immobilie aus dem Angebot ausgewählt
- Ich kontaktiere den Makler
- Ich unterschreibe einen Vertretungsvertrag - Details hier! (die Unterzeichnung des Vertrags ist gesetzlich vorgeschrieben)
- Ich richte eine OIB ein - Details hier (die Einrichtung ist gesetzlich vorgeschrieben)
- Besichtigungen vor Ort
- Unterzeichnung der Reservierung, des Kaufvertrags