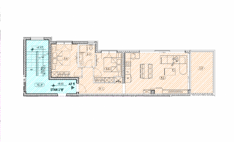
OPATIJA, ZENTRUM - neu gebaute Wohnung 77,09 m2 mit Panoramablick auf das Meer - WOHNUNG 5
| Registrationsnummer | DN-21972 |
| Art des Angebots | Verkauf |
| Kategorie | Appartements |
| Bezirk | Primorsko-goranska |
| Gemeindeteil | Opatija |
| Gesamtfläche | 77 m² |
| Wohnfläche (Wohnung) | 77 m² |
| Strom | |
| Wasser | |
| Abfall | |
| Klimaanlage |
OPATIJA, ZENTRUM - neu gebaute Wohnung 77,09 m2 mit Panoramablick auf das Meer - WOHNUNG 5 Die Wohnung besteht aus: Eingang Küche / Esszimmer / Wohnzimmer Badezimmer Zimmer 1 Zimmer 2 Überdachter Balkon Die Wohnung befindet sich in einer ruhigen und ruhigen Lage, dennoch in unmittelbarer Nähe alle notwendigen Inhalte für ein qualitativ hochwertiges Leben. Die Wohnung ist nach Süden ausgerichtet und verfügt über große Glaswände in allen Räumen auf der Südseite, so dass man von dort aus einen Panoramablick auf die gesamte Kvarner-Bucht hat. Die Wohnung besteht aus einem großen Wohnzimmer, das als großzügiger offener Raum mit Zugang zur Terrasse konzipiert ist, einer Küche, 2 Schlafzimmern, 1 Badezimmer und einem Flur. Das Gebäude, in dem sich die Wohnung befindet, ist gut gebaut und luxuriös ausgestattet, alle verbauten Materialien, Boden- und Wandbeläge entsprechen höchsten Standards. - Fassadensteinwolle 10 cm dick - Fußbodenheizung - Wärmepumpen - hochwertige Aluminiumschreinerei. Das Gebäude, in dem sich die Wohnung befindet, besteht aus insgesamt 9 Wohnungen. Das Gebäude verfügt über einen Aufzug, die Wohnung verfügt über 1 Parkplatz in der Garage und 1 Außenparkplatz (Garagenparkplatz 7 – 11,97 m2 und Außenparkplatz P4 – 12,50 m2). Sauberes und ordentliches Anwesen. Sicherlich eine schöne Immobilie für ein luxuriöses Familienleben, aber auch als Investition in Form von Elite-Tourismus geeignet. Dieses Anwesen ist 450 m Luftlinie vom Meer und dem Strand entfernt, bzw. 1,4 km mit dem Auto (ca. 3 Minuten). EINE EINZIGARTIGE IMMOBILIE IN TOLLER LAGE, DIE IHRE AUFMERKSAMKEIT AUF jeden Fall wert ist!!! Opatija: Opatija, eine wunderschöne Küstenstadt an der Adria, ist ein beliebtes Touristenziel für Touristen aus aller Welt. Die Stadt ist von wunderschöner Natur umgeben und liegt am Fuße des Berges Učka. Immobilien in Opatija bieten einen unbezahlbaren Blick auf das Meer und die umliegenden Inseln Krk und Cres. Opatija ist umgeben von charmanten Kleinstädten mit alten Häusern in engen, geschichtsträchtigen Gassen. Die Straßen der Stadt Opatija bestehen aus Anwesen, die durch ihre besondere Architektur und Villen aus der Habsburgerzeit hervorstechen. Eine große Auswahl an Stränden, kristallklares Meer und verschiedene touristische Dienstleistungen sind die Schlüsselfaktoren, die Opatija zu einem perfekten Reiseziel machen, das von den Nachbarländern als ausgezeichnete Investitionswahl anerkannt wird. Die Immobilienpreise in dieser Gegend steigen, die Mietauslastung ist ausgezeichnet, was zu einer Kapitalrendite von 5 bis 10 % geführt hat und ausländische Investoren anzieht.
Bei allen unseren Angeboten sind die Preise identisch mit dem Direktkauf bei der Agentur/dem Entwickler in Kroatien, da wir der offizielle Vertreter dieser Agenturen auf dem tschechischen, slowakischen, deutschen und österreichischen Markt sind. Dies gilt ohne zusätzliche Zuschläge für deutschsprachige Dienstleistungen.
Sehr geehrte Kunden, die Besichtigung von Immobilien, die Mitteilung der Lage und andere detaillierte Informationen sind nur mit einem unterzeichneten Vermittlungsvertrag möglich, der die Grundlage für weitere Aktionen wie den Kauf einer Immobilie bildet. Alles steht im Einklang mit dem Gesetz über die Vermittlung beim Kauf von Immobilien. Der Käufer zahlt eine gesetzliche Vermittlungsprovision in Höhe von 3% (+ MwSt.) des vereinbarten Preises, und zwar nur im Falle des Kaufs der Immobilie. Sollte der Kauf nicht zustande kommen, ist der Vertrag für Sie nicht bindend und wird annulliert. Wenn Sie ernsthaft an der Immobilie interessiert sind, senden wir Ihnen den Vertrag auf Anfrage zu.
Wir werden Ihnen innerhalb von 24 Stunden antworten.
Wir bieten nur geprüfte Immobilien an.
Wir garantieren eine hohe Servicequalität.
Wir können Ihnen bei der Vermittlung von Unterkünften während der Besichtigungen helfen.
- Ich habe eine Immobilie aus dem Angebot ausgewählt
- Ich kontaktiere den Makler
- Ich unterschreibe einen Vertretungsvertrag - Details hier! (die Unterzeichnung des Vertrags ist gesetzlich vorgeschrieben)
- Ich richte eine OIB ein - Details hier (die Einrichtung ist gesetzlich vorgeschrieben)
- Besichtigungen vor Ort
- Unterzeichnung der Reservierung, des Kaufvertrags