PAG, NOVALJA - Moderne Wohnung mit Meerblick, S.2.3.
| Registrationsnummer | DN-27078 |
| Art des Angebots | Verkauf |
| Kategorie | Appartements |
| Bezirk | Ličko-senjska |
| Gemeindeteil | Novalja |
| Preis | 244 335 € |
| Gesamtfläche | 69 m² |
| Wohnfläche (Wohnung) | 69 m² |
| Entfernung vom meer | 400 m |
| Strom | |
| Wasser |
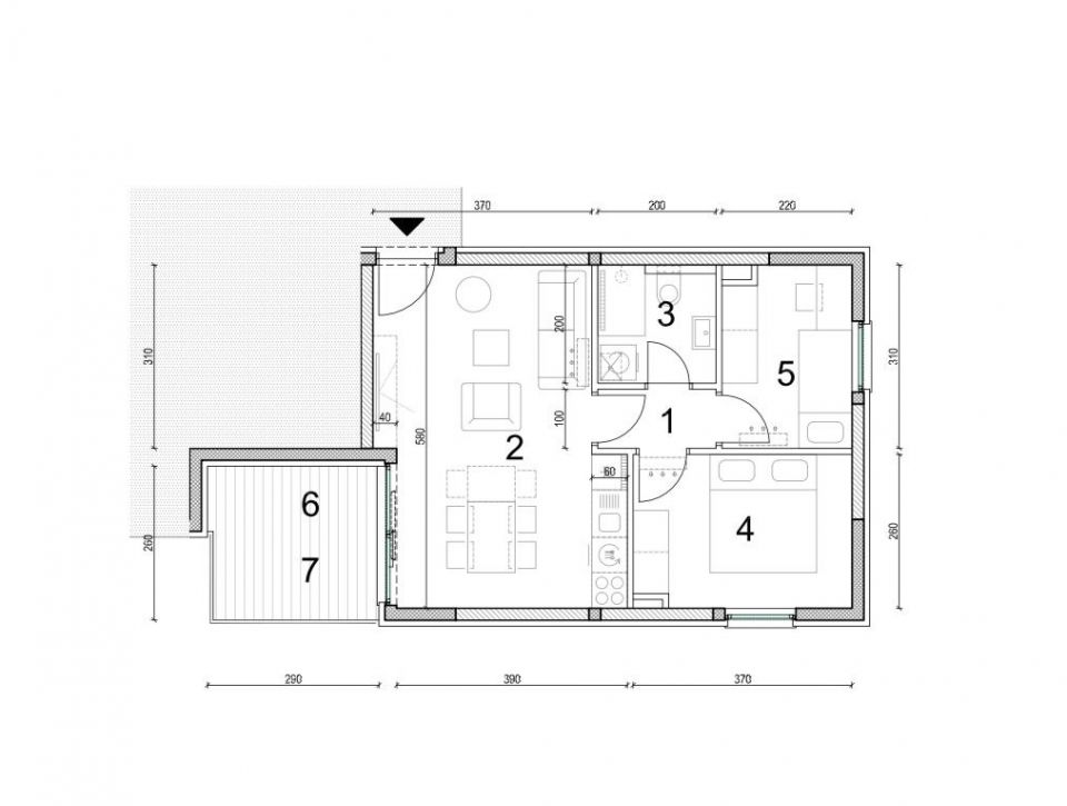
PAG, NOVALJA - Moderne Wohnung mit Meerblick, S.2.3. Schöne Wohnung zum Verkauf in Novalja auf der Insel Pag. Die Wohnung befindet sich im zweiten Stock eines Wohnhauses. Es besteht aus: Eingangshalle, Flur, Wohnzimmer mit Küche, Badezimmer, 2 Schlafzimmern, Loggia, überdachtem Balkon, 1 Parkplatz. Gesamtnettofläche: 69,81 m2. Gesamtbruttofläche: 85,16 m2. Es handelt sich um einen attraktiven Standort mit herrlichem Blick auf das Meer, nur wenige Minuten vom Strand entfernt. Hochwertiger Neubau moderner Architektur. Hochwertige PVC-Tischlerei mit dreischichtigem Glas, Moskitonetzen und elektrischen Aluminiumjalousien. In allen Räumen wurde eine Fußbodenheizung installiert, in den Schlafzimmern und im Wohnzimmer eine Klimaanlage zum Heizen und Kühlen. Erstklassige Hygiene, einbruchsichere Eingangstür. Bezugsfertig im 5. Monat 2024. Die Immobilie unterliegt dem Mehrwertsteuersystem (juristische Person) und der Käufer zahlt keine Immobilienumsatzsteuer.
Bei allen unseren Angeboten sind die Preise identisch mit dem Direktkauf bei der Agentur/dem Entwickler in Kroatien, da wir der offizielle Vertreter dieser Agenturen auf dem tschechischen, slowakischen, deutschen und österreichischen Markt sind. Dies gilt ohne zusätzliche Zuschläge für deutschsprachige Dienstleistungen.
Sehr geehrte Kunden, die Besichtigung von Immobilien, die Mitteilung der Lage und andere detaillierte Informationen sind nur mit einem unterzeichneten Vermittlungsvertrag möglich, der die Grundlage für weitere Aktionen wie den Kauf einer Immobilie bildet. Alles steht im Einklang mit dem Gesetz über die Vermittlung beim Kauf von Immobilien. Der Käufer zahlt eine gesetzliche Vermittlungsprovision in Höhe von 3% (+ MwSt.) des vereinbarten Preises, und zwar nur im Falle des Kaufs der Immobilie. Sollte der Kauf nicht zustande kommen, ist der Vertrag für Sie nicht bindend und wird annulliert. Wenn Sie ernsthaft an der Immobilie interessiert sind, senden wir Ihnen den Vertrag auf Anfrage zu.
Wir werden Ihnen innerhalb von 24 Stunden antworten.
Wir bieten nur geprüfte Immobilien an.
Wir garantieren eine hohe Servicequalität.
Wir können Ihnen bei der Vermittlung von Unterkünften während der Besichtigungen helfen.
- Ich habe eine Immobilie aus dem Angebot ausgewählt
- Ich kontaktiere den Makler
- Ich unterschreibe einen Vertretungsvertrag - Details hier! (die Unterzeichnung des Vertrags ist gesetzlich vorgeschrieben)
- Ich richte eine OIB ein - Details hier (die Einrichtung ist gesetzlich vorgeschrieben)
- Besichtigungen vor Ort
- Unterzeichnung der Reservierung, des Kaufvertrags