RIJEKA, KOSTRENA - Bauprojekt, einzigartige und seltene Lage, erste Reihe vom Meer
| Registrationsnummer | DN-43502 |
| Art des Angebots | Verkauf |
| Kategorie | Bauland |
| Bezirk | Primorsko-goranska |
| Gemeindeteil | Kostrena |
| Preis | 1 860 000 € |
| Preis pro m2 | 1 860 €/m² |
| Gesamtfläche | 1 000 m² |
| Entfernung vom meer | 20 m |
| Strom | |
| Wasser | |
| Abfall |
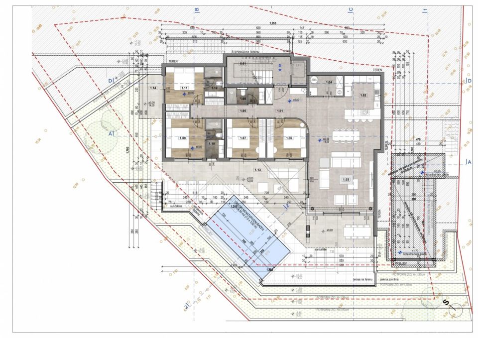
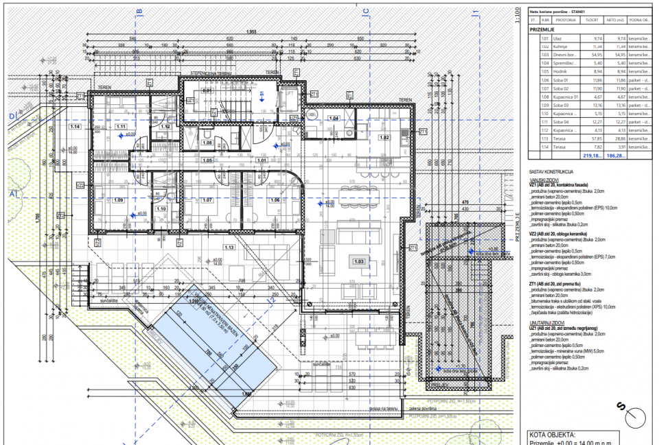
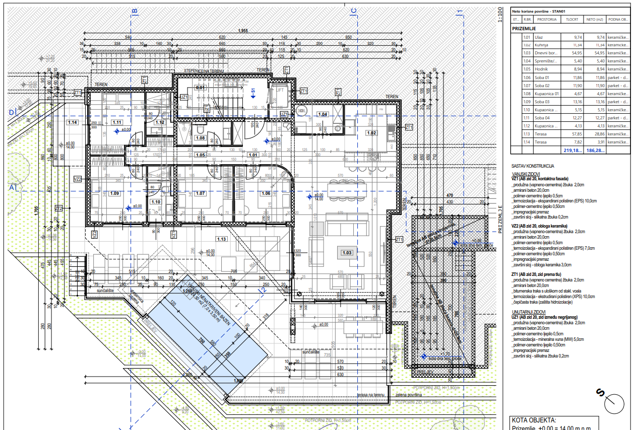
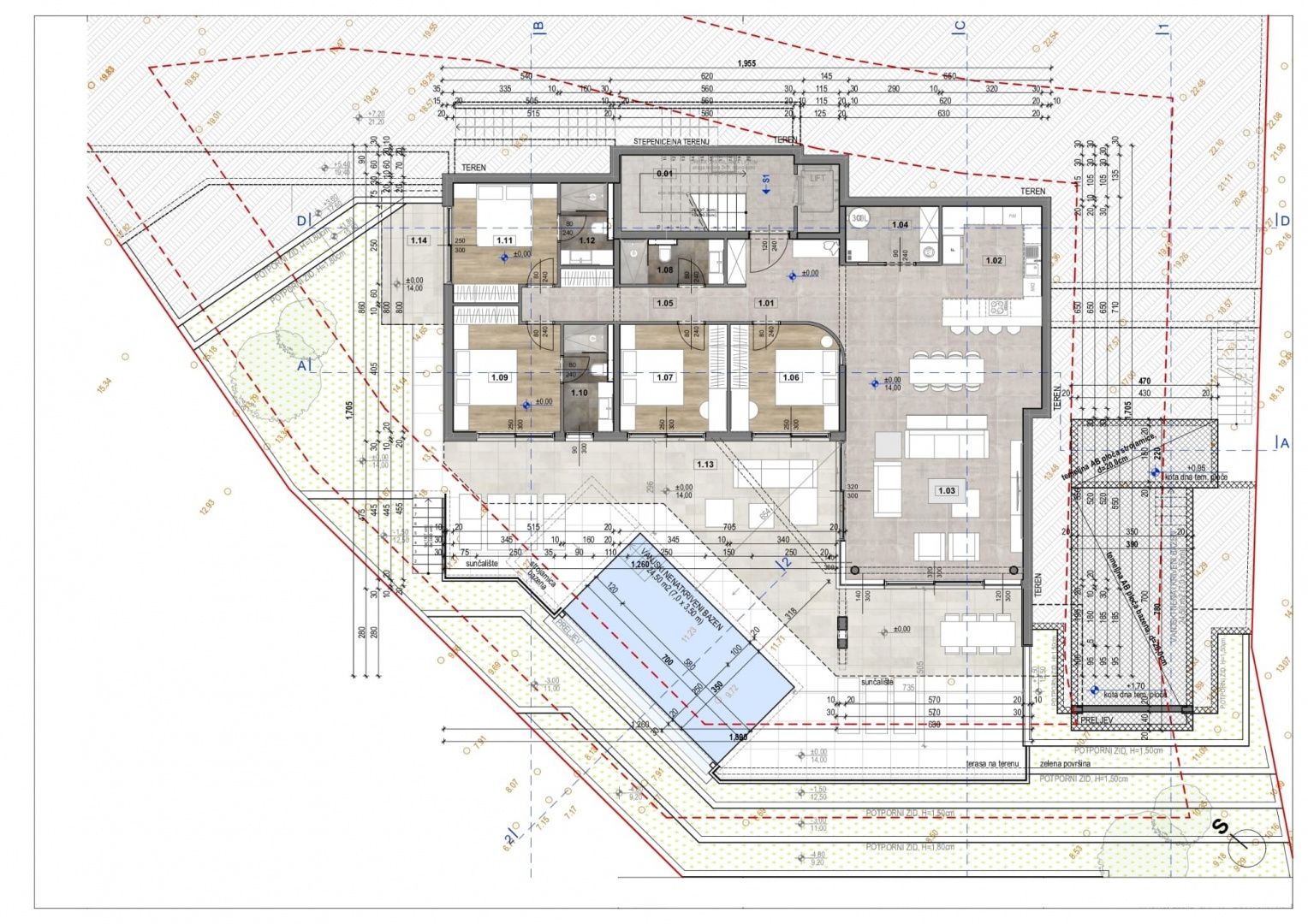
RIJEKA, KOSTRENA – Baugrundstück für ein luxuriöses Neubauprojekt mit 370 m² Nettogrundfläche und zwei Apartments direkt am Meer Zum Verkauf: Einzigartiges Projekt eines luxuriösen Neubaus direkt am Meer – eine exzellente Mikrolage, die nur selten angeboten wird. Das Grundstück befindet sich oberhalb eines kleinen Hafens, der nach dem Bau eines Wellenbrechers und eines Pontons gemäß der Konzeptplanung wie in der Visualisierung aussehen soll. Auf Wunsch des Käufers können Änderungen am Plan vorgenommen werden. Aktuell wird das Projekt als zwei Apartments auf jeweils einer Etage realisiert, eines mit 186 m² und das andere mit 183 m², jeweils mit eigenem Pool und einer 200 m² großen Dachterrasse. Wir präsentieren Ihnen ein exklusives Projekt eines Luxushauses in erster Reihe zum Meer, in einer der attraktivsten und seltensten Mikrolagen an der Küste nahe der Stadt Rijeka und nur 25 km vom internationalen Flughafen Rijeka entfernt. In Rijeka, 7 km Landweg bzw. 3 Seemeilen Seeweg von diesem Grundstück entfernt, hat der Bau eines Yachthafens für Megayachten begonnen. Das Projekt wurde nach höchsten architektonischen Standards entworfen und legt besonderen Wert auf Panoramablick aufs Meer und luxuriöse Ausstattung. Große Glaswände sorgen für viel Tageslicht und einen traumhaften Meerblick. Das Grundstück wird mit einem Projektplan und einer gültigen Baugenehmigung verkauft. In Absprache mit dem Verkäufer, der seit zwei Jahrzehnten als Bauunternehmer und Investor tätig ist, kann ein Haus errichtet werden. Rijeka ist eines der wichtigsten historischen und wirtschaftlichen Zentren der nördlichen Adria. Dank seiner außergewöhnlichen Lage an der Kvarner-Bucht hat sich Rijeka über die Jahrhunderte zu einem bedeutenden Hafen, Handels- und Industriezentrum sowie zu einem Treffpunkt verschiedener Kulturen und Einflüsse entwickelt. Die reiche Geschichte der Stadt spiegelt sich in ihrer Architektur, der Altstadt und den zahlreichen kulturellen Sehenswürdigkeiten wider. Rijeka ist heute eine moderne europäische Stadt mit hoher Lebensqualität, gut ausgebauter Infrastruktur, einer Universität, einem vielfältigen Kulturangebot und hervorragenden Verkehrsverbindungen in den Rest Kroatiens und Europas. Kostrena ist ein malerischer Küstenort südöstlich von Rijeka, bekannt für seine lange Seefahrertradition. Seit dem 15. Jahrhundert gelten die Einwohner von Kostrena als exzellente Seeleute und Kapitäne, die die Weltmeere befuhren. Heute ist Kostrena ein ruhiger und gepflegter Küstenort, der für seine Strände, Strandpromenaden und hohe Lebensqualität bekannt ist und somit zu den begehrtesten Wohnorten in der Kvarner-Region zählt. Sehr geehrte Kaufinteressenten, wir freuen uns über Ihr Interesse an den Immobilien in unserem Angebot. Für weitere Informationen und zur Vereinbarung eines Besichtigungstermins kontaktieren Sie uns bitte. Eine Besichtigung ist nur mit Unterzeichnung eines Maklervertrags möglich. „
Bei allen unseren Angeboten sind die Preise identisch mit dem Direktkauf bei der Agentur/dem Entwickler in Kroatien, da wir der offizielle Vertreter dieser Agenturen auf dem tschechischen, slowakischen, deutschen und österreichischen Markt sind. Dies gilt ohne zusätzliche Zuschläge für deutschsprachige Dienstleistungen.
Sehr geehrte Kunden, die Besichtigung von Immobilien, die Mitteilung der Lage und andere detaillierte Informationen sind nur mit einem unterzeichneten Vermittlungsvertrag möglich, der die Grundlage für weitere Aktionen wie den Kauf einer Immobilie bildet. Alles steht im Einklang mit dem Gesetz über die Vermittlung beim Kauf von Immobilien. Der Käufer zahlt eine gesetzliche Vermittlungsprovision in Höhe von 3% (+ MwSt.) des vereinbarten Preises, und zwar nur im Falle des Kaufs der Immobilie. Sollte der Kauf nicht zustande kommen, ist der Vertrag für Sie nicht bindend und wird annulliert. Wenn Sie ernsthaft an der Immobilie interessiert sind, senden wir Ihnen den Vertrag auf Anfrage zu.
Wir werden Ihnen innerhalb von 24 Stunden antworten.
Wir bieten nur geprüfte Immobilien an.
Wir garantieren eine hohe Servicequalität.
Wir können Ihnen bei der Vermittlung von Unterkünften während der Besichtigungen helfen.
- Ich habe eine Immobilie aus dem Angebot ausgewählt
- Ich kontaktiere den Makler
- Ich unterschreibe einen Vertretungsvertrag - Details hier! (die Unterzeichnung des Vertrags ist gesetzlich vorgeschrieben)
- Ich richte eine OIB ein - Details hier (die Einrichtung ist gesetzlich vorgeschrieben)
- Besichtigungen vor Ort
- Unterzeichnung der Reservierung, des Kaufvertrags