RIJEKA, KOSTRENA – exklusive zweistöckige Wohnung 163,89 m2 Neubau mit wunderschönem Meerblick und Swimmingpool + Garten 176,65 m2 – S1-D
| Registrationsnummer | DN-44547 |
| Art des Angebots | Verkauf |
| Kategorie | Appartements |
| Bezirk | Primorsko-goranska |
| Gemeindeteil | Kostrena |
| Preis | 688 500 € |
| Gesamtfläche | 163 m² |
| Wohnfläche (Wohnung) | 163 m² |
| Bebaute Fläche und Hof | 176 m² |
| Gesamt bebaut fläche | 176 m² |
| Strom | |
| Wasser | |
| Abfall | |
| Klimaanlage | |
| Energieintensität | A - extrem wirtschaftlich |
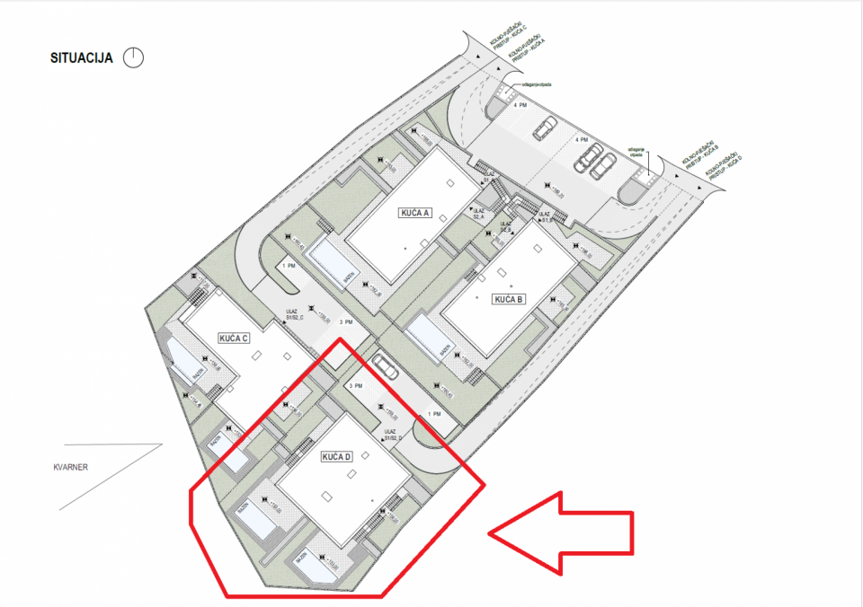
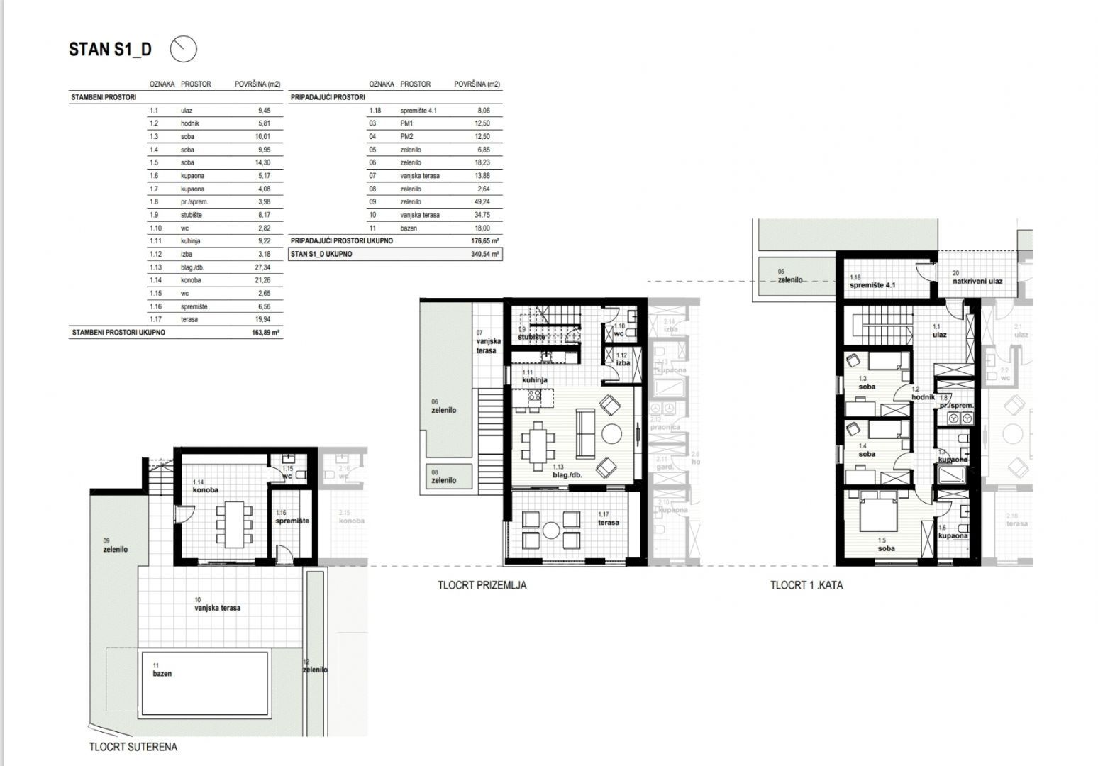
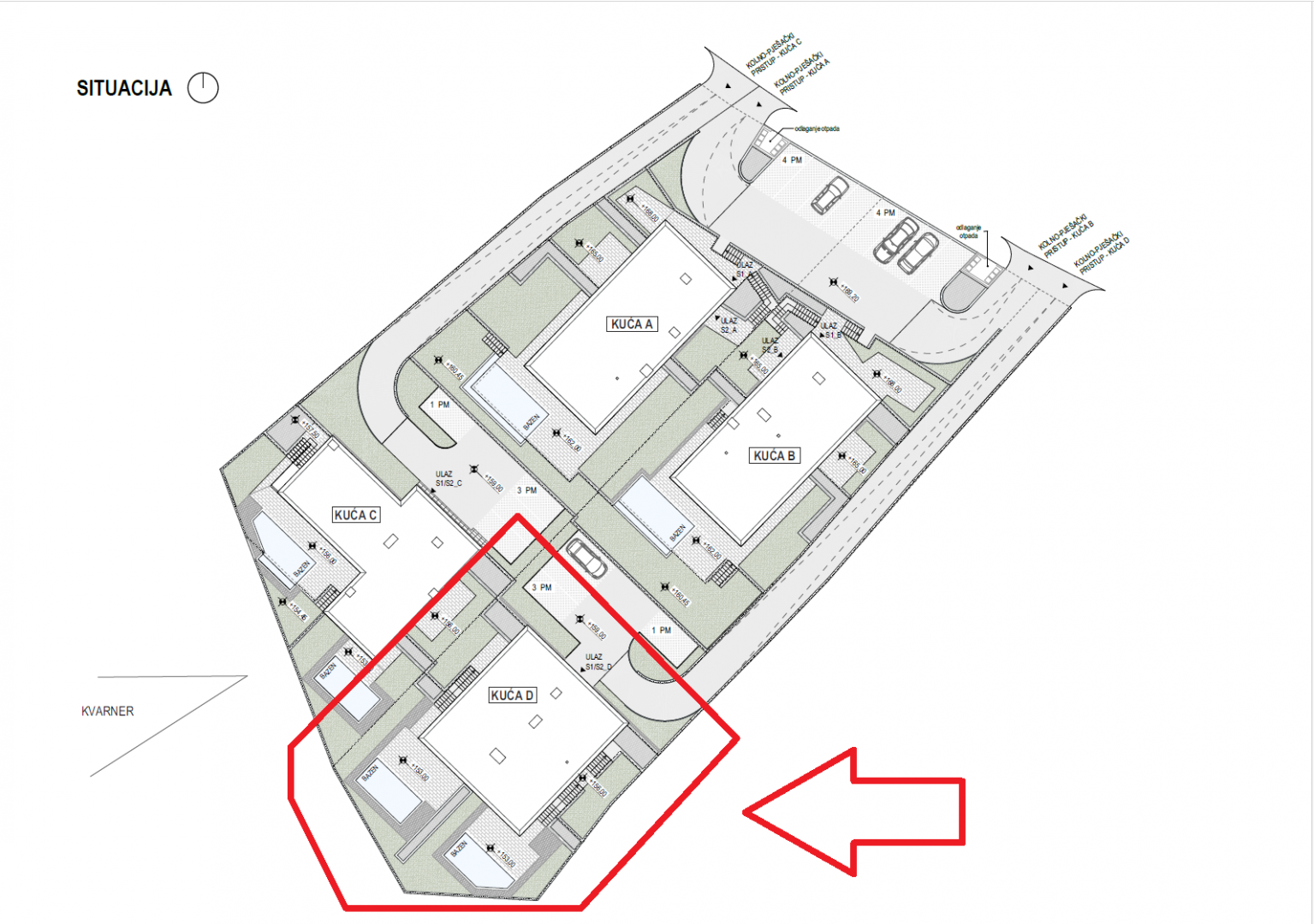
RIJEKA, KOSTRENA – Exklusive Maisonette-Wohnung (163,89 m²) in einem Neubau mit herrlichem Meerblick und Pool + Garten (176,65 m²) – S1-D Wir bieten Ihnen eine Immobilie mit modernem Design und Eleganz, hohem Komfort und erstklassiger Ausstattung in ruhiger, schöner Lage in der Nähe von öffentlichen Verkehrsmitteln, Schulen, Kindergärten und Einkaufszentren. Rijeka ist nur zehn Autominuten entfernt. Der Komplex besteht aus vier Wohngebäuden mit insgesamt acht Wohnungen und befindet sich nördlich der Adria-Autobahn im Gebiet „Zelena Kostrena“. Von hier aus genießen Sie einen wunderschönen Blick über die gesamte Kvarner-Region. In unmittelbarer Nähe verlaufen zehn Kilometer gut ausgebaute Wander-, Rad- und Fitnesswege durch die höchsten Lagen von Kostrena, vom Solin-Gipfel bis zum Sopalj-Gipfel. Die Zufahrt zu den Häusern erfolgt über die obere Straße, deren Ausbau geplant ist. Jedes Haus verfügt über vier Außenstellplätze, bzw. zwei Stellplätze pro Wohneinheit. Jedes Haus besteht aus zwei Wohnungen. Die Wohnungen auf den beiden oberen Grundstücken liegen übereinander, während die Wohnungen auf den beiden unteren Grundstücken nebeneinander liegen. Jede Wohnung hat einen eigenen Gartenbereich. Wohnung S1 - D, Haus D: WOHNRÄUME: - Eingang 9,45 - Flur 5,81 - Zimmer 10,01 - Zimmer 9,95 - Zimmer 14,30 - Badezimmer 5,17 - Badezimmer 4,08 - Waschküche/Abstellraum 3,98 - Treppenhaus 8,17 - WC 2,82 - Küche 9,22 - Abstellraum 3,18 - Wohn-/Esszimmer 27,34 - Essbereich 21,26 - WC 2,65 - Abstellraum 6,56 - Terrasse 19,94 GESAMTWOHNFLÄCHE: 163,89 m² ZUGEHÖRIGE RÄUME: - Abstellraum 4,1 8,06 - Parkplatz 1 12,50 - Parkplatz 2 12,50 - Grünfläche 6,85 - Grünfläche 18,23 - Terrasse 13,88 - Grünfläche 2,64 - Grünfläche 49,24 - Terrasse 34,75 - Swimmingpool 18,00 GESAMTFLÄCHE DER ZUGEHÖRIGEN FLÄCHEN: 176,65 m² WOHNUNG S1-D GESAMTFLÄCHE: 340,54 m² Dieses luxuriöse Apartment ist auf maximalen Komfort ausgelegt. AUSSTATTUNG: Das Haus, in dem sich das Apartment befindet, ist hochwertig gebaut und luxuriös ausgestattet. Alle verwendeten Materialien sowie Boden- und Wandbeläge entsprechen höchsten Standards. - 10 cm dicke Fassadendämmung - Fußbodenheizung - Wärmepumpen - Hochwertige Aluminiumfenster und -türen. Das Apartment verfügt über einen eigenen Garten und 2 Parkplätze. PREIS: Der angegebene Preis bezieht sich auf eine komplett fertiggestellte Immobilie, schlüsselfertig, ohne Möbel. Der Preis beinhaltet die Mehrwertsteuer; der Käufer ist von der Grundsteuer befreit. Beim Kauf von einem in Kroatien registrierten Unternehmen ist eine vollständige Mehrwertsteuerrückerstattung nach dem Kauf möglich. Saubere und gepflegte Immobilie. Ein wunderschönes Anwesen für ein luxuriöses Familienleben, aber auch als Investition im Bereich gehobener Tourismus geeignet. EINZIGARTIGE IMMOBILIE IN TOPLAGE – UNBEDINGT BESICHTIGEN! KOSTRENA Kostrena ist ein altes, beliebtes Seebad, das erstmals im frühen 15. Jahrhundert erwähnt wurde. 1874 erlangte es seine erste kommunale Unabhängigkeit, behielt diese jedoch nur für kurze Zeit, nämlich zwei Jahre. Der Ort ist in zwei Teile gegliedert: St. Lucia und St. Barbara, benannt nach den beiden Kirchen, die sich in der Gegend befinden. Kostrena liegt in unmittelbarer Nähe der Stadt Rijeka, eingebettet zwischen der Martinšćica-Bucht und der Bakar-Bucht. Die Halbinsel Kostrena ist etwa 10 Kilometer lang und fällt sanft zur Küste ab. Entlang ihrer gesamten Länge erstrecken sich wunderschöne Strände, die im Sommer von Tausenden von Badegästen besucht werden. Die bekanntesten und meistbesuchten Strände befinden sich in der Žurkovo-Bucht, gefolgt von Smokvinovo, Svežanj, Spužvina, Podražica, Nova voda und Perilo. Kostrena besteht aus etwa zwanzig Ortschaften, von denen viele nach Familien benannt wurden. Die heute bevölkerungsreichsten sind Vrh Martinšćice, Glavani, Sv. Lucija, Rožmanići, Doričići und Paveki. Eine charakteristische Karstlandschaft mit mediterraner Vegetation und der berühmten Kostrena-Gromača sowie ein mildes Klima, das gelegentlich von kräftigen Bora-Böen begleitet wird, prägen diese Region. Sehr geehrte Kauf-, Miet- und Pachtinteressenten, die Besichtigung der Immobilie, die Sie interessiert, ist ausschließlich nach Unterzeichnung eines Maklervertrags möglich. Dies dient dem Schutz des Eigentümers vor unberechtigten Besuchen und entspricht dem Datenschutzgesetz und dem Maklergesetz. Bei jeder Besichtigung ist der Kauf-, Miet- oder Pachtinteressent verpflichtet, einen Maklervertrag auszufüllen und zu unterzeichnen. Dieser enthält folgende Angaben: - grundlegende Informationen zum Kauf-, Miet- oder Pachtinteressenten - grundlegende Informationen zum Maklerbüro - Höhe der Maklerprovision Die Maklerprovision für den Kauf beträgt 3 % (+ 25 % MwSt.) des vereinbarten Kaufpreises. Die Maklerprovision für den Pachtinteressenten beträgt eine Monatsmiete (+ 25 % MwSt.).
Bei allen unseren Angeboten sind die Preise identisch mit dem Direktkauf bei der Agentur/dem Entwickler in Kroatien, da wir der offizielle Vertreter dieser Agenturen auf dem tschechischen, slowakischen, deutschen und österreichischen Markt sind. Dies gilt ohne zusätzliche Zuschläge für deutschsprachige Dienstleistungen.
Sehr geehrte Kunden, die Besichtigung von Immobilien, die Mitteilung der Lage und andere detaillierte Informationen sind nur mit einem unterzeichneten Vermittlungsvertrag möglich, der die Grundlage für weitere Aktionen wie den Kauf einer Immobilie bildet. Alles steht im Einklang mit dem Gesetz über die Vermittlung beim Kauf von Immobilien. Der Käufer zahlt eine gesetzliche Vermittlungsprovision in Höhe von 3% (+ MwSt.) des vereinbarten Preises, und zwar nur im Falle des Kaufs der Immobilie. Sollte der Kauf nicht zustande kommen, ist der Vertrag für Sie nicht bindend und wird annulliert. Wenn Sie ernsthaft an der Immobilie interessiert sind, senden wir Ihnen den Vertrag auf Anfrage zu.
Wir werden Ihnen innerhalb von 24 Stunden antworten.
Wir bieten nur geprüfte Immobilien an.
Wir garantieren eine hohe Servicequalität.
Wir können Ihnen bei der Vermittlung von Unterkünften während der Besichtigungen helfen.
- Ich habe eine Immobilie aus dem Angebot ausgewählt
- Ich kontaktiere den Makler
- Ich unterschreibe einen Vertretungsvertrag - Details hier! (die Unterzeichnung des Vertrags ist gesetzlich vorgeschrieben)
- Ich richte eine OIB ein - Details hier (die Einrichtung ist gesetzlich vorgeschrieben)
- Besichtigungen vor Ort
- Unterzeichnung der Reservierung, des Kaufvertrags